Bénéficiez des services de nos partenaires locaux soigneusement sélectionnés
pour vous accompagner dans votre parcours d'achat immobilier

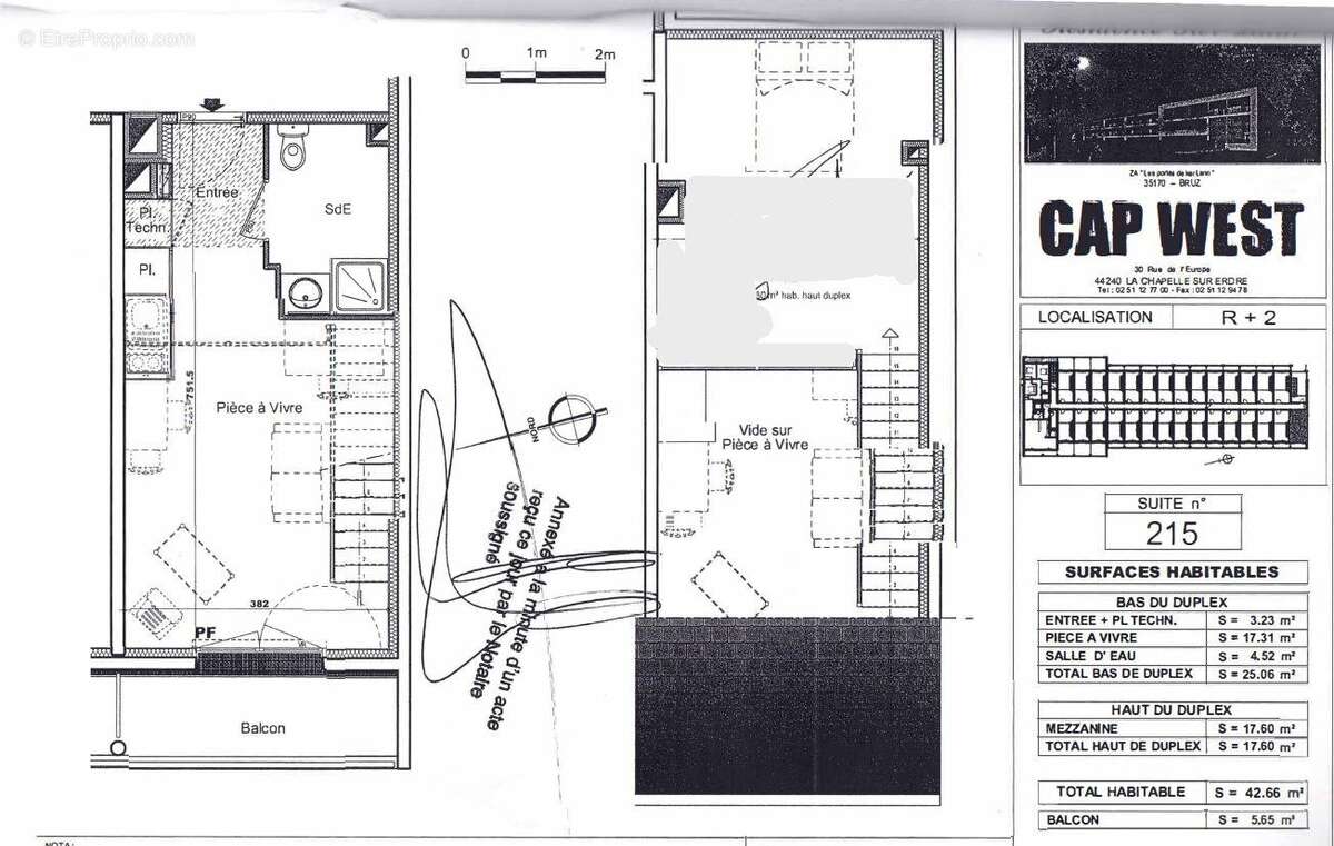
Investissement locatif – bruz - résidence cap west bruz ker lann - 7.30% de rentabilité.

— Bruz 35170 —
82 000 €
42 m²
2 pièces
parkingascenseur

Nos partenaires locaux
Réalisez un investissement locatif sécurisé en résidence d'affaires sans souci de gestion : le produit idéal pour vous constituer un patrimoine immobilier tout en bénéficiant d'une rentabilité sécurisée par des loyers stables, dès l'acquisition. • Loyer annuel HT : 5 988 € • Rentabilité : 7,30 % • Gestionnaire : Cap West Vous bénéficiez du statut fiscal LMNP amortissable, permettant une exonération d'impôt sur vos revenus locatifs. Le bien est exploité par un gestionnaire professionnel (Cap West), engagé par un bail commercial, vous assurant le versement des loyers dès l'acquisition, que le logement soit loué ou non. Description du bien : Cet appartement T2 situé au 2eme étage (en duplex) offre un agencement optimisé et agréable : une entrée avec placards et kitchenette, une salle d'eau avec w.c., un séjour, un escalier d'accès menant à une mezzanine. Jouissance privative et exclusive d'un balcon et d'un stationnement double situé à l'extérieur. À propos de la résidence : La résidence Cap West est une résidence d'affaires, idéalement située à Bruz, à proximité immédiate du campus universitaire de Ker Lann, de l'aéroport de Rennes-Saint-Jacques et de la gare de Rennes. Elle accueille une clientèle d'affaires et propose des hébergements meublés avec services para-hôteliers. Sa localisation à quelques minutes de l'aéroport et des grands axes routiers, proche des transports et des pôles d'enseignement supérieur, lui confère une forte attractivité. L'établissement propose un ensemble de services : accueil, laverie, parking sécurisé, Wi-Fi. La copropriété comprend plusieurs dizaines de logements répartis dans un environnement calme et professionnel. À propos du gestionnaire occupant : Cap West est un gestionnaire spécialisé dans les résidences d'affaires, actif depuis 2008, avec plus de 30 résidences exploitées en France. Il est reconnu pour la qualité de sa gestion et la fiabilité de ses engagements locatifs. Le coin du LMNP - Sacha Veyrine agent basé à NEUILLY SUR SEINE - [Coordonnées masquées] - Plus d'informations sur [Coordonnées masquées] réf. 25169 Bien soumis au statut juridique de la Copropriété. Charges annuelles de copropriété (Montant moyen annuel quote-part du budget prévisionnel vendeur) : 1 458 €. Pas de procédure en cours. Honoraires à la charge du vendeur
Voir plus

Référence: 25169
Bien en copropriété. Charges de copropriété : 1458 €.
Honoraires à la charge du vendeur.
Barème des honoraires
DPE
A
B
C
D
E
F
G
GES
A
B
C
D
E
F
G

Prêt immobilier

Vous souhaitez connaître votre capacité d’emprunt et trouver le meilleur crédit immobilier ?
Réaliser une simulation gratuite

Appartement à BRUZ
Appartement à BRUZ
Ce site est protégé par reCAPTCHA la Politique de confidentialité et les Conditions d’utilisation de Google s’appliquent.
Obtenir un prêt immobilier au meilleur taux ?

En poursuivant votre navigation sans modifier vos paramètres, vous acceptez l'utilisation de cookies susceptibles de réaliser des statistiques de visite. Cliquez ici pour plus d'informations