Bénéficiez des services de nos partenaires locaux soigneusement sélectionnés
pour vous accompagner dans votre parcours d'achat immobilier

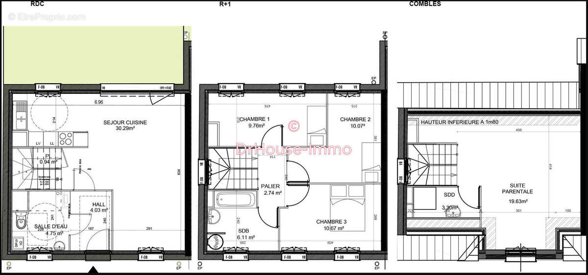
Maison 102m² à tourcoing

— Tourcoing 59200 —
285 729 €
102 m² / 41 m²
5 pièces
balcon/terrassejardinaccès handicapé

Nos partenaires locaux
Idéalement située dans le quartier de l’Épidème à Tourcoing, la résidence bénéficie d’un environnement urbain animé et familial. À quelques minutes à pied, on trouve toutes les commodités du quotidien : boulangerie, supérette, supermarché, halte-garderie, ainsi que les écoles Balzac et Sainte-Lucie. Les familles apprécieront aussi la proximité du parc du Moulin Tonton, du stade du Tilleul et de la salle Victor Hugo. Les déplacements sont facilités par la présence des stations de métro Carliers et Mercure (ligne 2) à moins de 6 minutes de marche, permettant de rejoindre Lille en un temps réduit. L’autoroute A22 et la frontière belge, toutes proches, ouvrent également l’accès à un bassin d’emplois transfrontalier dynamique.

La résidence se compose de 24 maisons neuves de 3 à 4 chambres, pensées pour offrir à la fois confort, intimité et esthétisme. Leur architecture flamande traditionnelle, avec briques rouges et tuiles brunes, s’intègre harmonieusement au quartier tout en abritant des intérieurs contemporains : grands volumes, jardin privatif, efficacité énergétique conforme à la norme RT2012. Chaque maison est équipée de fenêtres PVC, volets roulants, carrelage au rez-de-chaussée, chauffage sèche-serviettes dans les pièces d’eau, et d’un visiophone pour plus de sécurité et de praticité.

Cette opportunité rare dans la métropole lilloise s’adresse particulièrement aux familles et jeunes actifs en quête d’un cadre de vie serein et bien connecté. Grâce à la TVA réduite à 5,5 % et à l’éligibilité au Prêt à Taux Zéro (PTZ) 2025, l’accession à la propriété y est facilitée. La combinaison d’un emplacement stratégique, d’un environnement familial et d’un habitat de qualité fait de cette résidence un choix judicieux pour vivre ou investir durablement à Tourcoing. Ce bien vous est présenté par David Mahieux, votre conseiller indépendant Dr House Immo.
Voir plus

Référence: DMDM13DHI2834
Honoraires à la charge du vendeur.
Barème des honoraires
DPE
A
B
C
D
E
F
G
GES
A
B
C
D
E
F
G

Prêt immobilier

Vous souhaitez connaître votre capacité d’emprunt et trouver le meilleur crédit immobilier ?
Réaliser une simulation gratuite

Maison à TOURCOING
Maison à TOURCOING
Maison à TOURCOING
Maison à TOURCOING
Ce site est protégé par reCAPTCHA la Politique de confidentialité et les Conditions d’utilisation de Google s’appliquent.
Obtenir un prêt immobilier au meilleur taux ?

En poursuivant votre navigation sans modifier vos paramètres, vous acceptez l'utilisation de cookies susceptibles de réaliser des statistiques de visite. Cliquez ici pour plus d'informations