Bénéficiez des services de nos partenaires locaux soigneusement sélectionnés
pour vous accompagner dans votre parcours d'achat immobilier

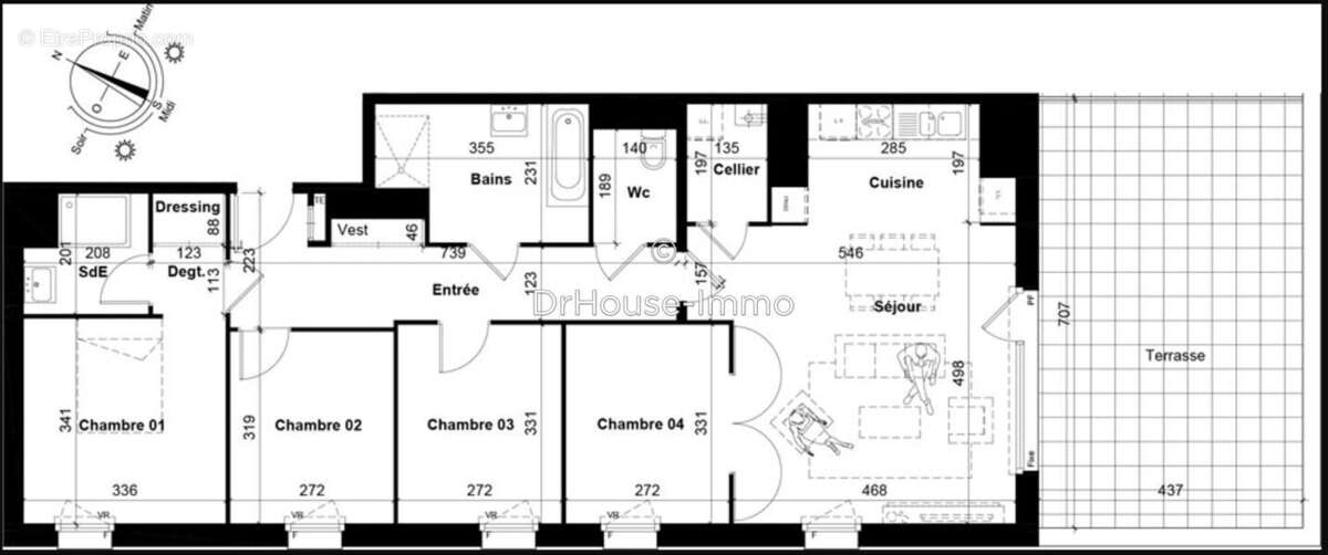
Appartement 99m² à tourcoing

— Tourcoing 59200 —
290 124 €
99 m² / 31 m²
5 pièces
parkingbalcon/terrasseascenseuraccès handicapé

Nos partenaires locaux
Entre le centre-ville de Tourcoing et le grand centre commercial de Roncq, la résidence offre des déplacements simples et rapides vers les principaux pôles commerçants alentours. En plein coeur d’un quartier vivant et bien équipé, l’adresse profite aussi de la proximité de nombreuses infrastructures sportives, culturelles ou scolaires. De la maternelle au lycée, tout ici est à proximité et la présence du parc Clémenceau à quelques minutes complète très bien les espaces verts communs du programme. À une vingtaine de minutes de l’animation du centre-ville, vous ne serez jamais loin non plus des théâtres et musées de la ville et vous profiterez facilement des plaisirs aquatiques du grand centre nautique de Tourcoing-les-Bains. Dernier atout de taille de l’adresse : la mobilité. Avec la voie rapide permettant d’accéder à Lille en moins de 20 min ou le métro Phalempin non loin, les centres-villes voisins ou la gare de TGV OUIGO de Tourcoing seront facilement sur votre chemin.

Pensé autour de la réhabilitation d’un bâtiment ancien, le projet consiste à créer 5 bâtiments et 25 maisons offrant un ensemble de 182 logements. Entre charme du patrimoine préservé et constructions récentes, la résidence propose une grande variété de typologies de maisons ou d’appartements, au coeur d’un ensemble verdoyant, un lieu de vie plein d’harmonie aux airs de petit quartier mêlant cachet de l’ancien et habitat de demain. Ce bien vous est présenté par David Mahieux, votre conseiller indépendant Dr House Immo.
Voir plus

Référence: DM6403DHI2834
Bien en copropriété.
Honoraires à la charge du vendeur.
Barème des honoraires
DPE
A
B
C
D
E
F
G
GES
A
B
C
D
E
F
G

Prêt immobilier

Vous souhaitez connaître votre capacité d’emprunt et trouver le meilleur crédit immobilier ?
Réaliser une simulation gratuite

Appartement à TOURCOING
Appartement à TOURCOING
Appartement à TOURCOING
Appartement à TOURCOING
Appartement à TOURCOING
Appartement à TOURCOING
Ce site est protégé par reCAPTCHA la Politique de confidentialité et les Conditions d’utilisation de Google s’appliquent.
Obtenir un prêt immobilier au meilleur taux ?

En poursuivant votre navigation sans modifier vos paramètres, vous acceptez l'utilisation de cookies susceptibles de réaliser des statistiques de visite. Cliquez ici pour plus d'informations