Bénéficiez des services de nos partenaires locaux soigneusement sélectionnés
pour vous accompagner dans votre parcours d'achat immobilier

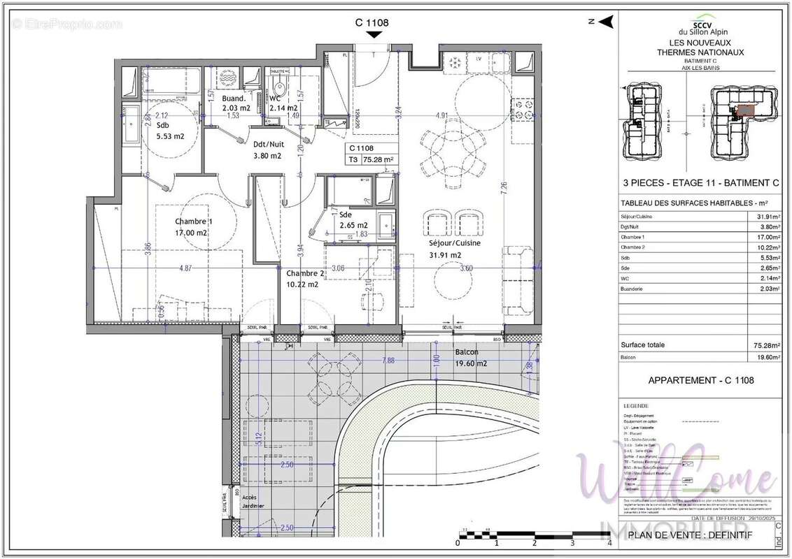
Appartement t3 de 75m² vendu avec box - résidence 'les nouveaux thermes'

— Aix-Les-Bains 73100 —
666 000 €
75 m²
3 pièces
parkingbalcon/terrasseascenseur

Nos partenaires locaux
À Aix-les-Bains, dans la prestigieuse résidence « Les Nouveaux Thermes » - Découvrez cet appartement 3 pièces de 75,28m² située au 11ème étage côté Ouest. Cet appartement haut de gamme comprend : pièce de vie de 31,91 m² accueillant séjour cuisine et prolongée par un balcon végétalisé de 19,60 m² côté Ouest. Lespace nuit comprend un dégagement, une chambre de 17m², une chambre de 10,22m² avec salle d'eau, une salle de bains, une buanderie, un wc. Box en sous-sol sécurisé inclus. La résidence se distingue par ses prestations premium et son engagement environnemental : façades végétalisées sur 3,5 km, plus de 15 000 plantes, toitures vertes, récupération des eaux pluviales et planchers chauffants/rafraîchissants par géothermie. Contactez votre agence WellCome Immobilier pour réserver cet appartement dexception parmi les premiers lots disponibles ! Dautres appartements neufs du T1 au T6 sont également proposés. Frais de notaire réduits Programme certifié RE2020 seuil 2022 & NF Habitat HQE Livraison prévue 1er trimestre 2029 Surface CARREZ : 75.28 m²
Voir plus

Référence: 73028798
Barème des honoraires

Prêt immobilier

Vous souhaitez connaître votre capacité d’emprunt et trouver le meilleur crédit immobilier ?
Réaliser une simulation gratuite

Appartement à AIX-LES-BAINS
Appartement à AIX-LES-BAINS
Appartement à AIX-LES-BAINS
Appartement à AIX-LES-BAINS
Appartement à AIX-LES-BAINS
Appartement à AIX-LES-BAINS
Appartement à AIX-LES-BAINS
Appartement à AIX-LES-BAINS
Appartement à AIX-LES-BAINS
Ce site est protégé par reCAPTCHA la Politique de confidentialité et les Conditions d’utilisation de Google s’appliquent.
Obtenir un prêt immobilier au meilleur taux ?

En poursuivant votre navigation sans modifier vos paramètres, vous acceptez l'utilisation de cookies susceptibles de réaliser des statistiques de visite. Cliquez ici pour plus d'informations