Bénéficiez des services de nos partenaires locaux soigneusement sélectionnés
pour vous accompagner dans votre parcours d'achat immobilier

Centre ville de st raphaël

— Saint-Raphael 83700 —
411 600 €
161 m²
4 pièces
parkingbalcon/terrasseascenseur

Nos partenaires locaux
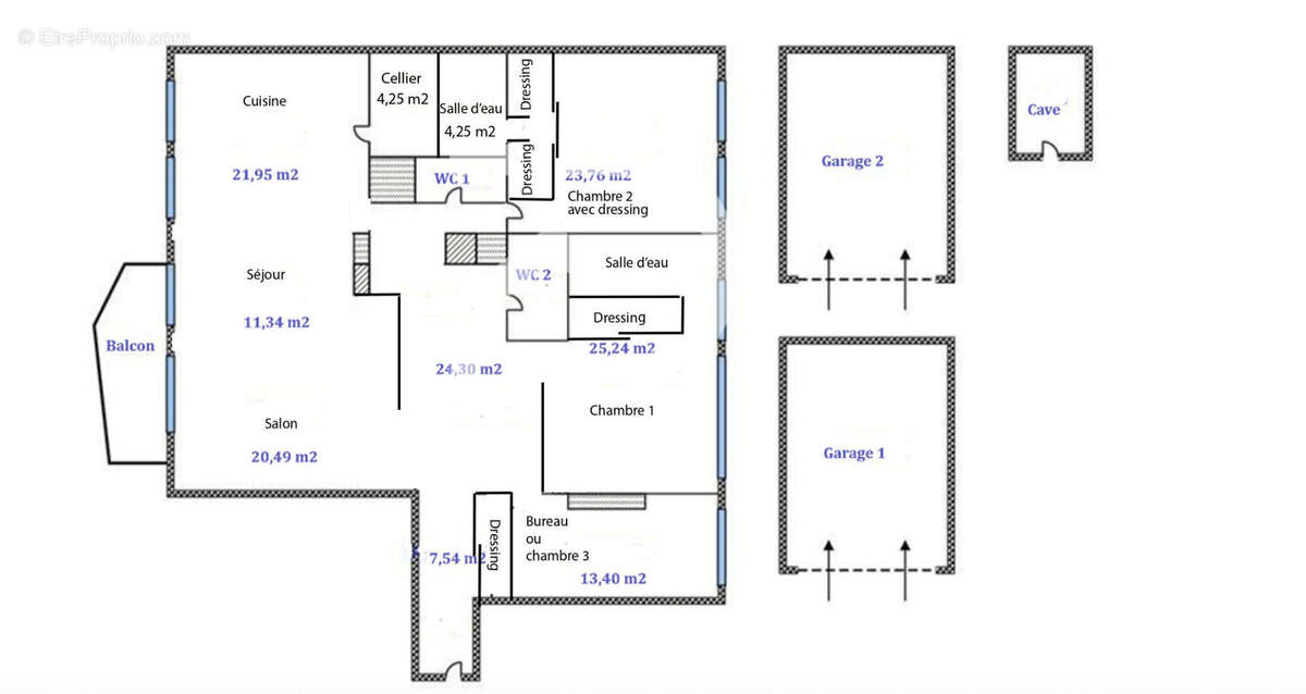
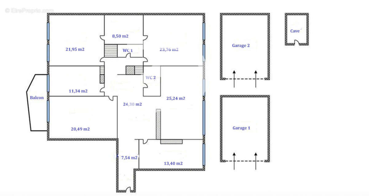
Idéalement situé en centre-ville de saint Raphaël, proche de la gare TGV et des commerces, plateau d'une superficie de 161m2, il offre la possibilité d'activités professionnels libérales ( juridiques, médicales paramédicales, courtier en assurance, architecte, etc.) mais la destination peut être modifiée pour devenir un spacieux appartement avec 3 chambres. il est actuellement composé d'une entrée, un espace pour l'accueil et secrétariat, 2 salles d'attente, 4 salles de consultations ou bureaux, 2 WC, un espace dédié aux archives. Pour compléter ce bien, 2 garages fermés en sous-sol et une cave. Bien en copropriété, 159 lots dont 58 lots d'habitation. Charges annuelles : 2400 euros DPE = D GES =B A visiter sans tarder, contacter Barbara MEJEAN au [Coordonnées masquées] Les informations sur les risques auxquels ce bien est exposé sont disponibles sur le site Géorisques : www.georisques.gouv.fr Copropriété de 158 lots - dont 58 lots habitation. (Pas de procédure en cours). Charges annuelles : 2400 euros.
Voir plus

Référence: 1837
Bien en copropriété. Nombre de lots : 158. Charges de copropriété : 2400 €.
Honoraires à la charge du vendeur.
Barème des honoraires
DPE
A
B
C
D
E
F
G
GES
A
B
C
D
E
F
G

Prêt immobilier

Vous souhaitez connaître votre capacité d’emprunt et trouver le meilleur crédit immobilier ?
Réaliser une simulation gratuite

Appartement à SAINT-RAPHAEL
Appartement à SAINT-RAPHAEL
Appartement à SAINT-RAPHAEL
Appartement à SAINT-RAPHAEL
Appartement à SAINT-RAPHAEL
Appartement à SAINT-RAPHAEL
Appartement à SAINT-RAPHAEL
Appartement à SAINT-RAPHAEL
Appartement à SAINT-RAPHAEL
Appartement à SAINT-RAPHAEL
Appartement à SAINT-RAPHAEL
Appartement à SAINT-RAPHAEL
Appartement à SAINT-RAPHAEL
Appartement à SAINT-RAPHAEL
Appartement à SAINT-RAPHAEL
Appartement à SAINT-RAPHAEL
Ce site est protégé par reCAPTCHA la Politique de confidentialité et les Conditions d’utilisation de Google s’appliquent.
Obtenir un prêt immobilier au meilleur taux ?

En poursuivant votre navigation sans modifier vos paramètres, vous acceptez l'utilisation de cookies susceptibles de réaliser des statistiques de visite. Cliquez ici pour plus d'informations