Bénéficiez des services de nos partenaires locaux soigneusement sélectionnés
pour vous accompagner dans votre parcours d'achat immobilier

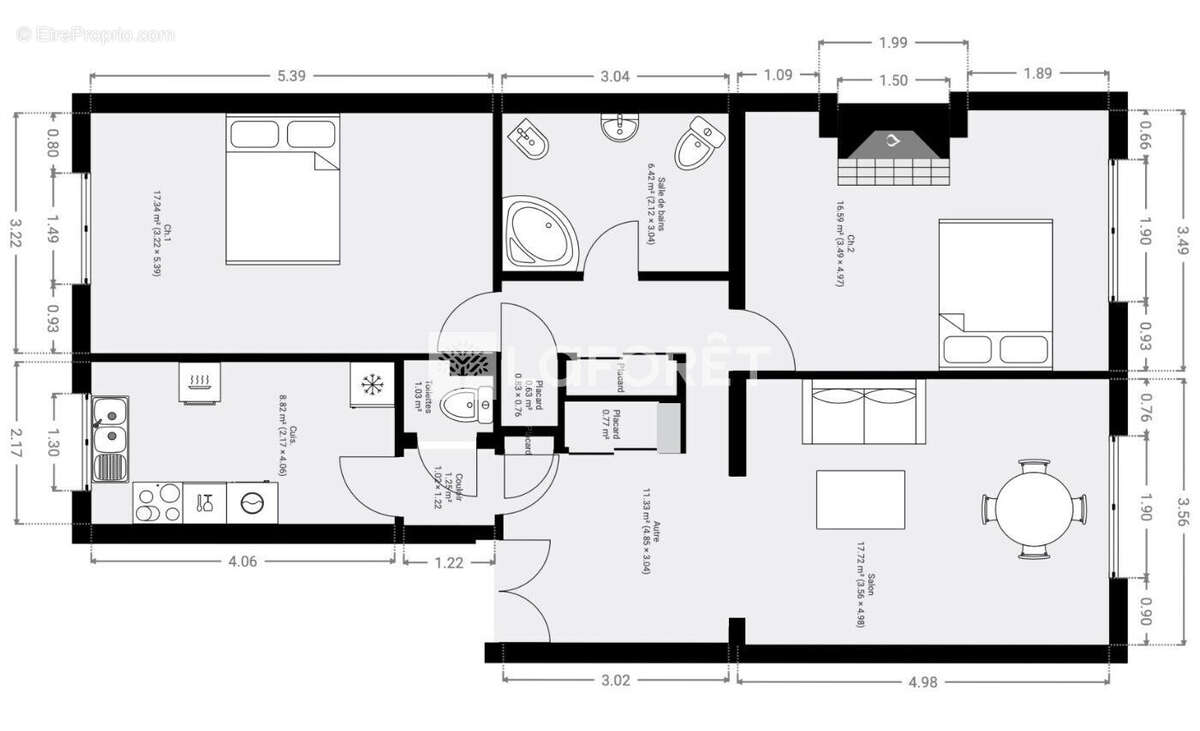
Paris 8 - courcelles - 3 pièces de 84m²

— Paris-8e 75008 —
949 000 €
84 m²
3 pièces
ascenseur

Nos partenaires locaux
PARIS 8 - HAUSSMANN / COURCELLES - A deux pas du Parc Monceau, Laforêt Haussmann vous présente un charmant appartement de 83.72m² carrez, en étage élevé par ascenseur d'un immeuble semi récent parfaitement entretenu. Ce bien, traversant, possède des pièces aux surfaces généreuses, avec une belle hauteur sous plafond pour cette époque de construction (2.80m). Il comprend : entrée avec rangements, séjour, cuisine indépendante, deux chambres dont une avec cheminée, et salle de bain avec WC. Rafraichissement à prévoir pour révéler le plein potentiel de ce bien. Double séjour + 2 chambres possible. A proximité immédiate des écoles de renom (EIB Monceau), des transports (métro L2 et L9, Gare St Lazare 17min à pied) et des commerces. Localisation recherchée, à voir rapidement ! (4.86 % honoraires TTC à la charge de l'acquéreur.)
Voir plus

Référence: 328
Honoraires d'agence de 4.86% à la charge de l'acquéreur
Barème des honoraires
DPE
A
B
C
D
E
F
G
GES
A
B
C
D
E
F
G

Prêt immobilier

Vous souhaitez connaître votre capacité d’emprunt et trouver le meilleur crédit immobilier ?
Réaliser une simulation gratuite

Appartement à PARIS-8E
Appartement à PARIS-8E
Appartement à PARIS-8E
Appartement à PARIS-8E
Appartement à PARIS-8E
Appartement à PARIS-8E
Appartement à PARIS-8E
Appartement à PARIS-8E
Appartement à PARIS-8E
Appartement à PARIS-8E
Appartement à PARIS-8E
Appartement à PARIS-8E
Ce site est protégé par reCAPTCHA la Politique de confidentialité et les Conditions d’utilisation de Google s’appliquent.
Obtenir un prêt immobilier au meilleur taux ?

En poursuivant votre navigation sans modifier vos paramètres, vous acceptez l'utilisation de cookies susceptibles de réaliser des statistiques de visite. Cliquez ici pour plus d'informations