Bénéficiez des services de nos partenaires locaux soigneusement sélectionnés
pour vous accompagner dans votre parcours d'achat immobilier

Carré d’or – grand studio avec terrasse à rénover

— Nice 06000 —
325 000 €
34 m²
1 pièce
parkingbalcon/terrasse

Nos partenaires locaux
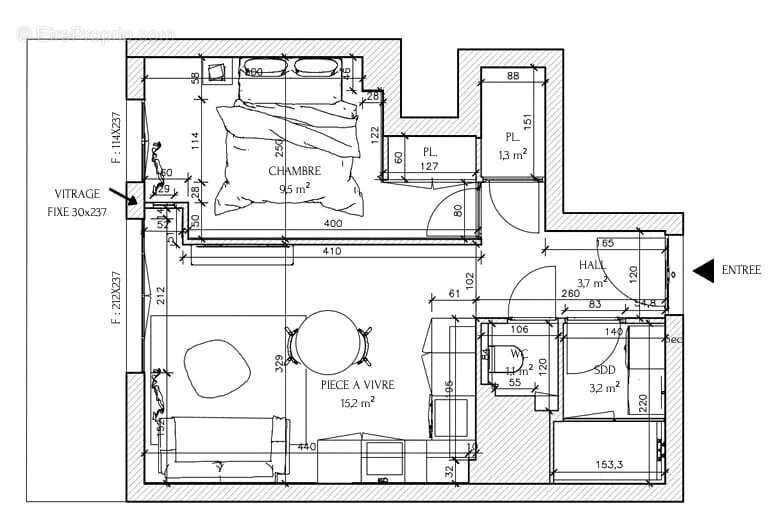
Carré d’Or – Situé Rue de la Buffa, à proximité immédiate de la Promenade des Anglais et de toutes les commodités, ce grand studio de 34 m² se trouve au 3ᵉ étage d’un immeuble bien entretenu avec ascenseur.
L’appartement est à rénover et dispose d’une belle terrasse de 9 m² exposée côté rue. Certains visuels publiés correspondent à un exemple d’aménagement possible après travaux en configuration 2 pièces (coût estimé des travaux 40 000€ environ).
Actuellement, il se compose d’une entrée, d’un séjour ouvrant sur la terrasse, d’une cuisine indépendante, d’une salle de bain et d’un WC.
Charges bien gérées. Idéal pour un pied-à-terre ou un premier achat.
Photos non contractuelles. Yann GUALLIGOT [Coordonnées masquées]
Voir plus

Référence: 01000YG
Barème des honoraires

Prêt immobilier

Vous souhaitez connaître votre capacité d’emprunt et trouver le meilleur crédit immobilier ?
Réaliser une simulation gratuite

Appartement à NICE
Appartement à NICE
Appartement à NICE
Appartement à NICE
Appartement à NICE
Appartement à NICE
Appartement à NICE
Appartement à NICE
Appartement à NICE
Appartement à NICE
Appartement à NICE
Appartement à NICE
Appartement à NICE
Appartement à NICE
Ce site est protégé par reCAPTCHA la Politique de confidentialité et les Conditions d’utilisation de Google s’appliquent.
Obtenir un prêt immobilier au meilleur taux ?

En poursuivant votre navigation sans modifier vos paramètres, vous acceptez l'utilisation de cookies susceptibles de réaliser des statistiques de visite. Cliquez ici pour plus d'informations