Bénéficiez des services de nos partenaires locaux soigneusement sélectionnés
pour vous accompagner dans votre parcours d'achat immobilier

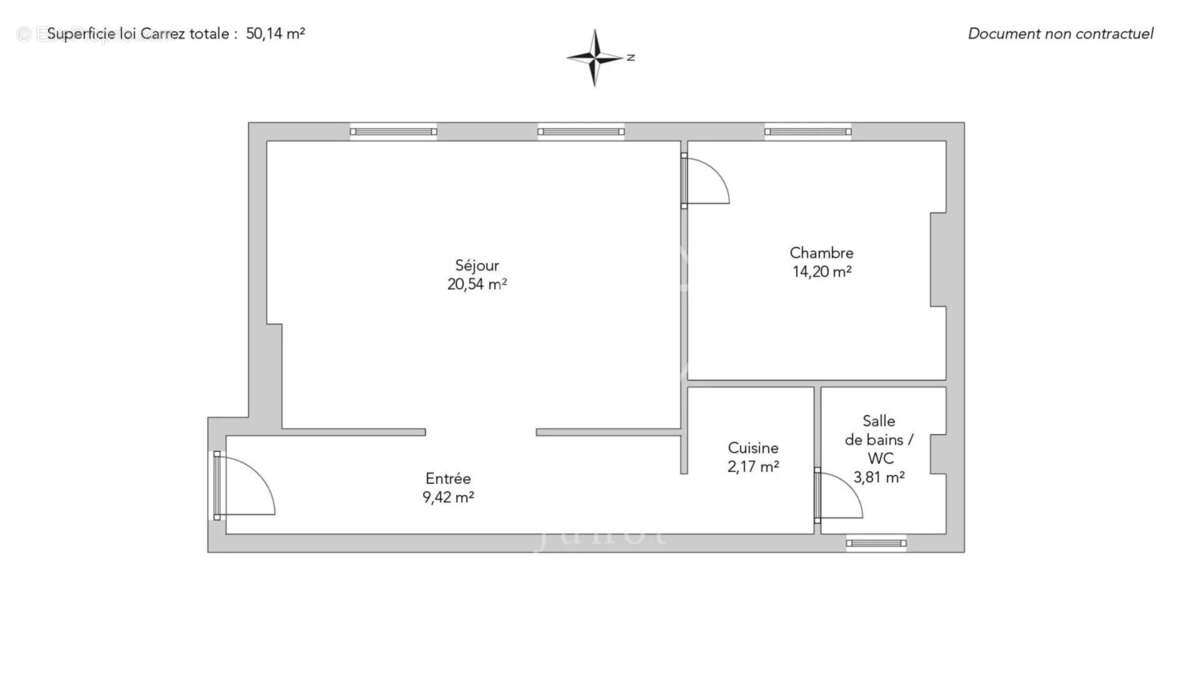
Paris 18e - abbesses - appartement à vendre - 2 pièces - 50,14 m² carrez - 1 chambre.

— Paris-18e 75018 —
633 000 €
50 m²
2 pièces

Nos partenaires locaux
À quelques pas de la charmante place des Abbesses, dans une rue calme, découvrez cet appartement de 50.14m² loi, véritable cocon baigné de soleil grâce à sa vue dégagée et son exposition plein Ouest. Situé au troisième étage par escalier d'un immeuble parfaitement entretenu, il bénéficie d'un plan idéal sans aucune perte d’espace, comprenant un généreux séjour lumineux doté de deux fenêtres, une chambre avec rangements sur mesure, une cuisine indépendante facilement ouvrable sur le séjour et une salle de bains avec toilettes sur cour. Modulable à souhait (aucun mur porteur), il offre de belles possibilités d’aménagement. Une cave complète ce bien rare et recherché.
Voir plus

Référence: 3219ABBLEV
Barème des honoraires
DPE
A
B
C
D
E
F
G
GES
A
B
C
D
E
F
G

Prêt immobilier

Vous souhaitez connaître votre capacité d’emprunt et trouver le meilleur crédit immobilier ?
Réaliser une simulation gratuite

Appartement à PARIS-18E
Appartement à PARIS-18E
Appartement à PARIS-18E
Appartement à PARIS-18E
Appartement à PARIS-18E
Appartement à PARIS-18E
Appartement à PARIS-18E
Appartement à PARIS-18E
Appartement à PARIS-18E
Appartement à PARIS-18E
Appartement à PARIS-18E
Appartement à PARIS-18E
Appartement à PARIS-18E
Appartement à PARIS-18E
Appartement à PARIS-18E
Appartement à PARIS-18E
Appartement à PARIS-18E
Appartement à PARIS-18E
Ce site est protégé par reCAPTCHA la Politique de confidentialité et les Conditions d’utilisation de Google s’appliquent.
Obtenir un prêt immobilier au meilleur taux ?

En poursuivant votre navigation sans modifier vos paramètres, vous acceptez l'utilisation de cookies susceptibles de réaliser des statistiques de visite. Cliquez ici pour plus d'informations