Pas de parking à Noyelles-Sur-Mer pour le moment. Découvrez dès maintenant les parkings dans le département Somme.
Bénéficiez des services de nos partenaires locaux soigneusement sélectionnés
pour vous accompagner dans votre parcours d'achat immobilier

Voir tous les partenaires locaux

Paris xvi, local commercial, bureaux, 259 m2

— Paris-16e 75016 —
2 450 000 €
259 m²
9 pièces
parking

Nos partenaires locaux
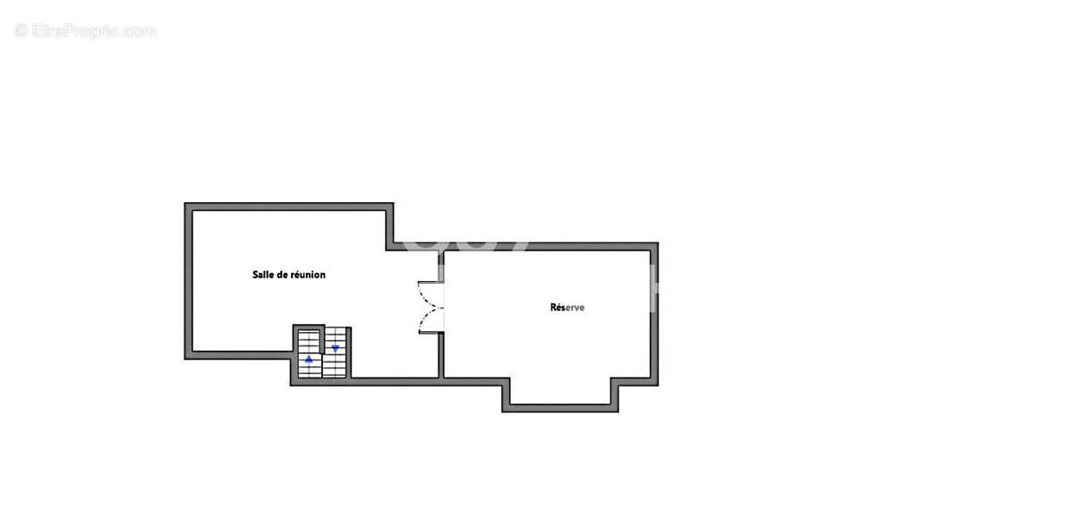
Dans un immeuble contemporain de 1993, cet espace de bureaux de 259 m² Carrez (294m² au sol) , se distingue par ses 3 accès indépendants, dont l'un privatif. L'organisation intérieure se compose d'un vaste hall d'accueil, de 8 salles ou bureaux, d'une cuisine séparée, de sanitaires, ainsi que de 3 terrasses. Au niveau inférieur, 2 volumes spacieux. Elles peuvent convenir pour une grande salle de réunion ou d'une surface de stockage généreuse. Le bien est par ailleurs complété par deux emplacements de stationnement privatifs, aisément accessibles via un monte-charge sécurisé. Prix net vendeur : 2 350 000 euros. + Honoraires de transaction : 4.26 % TTC, à la charge de l'acquéreur. Appelez dès aujourd'hui pour en savoir plus et planifier une visite. (4.26 % honoraires TTC à la charge de l'acquéreur.) Copropriété de 10 lots. Charges annuelles : 2399 euros.
Voir plus

Bien en copropriété. Nombre de lots : 10. Charges de copropriété : 2399 €. Procédure en cours : Procédure en cours.
Honoraires d'agence de 4.26% à la charge de l'acquéreur
DPE
A
B
C
D
E
F
G
GES
A
B
C
D
E
F
G

Prêt immobilier

Vous souhaitez connaître votre capacité d’emprunt et trouver le meilleur crédit immobilier ?
Réaliser une simulation gratuite

Commerce à PARIS-16E
Commerce à PARIS-16E
Commerce à PARIS-16E
Commerce à PARIS-16E
Commerce à PARIS-16E
Commerce à PARIS-16E
Commerce à PARIS-16E
Commerce à PARIS-16E
Ce site est protégé par reCAPTCHA la Politique de confidentialité et les Conditions d’utilisation de Google s’appliquent.
Obtenir un prêt immobilier au meilleur taux ?

En poursuivant votre navigation sans modifier vos paramètres, vous acceptez l'utilisation de cookies susceptibles de réaliser des statistiques de visite. Cliquez ici pour plus d'informations