Maison t6 i hyper centre dinan i

— Dinan 22100 —
499 000 €
135 m²
6 pièces

Liberkeys vous propose, en exclusivité au cœur de Dinan, cette ravissante maison familiale récente de 135 m², offrant un cadre de vie idéal à quelques pas du centre historique et de toutes les commodités. Parfaitement adaptée à une famille, elle dispose de cinq chambres lumineuses, dont deux suites parentales.
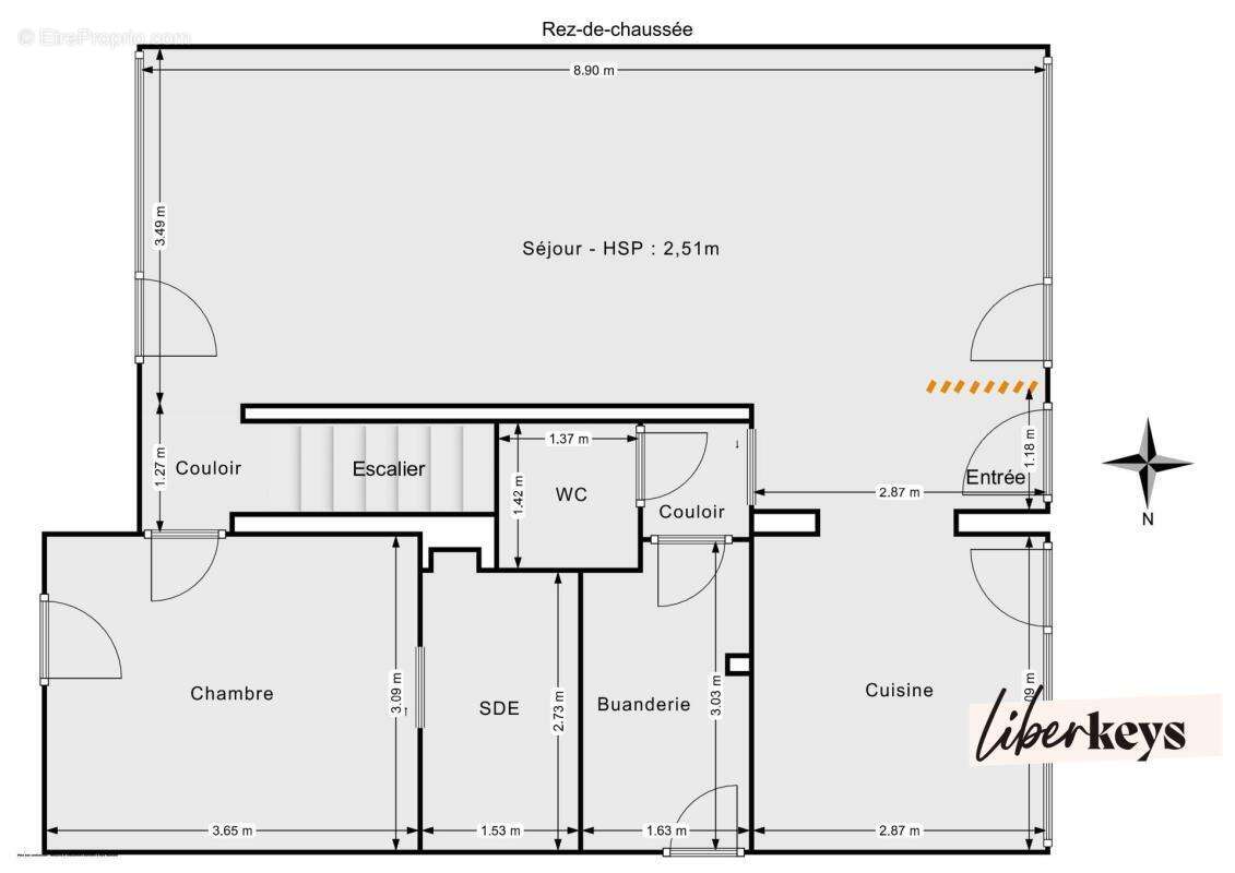
Rez-de-chaussée – Vie de plain-pied :
Vaste salon-séjour traversant avec cuisine ouverte, idéal pour recevoir
Arrière-cuisine fonctionnelle
WC indépendant
Suite parentale privative avec sa salle d'eau
Étage – Espace nuit confort :
Quatre chambres, dont une suite parentale avec salle d'eau
Salle de bains familiale
WC séparé
Chaque membre de la famille profite d'un confort optimal grâce à trois salles de bains et deux WC, simplifiant l'organisation au quotidien. La grande pièce de vie et les volumes généreux offrent un véritable potentiel d'aménagement.
Environnement & Localisation :
Située au centre-ville de Dinan, vous profiterez :
Du charme du patrimoine médiéval
Des écoles, commerces et restaurants à proximité
Du Jardin Anglais et des espaces verts
D'un accès rapide aux axes routiers : Saint-Malo, plages et Côte d'Émeraude à moins de 30 min
Extérieurs et prestations :
Deux terrasses pour les repas d'été
Portail électrique
Charges mensuelles faibles, diagnostique : B , RT 2012
Taxe foncière : 1 574 €/an
DPE :
Montant estimé des dépenses annuelles d'énergie pour un usage standard : entre 710 € et 1 010 € par an
Prix moyens des énergies indexés sur 2023 (abonnements inclus).
Diagnostic réalisé le 14/11/2025.
Ce bien vous intéresse ?
Visitez-le virtuellement en 3D sur le site de Liberkeys ou contactez votre conseiller :
Le Gall Hugues
Agent commercial immatriculé au RSAC de Saint-Malo n° 502 019 771
Référence annonce : DOM18673
Honoraires à la charge de l'acquéreur.
Voir plus

Référence: DOM18673
Honoraires d'agence de 3% à la charge de l'acquéreur
DPE
A
B
C
D
E
F
G
GES
A
B
C
D
E
F
G

Prêt immobilier

Vous souhaitez connaître votre capacité d’emprunt et trouver le meilleur crédit immobilier ?
Réaliser une simulation gratuite

Maison à DINAN
Maison à DINAN
Maison à DINAN
Maison à DINAN
Maison à DINAN
Maison à DINAN
Maison à DINAN
Maison à DINAN
Maison à DINAN
Maison à DINAN
Maison à DINAN
Maison à DINAN
Maison à DINAN
Maison à DINAN
Ce site est protégé par reCAPTCHA la Politique de confidentialité et les Conditions d’utilisation de Google s’appliquent.
Obtenir un prêt immobilier au meilleur taux ?

En poursuivant votre navigation sans modifier vos paramètres, vous acceptez l'utilisation de cookies susceptibles de réaliser des statistiques de visite. Cliquez ici pour plus d'informations