Bénéficiez des services de nos partenaires locaux soigneusement sélectionnés
pour vous accompagner dans votre parcours d'achat immobilier

Ensemble immobilier avec deux logements, garage, dépendance et jardin à gumbrechtshoffen

— Gumbrechtshoffen 67110 —
221 490 €
183 m² / 501 m²
7 pièces
parkingjardin

Nos partenaires locaux
À proximité du centre de Gumbrechtshoffen, découvrez un ensemble immobilier rare réunissant deux logements indépendants, de beaux volumes, des extérieurs agréables et un potentiel remarquable, aussi bien pour un projet familial que pour un investissement locatif pérenne.

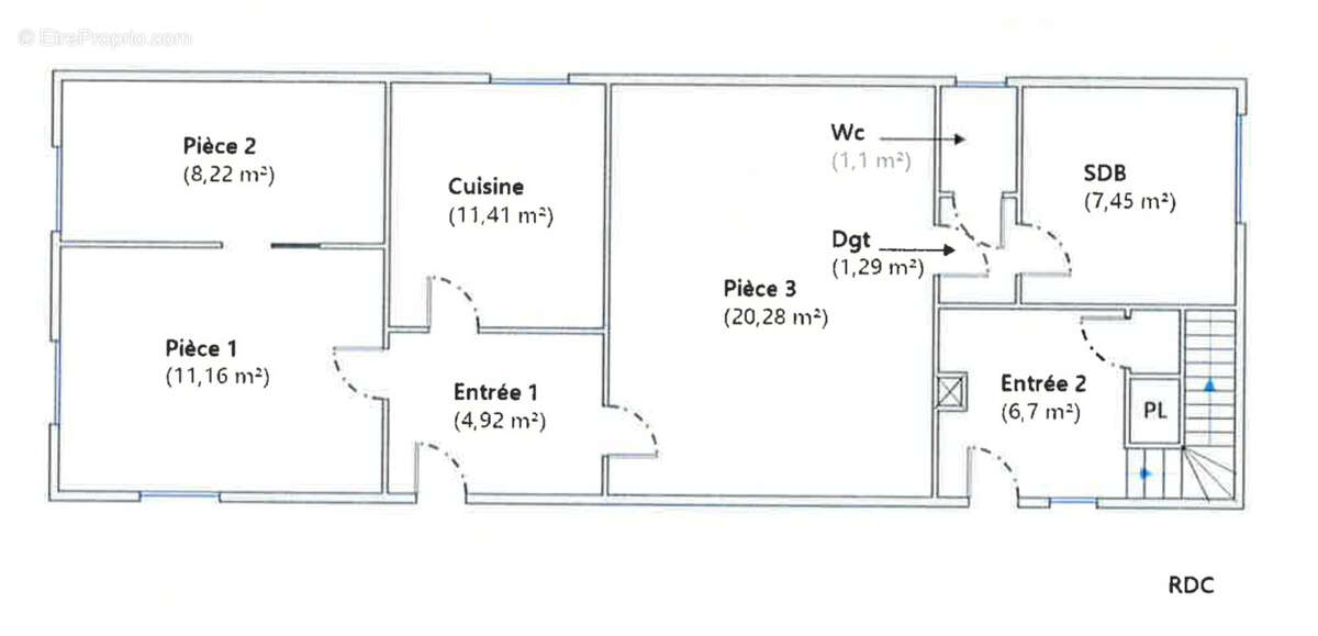
Le premier logement, un F2 d’environ 65 m2 situé au rez-de-chaussée, est actuellement loué pour un montant de 470 € par mois auquel s’ajoutent 30 € de charges. Le bail a été signé en mars 2024. Il se compose d’une entrée, d’un séjour lumineux, d’une cuisine séparée, d’une chambre, d’une salle d’eau et d’un WC indépendant. Le logement bénéficie d’un chauffage individuel au gaz, d’une production d’eau chaude autonome, ainsi que d’un compteur d’eau individuel. Il dispose également d’une cave privative, idéale pour le stockage et très appréciée en location.

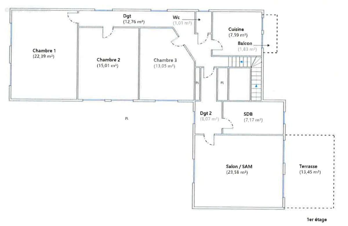
Au premier étage, le second logement est un spacieux F4 d’environ 110 m2 offrant un cadre de vie confortable. Il comprend un vaste séjour ouvrant sur une belle terrasse, parfaite pour profiter des beaux jours, ainsi qu’une cuisine indépendante agrémentée d’un petit balcon. Trois à quatre chambres peuvent être aménagées selon les besoins, complétées par une salle de bains et un WC séparé. Ce logement se chauffe grâce à une chaudière fioul, qui assure également la production d’eau chaude, et il est équipé lui aussi d’un compteur d’eau individuel. Il bénéficie par ailleurs de sa propre cave privative, un espace supplémentaire précieux pour le rangement. Ses volumes généreux, sa luminosité et ses extérieurs privatifs en font un appartement familial particulièrement attractif.

À l’arrière de la maison, la propriété propose un jardin agréable ainsi qu’une dépendance utilisée comme cuisine d’été, offrant de multiples possibilités d’aménagement : atelier, espace de loisirs, rangement supplémentaire ou annexe selon les projets et besoins futurs. Un garage vient compléter l’ensemble, ainsi que des accès pratiques favorisant circulation et stationnement.

Cet ensemble immobilier constitue une opportunité rare dans le secteur, que ce soit pour loger plusieurs membres d’une même famille, bénéficier d’un revenu locatif tout en occupant les lieux, ou développer un projet patrimonial à forte valeur ajoutée.

Pour toute information ou pour prévoir une visite, je me tiens à votre disposition.
Voir plus

Référence: 573
Barème des honoraires
DPE
A
B
C
D
E
F
G
GES
A
B
C
D
E
F
G

Prêt immobilier

Vous souhaitez connaître votre capacité d’emprunt et trouver le meilleur crédit immobilier ?
Réaliser une simulation gratuite

Appartement à GUMBRECHTSHOFFEN
Appartement à GUMBRECHTSHOFFEN
Appartement à GUMBRECHTSHOFFEN
Appartement à GUMBRECHTSHOFFEN
Appartement à GUMBRECHTSHOFFEN
Appartement à GUMBRECHTSHOFFEN
Appartement à GUMBRECHTSHOFFEN
Appartement à GUMBRECHTSHOFFEN
Appartement à GUMBRECHTSHOFFEN
Appartement à GUMBRECHTSHOFFEN
Appartement à GUMBRECHTSHOFFEN
Appartement à GUMBRECHTSHOFFEN
Appartement à GUMBRECHTSHOFFEN
Appartement à GUMBRECHTSHOFFEN
Appartement à GUMBRECHTSHOFFEN
Appartement à GUMBRECHTSHOFFEN
Appartement à GUMBRECHTSHOFFEN
Ce site est protégé par reCAPTCHA la Politique de confidentialité et les Conditions d’utilisation de Google s’appliquent.
Obtenir un prêt immobilier au meilleur taux ?

En poursuivant votre navigation sans modifier vos paramètres, vous acceptez l'utilisation de cookies susceptibles de réaliser des statistiques de visite. Cliquez ici pour plus d'informations