Maison de village mitoyenne avec garage

— Lasalle 30460 —
137 000 €
129 m² / 415 m²
5 pièces
parkingbalcon/terrassejardin

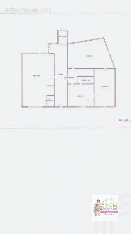
Christine AIGOIN vous propose à la vente cette maison de village de 129 m2 habitables environ, implantée sur un terrain de 415 m2, jardin en bancels, garage, deux caves et grenier aménageable.
Chauffage fioul+cheminées.
Beau potentiel: rez-de-chaussée et une partie du premier étage à repenser entièrement ( création d'une cuisine, chambre, salon ou autre) et une autre partie déjà rénovée (double vitrage, chambre, salle de bain, point d'eau avec lavabo et WC.
Toiture refaite il y a plus de 15 ans.
Idéal bricoleur ou projet familial: un bien authentique avec du caractère, offrant la possibilité de créer un lieu de vie unique. les volumes, le jardin et le grenier permettent d'imaginer une maison chaleureuse et personnalisée selon vos envies.
Un vrai projet coup de coeur pour qui veut façonner son intérieur.

Je vous laisse me contacter pour organiser une visite!
La présente annonce immobilière a été rédigée sous la responsabilité éditoriale de Mme Christine AIGOIN, agent commercial, enregistrée au tribunal de commerce de Nîmes sous le numéro RSAC 978 283 588. Montant estimé des dépenses annuelles d'énergie pour un usage standard entre 3870€ et 5310€ par an. prix moyens des énergies indexés sue les années 2021, 2022, 2023 (abonnement compris).
les informations sur les risques auxquels ce bien est exposé, sont disponibles sur le site Géorisques: https://www.georisques.gouv.fr
Référence agence : 14167
Voir plus

Référence: GADS-A4V-UGZ
Honoraires à la charge du vendeur.
DPE
A
B
C
D
E
F
G
GES
A
B
C
D
E
F
G

Prêt immobilier

Vous souhaitez connaître votre capacité d’emprunt et trouver le meilleur crédit immobilier ?
Réaliser une simulation gratuite

Maison à LASALLE
Maison à LASALLE
Maison à LASALLE
Maison à LASALLE
Maison à LASALLE
Maison à LASALLE
Maison à LASALLE
Maison à LASALLE
Maison à LASALLE
Maison à LASALLE
Maison à LASALLE
Maison à LASALLE
Maison à LASALLE
Maison à LASALLE
Maison à LASALLE
Maison à LASALLE
Maison à LASALLE
Maison à LASALLE
Maison à LASALLE
Ce site est protégé par reCAPTCHA la Politique de confidentialité et les Conditions d’utilisation de Google s’appliquent.
Obtenir un prêt immobilier au meilleur taux ?

En poursuivant votre navigation sans modifier vos paramètres, vous acceptez l'utilisation de cookies susceptibles de réaliser des statistiques de visite. Cliquez ici pour plus d'informations