Bénéficiez des services de nos partenaires locaux soigneusement sélectionnés
pour vous accompagner dans votre parcours d'achat immobilier

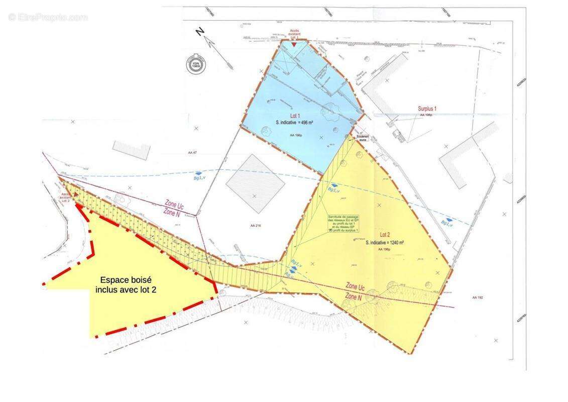
Terrain la combe de lancey 1240m2 lot 2 avec espace boisé de 1360m2

— La Combe-De-Lancey 38190 —
175 000 €
1 240 m²

Nos partenaires locaux
Sur le bas de LA COMBE DE LANCEY, joli terrain non viabilisé de 1240m2, vue sur la vallée du Grésivaudan et du massif de la Chartreuse., vendu avec un espace boisé de 1360m2.
Vous profiterez d'un bel ensoleillement, d'un secteur calme et recherché à 5 minutes de la gare de Lancey et des commodités.
Exemple de projet : Maison plain-pied T4, sur sous-sol, 96m2 hab. sous-sol avec garage 106m2. Projet global : 490 000€
LIBRE DE CONSTRUCTEUR.
Un nouveau lieu de bonheur pour votre famille, dans une maison que vous aurez choisi, au calme avec une vue magnifique, dans un cadre champêtre..
Pour plus de renseignements, contactez Mylène ORPI (carte de visite en photo)
Référence agence : 1755
Voir plus

Référence: 187D-YU7-XOG
Honoraires à la charge du vendeur.

Prêt immobilier

Vous souhaitez connaître votre capacité d’emprunt et trouver le meilleur crédit immobilier ?
Réaliser une simulation gratuite

Terrain à LA COMBE-DE-LANCEY
Terrain à LA COMBE-DE-LANCEY
Terrain à LA COMBE-DE-LANCEY
Terrain à LA COMBE-DE-LANCEY
Terrain à LA COMBE-DE-LANCEY
Terrain à LA COMBE-DE-LANCEY
Terrain à LA COMBE-DE-LANCEY
Terrain à LA COMBE-DE-LANCEY
Terrain à LA COMBE-DE-LANCEY
Terrain à LA COMBE-DE-LANCEY
Terrain à LA COMBE-DE-LANCEY
Terrain à LA COMBE-DE-LANCEY
Terrain à LA COMBE-DE-LANCEY
Terrain à LA COMBE-DE-LANCEY
Terrain à LA COMBE-DE-LANCEY
Terrain à LA COMBE-DE-LANCEY
Terrain à LA COMBE-DE-LANCEY
Terrain à LA COMBE-DE-LANCEY
Ce site est protégé par reCAPTCHA la Politique de confidentialité et les Conditions d’utilisation de Google s’appliquent.
Obtenir un prêt immobilier au meilleur taux ?

En poursuivant votre navigation sans modifier vos paramètres, vous acceptez l'utilisation de cookies susceptibles de réaliser des statistiques de visite. Cliquez ici pour plus d'informations