Bénéficiez des services de nos partenaires locaux soigneusement sélectionnés
pour vous accompagner dans votre parcours d'achat immobilier

Maison perpignan - 66000

— Perpignan 66000 —
199 000 €
106 m² / 154 m²
6 pièces
parking

Nos partenaires locaux
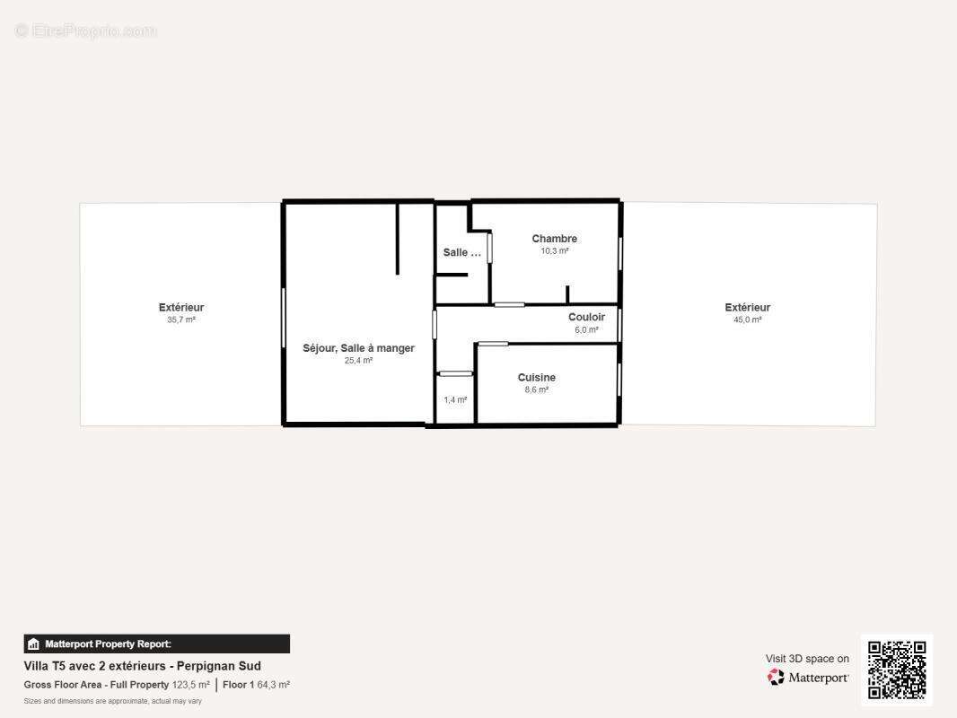
Dans un quartier résidentiel de Perpignan Sud, cette maison 2 faces de 106 m² habitables, sur une parcelle de 154 m², constitue une belle opportunité pour une famille en quête d'espace et de fonctionnalité.Le rez-de-chaussée propose une configuration idéale avec :- Un séjour lumineux donnant sur une terrasse sans vis-à-vis, à l'abri des regards,- Une cuisine indépendante offrant un potentiel de réaménagement moderne,- Une suite parentale avec salle d'eau privative, idéale pour une vie de plain-pied.À l'étage, l'espace nuit dessert quatre chambres et une seconde salle d'eau, pratique pour une famille nombreuse ou pour recevoir confortablement.À l'extérieur, vous profitez de deux espaces bien distincts :- À l'avant, une cour privative de 50 m² avec tonnelle, permettant le stationnement sécurisé d'un véhicule,- À l'arrière, un jardin intime de 50 m² avec terrasse, idéal pour les repas en plein air ou les jeux des enfants. La végétation environnante et l'exposition favorisent une atmosphère agréable et paisible tout au long de l'année.- Et juste derrière la maison, une aire de stationnement libre permet de garer un second véhicule facilement.Des travaux de mise au goût du jour sont à prévoir, offrant une belle opportunité de personnaliser la maison selon vos envies et votre style de vie.LES ATOUTS : - 5 chambres + 2 salles d'eau- Jardin et terrasse sans vis-à-vis- Cour avec stationnement privatif- Quartier bien desservi- Écoles, commerces et bus accessibles à pied- Accès rapide à la rocade, au centre-ville et aux plagesPour plus d'informations ou organiser une visite, contactez votre conseiller OPTIMO (by KW) - Jean GOMES - RSAC : 835104340 PERPIGNAN

Votre conseiller TEAM 66 : Jean GOMES
Agent commercial (Entreprise individuelle)
RSAC 835104340
RCP 127124335
Voir plus

Référence: VM5796-TEAM66
Honoraires à la charge du vendeur.
DPE
A
B
C
D
E
F
G
GES
A
B
C
D
E
F
G

Prêt immobilier

Vous souhaitez connaître votre capacité d’emprunt et trouver le meilleur crédit immobilier ?
Réaliser une simulation gratuite

Maison à PERPIGNAN
Maison à PERPIGNAN
Maison à PERPIGNAN
Maison à PERPIGNAN
Maison à PERPIGNAN
Maison à PERPIGNAN
Maison à PERPIGNAN
Maison à PERPIGNAN
Maison à PERPIGNAN
Maison à PERPIGNAN
Maison à PERPIGNAN
Maison à PERPIGNAN
Maison à PERPIGNAN
Maison à PERPIGNAN
Maison à PERPIGNAN
Maison à PERPIGNAN
Maison à PERPIGNAN
Maison à PERPIGNAN
Maison à PERPIGNAN
Maison à PERPIGNAN
Maison à PERPIGNAN
Maison à PERPIGNAN
Maison à PERPIGNAN
Maison à PERPIGNAN
Ce site est protégé par reCAPTCHA la Politique de confidentialité et les Conditions d’utilisation de Google s’appliquent.
Obtenir un prêt immobilier au meilleur taux ?

En poursuivant votre navigation sans modifier vos paramètres, vous acceptez l'utilisation de cookies susceptibles de réaliser des statistiques de visite. Cliquez ici pour plus d'informations