Bénéficiez des services de nos partenaires locaux soigneusement sélectionnés
pour vous accompagner dans votre parcours d'achat immobilier

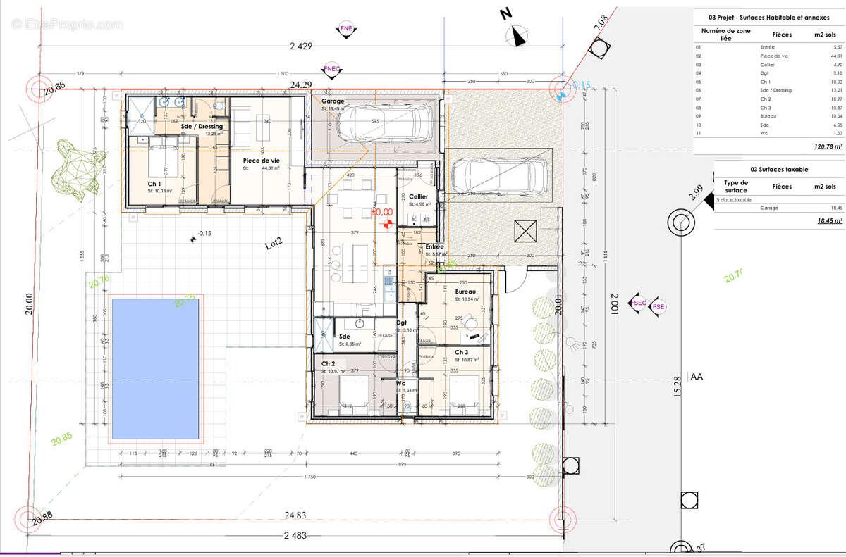
Niort plain pied 4 chambres garage piscine

— Niort 79000 —
416 500 €
121 m² / 491 m²
6 pièces
parkingbalcon/terrassejardinpiscine

Nos partenaires locaux
Faites l'acquisition de ce magnifique plain-pied situé dans un quartier calme en impasse à NIORT.
Cette construction en L de 2022 comprend : Entrée, grande pièce de vie lumineuse avec cuisine ouverte aménagée et équipée et ouverture sur l’extérieur par une grande baie à galandage, 4 chambres dont une suite parentale avec dressing, salle d’eau et WC séparé, seconde salle d’eau + WC indépendant, cellier communiquant avec garage avec porte motorisé, 2 places de stationnement extérieur, jardin clos avec terrasse et piscine chauffée.
Les atouts de cette maison récente et moderne, pensée pour le confort et la fonctionnalité sont :
• Chauffage et rafraîchissement au sol par pompe à chaleur (Daïkin)
• Domotique pour la centralisation des volets roulants, le chauffage piscine, les ventilateurs...
• Matériaux de qualité , garanties constructeur et décennales en cours
• L'environnement : quartier calme, idéal pour une vie de famille, proche de toutes commodités : écoles, lycée, conservatoire de musique, piscine, parc, commerces, bus...

Une opportunité à ne pas rater !

Les informations sur les risques auxquels ce bien est exposé sont disponibles sur le site Géorisques : georisques.gouv.fr

Date de réalisation du diagnostic énergétique : 21/08/2025 Consommation énergie primaire : 34 kWh/m2/an Consommation énergie finale : 14 kWh/m2/an

Montant estimé des dépenses annuelles d'énergie pour un usage standard : entre 400 € et 600 € sur les années 2021, 2022 et 2023 (abonnements compris).
Prix du bien : 416 500 €. dont Honoraires TTC : 2.84 % soit 11 500 €.
Honoraires à la charge de l'acquéreur. Prix du bien hors honoraires : 405 000 €.

Pour toutes informations complémentaires et visites, contactez directement Jérôme PHILAMENT au [Coordonnées masquées].
ENVIE D'IMMO Votre Agence Immobilière 31 rue de la Reine des Près (79 460) MAGNÉ - ICI on réalise les compromis de ventes.
Voir plus

Référence: 898
Honoraires d'agence de 2.84% à la charge de l'acquéreur
Barème des honoraires
DPE
A
B
C
D
E
F
G
GES
A
B
C
D
E
F
G

Prêt immobilier

Vous souhaitez connaître votre capacité d’emprunt et trouver le meilleur crédit immobilier ?
Réaliser une simulation gratuite

Maison à NIORT
Maison à NIORT
Maison à NIORT
Maison à NIORT
Maison à NIORT
Maison à NIORT
Maison à NIORT
Maison à NIORT
Maison à NIORT
Maison à NIORT
Maison à NIORT
Maison à NIORT
Maison à NIORT
Maison à NIORT
Maison à NIORT
Maison à NIORT
Maison à NIORT
Ce site est protégé par reCAPTCHA la Politique de confidentialité et les Conditions d’utilisation de Google s’appliquent.
Obtenir un prêt immobilier au meilleur taux ?

En poursuivant votre navigation sans modifier vos paramètres, vous acceptez l'utilisation de cookies susceptibles de réaliser des statistiques de visite. Cliquez ici pour plus d'informations