Bénéficiez des services de nos partenaires locaux soigneusement sélectionnés
pour vous accompagner dans votre parcours d'achat immobilier

A vendre - spacieux t2 centre villle

— Graulhet 81300 —
45 000 €
53 m²
2 pièces

Nos partenaires locaux
Dernier lot à vendre suite à un désistement.
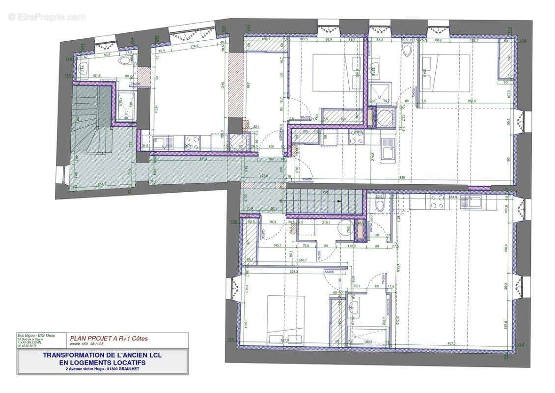
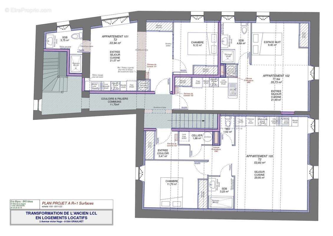
Une belle opportunité à saisir ! Ce T2 de 53.60 m², situé au 1er étage d'un immeuble en plein cœur de Graulhet, offre un espace généreux et modulable, parfait pour un investissement ou un projet d'aménagement personnalisé.

Il vous restera le second œuvre seulement à faire ou à faire-faire :
- Un emplacement stratégique : Plein centre-ville, avec un accès immédiat aux commerces, écoles et transports.
- Une grande superficie : 53.60 m² à exploiter selon vos envies, idéal pour créer un appartement confortable et fonctionnel.
- Les plus : Toiture remanier, réseau d'évacuation des eaux usées neuf avec assainissement, compteur d'eau neuf, compteur Linky neuf, commun réhabiliter entièrement peinture, parquet, boite aux lettre fibre, interphone.
- Un immeuble de caractère : Charmant bâtiment offrant un cadre agréable et authentique.
- Un potentiel intéressant : Idéal pour un premier achat, un investissement locatif ou un pied-à-terre en ville.
- Immeuble copro bénévole faible charge,
-Un prix attractif : Seulement 45 000 €, une occasion rare à ne pas manquer !

Une visite s'impose ! Contactez nous dès aujourd'hui pour plus d'informations et découvrir ce bien.
Voir plus

Référence: 6931a94414320
Bien en copropriété.
DPE
A
B
C
D
E
F
G
GES
A
B
C
D
E
F
G

Prêt immobilier

Vous souhaitez connaître votre capacité d’emprunt et trouver le meilleur crédit immobilier ?
Réaliser une simulation gratuite

Appartement à GRAULHET
Appartement à GRAULHET
Appartement à GRAULHET
Appartement à GRAULHET
Appartement à GRAULHET
Appartement à GRAULHET
Appartement à GRAULHET
Appartement à GRAULHET
Appartement à GRAULHET
Appartement à GRAULHET
Appartement à GRAULHET
Ce site est protégé par reCAPTCHA la Politique de confidentialité et les Conditions d’utilisation de Google s’appliquent.
Obtenir un prêt immobilier au meilleur taux ?

En poursuivant votre navigation sans modifier vos paramètres, vous acceptez l'utilisation de cookies susceptibles de réaliser des statistiques de visite. Cliquez ici pour plus d'informations