Bénéficiez des services de nos partenaires locaux soigneusement sélectionnés
pour vous accompagner dans votre parcours d'achat immobilier

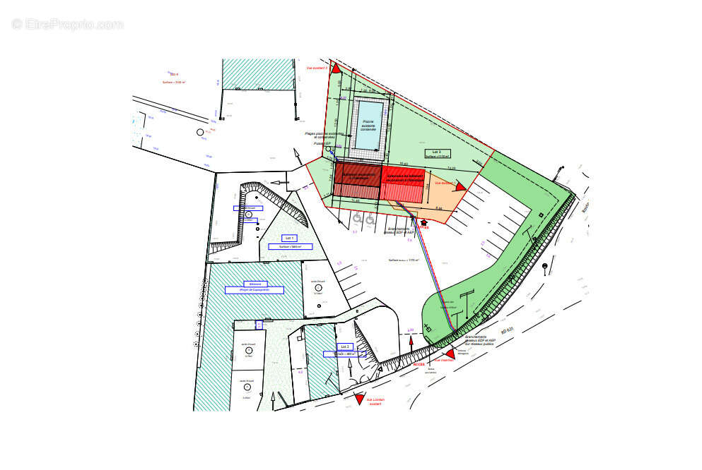
A vendre - terrain viabilisé avec permis de construire accepté

— Coufouleux 81800 —
79 000 €
1 110 m²

Nos partenaires locaux
Au cœur de la commune de COUFOULEUX (Saint Waast), proche des accès d'autoroute et à 2 km du centre-ville de Saint-Sulpice, nous vous proposons ce terrain viabilisé et plat à bâtir d'une superficie d'environ 1110m².
La valeur réelle de ce terrain est de 47 000€ mais de nombreux éléments en place sur celui-ci comme :
- Clôture terrain (5 000 €)
- Raccordement Enedis (10 000 €)
- Raccordement Eau (10 000 €) - G1 & G2 + Permis accepté
- Micro station (8 000 €)
- Piscine évaluée par un maçon à 40 000 € (valeur foncière de 20 000 €)

Font que le prix global de vente revient à un total de 79 000€. Certains éléments sont déjà réalisés : - Viabilisation
- Permis de construire accepté et disponible pour une maison
- Assainissement collectif neuf et conforme
- Raccordement à l'eau
- Raccordement électrique en place
- Clôture installée

Ce terrain est libre de tout constructeur. Sachez que nous sommes en capacité de vous accompagner sur ce projet et de vous présenter des plans et devis confirmés pour cette réalisation.

Proposé à 79 000 €, ce terrain représente une opportunité unique de personnaliser votre espace de vie dans un cadre agréable.

N'hésitez pas à me contacter pour en savoir plus.
Voir plus

Référence: 6931aa5b40eb2

Prêt immobilier

Vous souhaitez connaître votre capacité d’emprunt et trouver le meilleur crédit immobilier ?
Réaliser une simulation gratuite

Terrain à COUFOULEUX
Terrain à COUFOULEUX
Terrain à COUFOULEUX
Terrain à COUFOULEUX
Ce site est protégé par reCAPTCHA la Politique de confidentialité et les Conditions d’utilisation de Google s’appliquent.
Obtenir un prêt immobilier au meilleur taux ?

En poursuivant votre navigation sans modifier vos paramètres, vous acceptez l'utilisation de cookies susceptibles de réaliser des statistiques de visite. Cliquez ici pour plus d'informations