Bénéficiez des services de nos partenaires locaux soigneusement sélectionnés
pour vous accompagner dans votre parcours d'achat immobilier

Vente appartement 2 pièces de 132m² - 75010 paris

— Paris-10e 75010 —
1 320 000 €
132 m²
2 pièces

Nos partenaires locaux
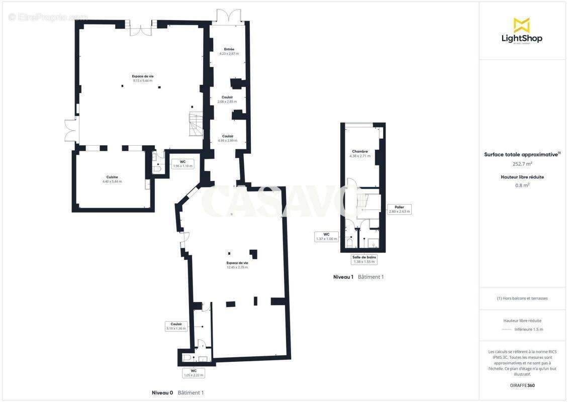
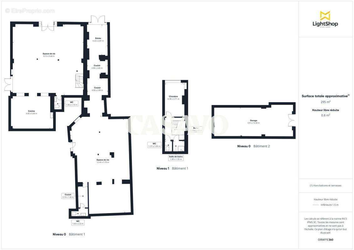
Casavo vous propose à la vente ces locaux de 132.0 m² localisé Cité Hittorf à Paris 10ème.

Ce bien idéalement situé au coeur du village saint martin, vous offrira une proximité immédiate avec la mairie du 10eme, les commerces et commodités ainsi que les transports à proximité immédiate station Jaques Bonsergent, République et Strasbourg-Saint-Denis.

Profitant d'un double accès, l'un coté rue et l'autre coté cour.
Il se compose en rez-de-chaussée d'un premier local de 90 m2 comprenant une entrée donnant accès à une vaste pièce à aménager comme bon vous semble en partie sous verrière et profitant d'un point d'eau et de WC séparé.
Et un second local de 42m2 en fond de cour idéal pour de la réserve, un studio photo/vidéo

Possibilité d'acquérir en sus du prix un local mitoyen et pouvant communiquer de 160m2

Charges de copropriété : 560€ par mois.

Ce bien est commercialisé par Casavo.

Intéressé par ce bien ? Plus d'informations sur le site de Casavo.
Voir plus

Référence: 50551
Honoraires à la charge du vendeur.

Prêt immobilier

Vous souhaitez connaître votre capacité d’emprunt et trouver le meilleur crédit immobilier ?
Réaliser une simulation gratuite

Appartement à PARIS-10E
Appartement à PARIS-10E
Appartement à PARIS-10E
Appartement à PARIS-10E
Appartement à PARIS-10E
Appartement à PARIS-10E
Appartement à PARIS-10E
Appartement à PARIS-10E
Appartement à PARIS-10E
Appartement à PARIS-10E
Appartement à PARIS-10E
Appartement à PARIS-10E
Ce site est protégé par reCAPTCHA la Politique de confidentialité et les Conditions d’utilisation de Google s’appliquent.
Obtenir un prêt immobilier au meilleur taux ?

En poursuivant votre navigation sans modifier vos paramètres, vous acceptez l'utilisation de cookies susceptibles de réaliser des statistiques de visite. Cliquez ici pour plus d'informations