Pas de appartement à Saint-Aubin pour le moment. Découvrez dès maintenant les appartements dans le département Landes.
Bénéficiez des services de nos partenaires locaux soigneusement sélectionnés
pour vous accompagner dans votre parcours d'achat immobilier

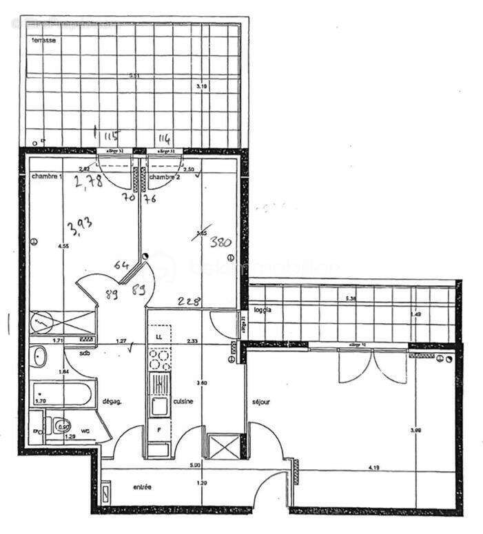
T3 lumineux et calme, plein sud sur cour/jardin intérieur 2 chambres, 1er étage + parking quartier bauer/michelet/puces

— Saint-Ouen 93400 —
449 000 €
66 m²
3 pièces
parkingbalcon/terrasseascenseur

Nos partenaires locaux
RUE DU DOCTEUR BAUER
QUARTIER MICHELET/BAUER/PUCES

Magnifique T3 lumineux situé au 1er étage (avec ascenseur) sur 6 d'une copropriété bien entretenue et sécurisée ; au calme, sur cour/jardins intérieurs
2 espaces distincts : Entrée et couloir avec rangements de 5 m2. Un salon/salle à manger de 21,5 m2 et une cuisine ouverte aménagée et équipée de 9 m2, avec accès au balcon de 8 m2 exposé Sud sur cour/jardins intérieurs
Partie nuit : un palier desservant : toilettes indépendantes, salle de bain avec baignoire, ainsi que deux chambres de 10 et 12 m2, avec accès à une terrasse de 17,3 m2 exposée Sud sur cour
Une place de parking, accessible par ascenseur, est également vendue avec le bien
DPE D, aucun travaux à prévoir, pas de procédure en cours en AG

Transports : 10 min à pied de la station (ligne 4) 'Porte de Clignancourt' et à 10 min à pied de la station (ligne 13 et 14) 'Mairie de Saint-Ouen'
Lignes de bus 166 et audonienne au pied de l'immeuble, ligne 255 à une minute à pied
Au pied de tous les commerces, à 5 minutes à pied du quartier des Puces

Pour plus de renseignements/photos ou pour organiser ensemble une visite, n'hésitez pas à me contacter (merci de préférer le téléphone)

Cette annonce référence 313669 vous est présentée par votre agent commercial BSK Immobilier MARINE ANTOINE (EI) immatriculé au RSAC de BOBIGNY (93000) sous le numéro 83157908100025.

Prix du bien : 449 000,00 €
Les honoraires d'agence sont à la charge du vendeur.

A propos de la copropriété :
Pas de procédure en cours.
Nombre de lots : 2
Charges prévisionnelles annuelles : 1 800,00 €

A propos des performances énergétiques :
Date de réalisation du diagnostic énergétique : 24/11/2025
Score DPE : 221 kWhEP/m²/an
Score GES : 7 kgepCO2/m²/an
Montant estimé des dépenses annuelles d'énergie pour un usage standard : entre 1150.00 € et 1600.00 € par an. Prix moyens des énergies indexés sur l'année 2023 (abonnements compris).

Les informations sur les risques auxquels ce bien est exposé sont disponibles sur le site Géorisques : www.georisques.gouv.fr
Voir plus

Référence: 313669
Bien en copropriété. Nombre de lots : 2. Charges de copropriété : 150 €.
Honoraires à la charge du vendeur.
DPE
A
B
C
D
E
F
G
GES
A
B
C
D
E
F
G

Prêt immobilier

Vous souhaitez connaître votre capacité d’emprunt et trouver le meilleur crédit immobilier ?
Réaliser une simulation gratuite

Appartement à SAINT-OUEN
Appartement à SAINT-OUEN
Appartement à SAINT-OUEN
Appartement à SAINT-OUEN
Appartement à SAINT-OUEN
Appartement à SAINT-OUEN
Appartement à SAINT-OUEN
Appartement à SAINT-OUEN
Appartement à SAINT-OUEN
Appartement à SAINT-OUEN
Appartement à SAINT-OUEN
Appartement à SAINT-OUEN
Appartement à SAINT-OUEN
Appartement à SAINT-OUEN
Appartement à SAINT-OUEN
Appartement à SAINT-OUEN
Appartement à SAINT-OUEN
Appartement à SAINT-OUEN
Appartement à SAINT-OUEN
Appartement à SAINT-OUEN
Appartement à SAINT-OUEN
Appartement à SAINT-OUEN
Appartement à SAINT-OUEN
Appartement à SAINT-OUEN
Appartement à SAINT-OUEN
Appartement à SAINT-OUEN
Appartement à SAINT-OUEN
Appartement à SAINT-OUEN
Appartement à SAINT-OUEN
Ce site est protégé par reCAPTCHA la Politique de confidentialité et les Conditions d’utilisation de Google s’appliquent.
Obtenir un prêt immobilier au meilleur taux ?

En poursuivant votre navigation sans modifier vos paramètres, vous acceptez l'utilisation de cookies susceptibles de réaliser des statistiques de visite. Cliquez ici pour plus d'informations