Bénéficiez des services de nos partenaires locaux soigneusement sélectionnés
pour vous accompagner dans votre parcours d'achat immobilier

Dpt savoie (73), à vendre à ruffieux locaux d'activités actuellement loués, entre annecy et aix-les-bains, proche du lac du bour

— Ruffieux 73310 —
890 000 €
879 m²
20 pièces
parking

Nos partenaires locaux
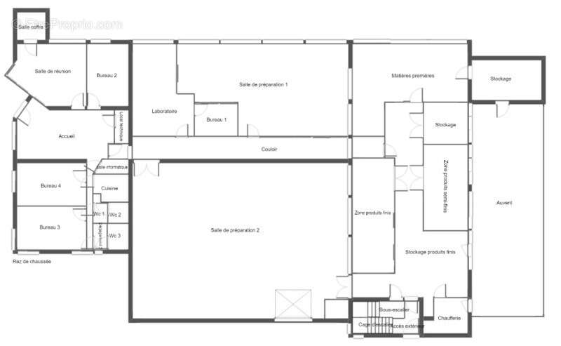
RARE A LA VENTE! Pour un investissement en CHAUTAGNE, proche du lac du Bourget, entre Annecy (env. 40 km) et Aix-les-Bains (env. 20 km).

Locaux d'activités en bon état général, rénovés et agrandis en 2007.

Actuellement loués 4318,43 € HT/HC mensuel (activité de R&D, laboratoire, fabrication cosmétique), d'une surface d'environ 879 m², ils sont composés entre autres :

- d'un hall d'entrée, de bureaux, d'une salle de réunion,
- de locaux de production, d'ateliers,
- de salles de laboratoires, d'une salle blanche avec sas d'entrée,
- de locaux de stockage,
- d'une salle d'expédition,
- d'un monte charge,
- de vestiaires,
- ...

Egalement un auvent de stockage d'env. 90 m², une cave de 45 m².

Le tout sur une surface cadastrée d'env. 2226 m² avec ses places de parking et son espace vert joliment arboré.

Taxe foncière à la charge du locataire.

N'hésitez pas à m'appeler pour discuter de votre projet..

Les honoraires sont à la charge du vendeur.
Les informations sur les risques auxquels ce bien est exposé sont disponibles sur le site Géorisques : www. georisques. gouv. fr.

Réseau Immobilier CAPIFRANCE - Votre agent commercial (RSAC N°851 001 537 - Greffe de CHAMBERY) Flora ULMSCHNEIDER Entrepreneur Individuel [Coordonnées masquées] - Réf.883903
Voir plus

Référence: 340938209032
Honoraires à la charge du vendeur.
DPE
A
B
C
D
E
F
G
GES
A
B
C
D
E
F
G

Prêt immobilier

Vous souhaitez connaître votre capacité d’emprunt et trouver le meilleur crédit immobilier ?
Réaliser une simulation gratuite

Commerce à RUFFIEUX
Commerce à RUFFIEUX
Commerce à RUFFIEUX
Commerce à RUFFIEUX
Commerce à RUFFIEUX
Commerce à RUFFIEUX
Commerce à RUFFIEUX
Commerce à RUFFIEUX
Commerce à RUFFIEUX
Commerce à RUFFIEUX
Commerce à RUFFIEUX
Ce site est protégé par reCAPTCHA la Politique de confidentialité et les Conditions d’utilisation de Google s’appliquent.
Obtenir un prêt immobilier au meilleur taux ?

En poursuivant votre navigation sans modifier vos paramètres, vous acceptez l'utilisation de cookies susceptibles de réaliser des statistiques de visite. Cliquez ici pour plus d'informations