3 pieces de charme en exclusivite - saint-fargeau

— Paris-20e 75020 —
445 000 €
51 m²
3 pièces

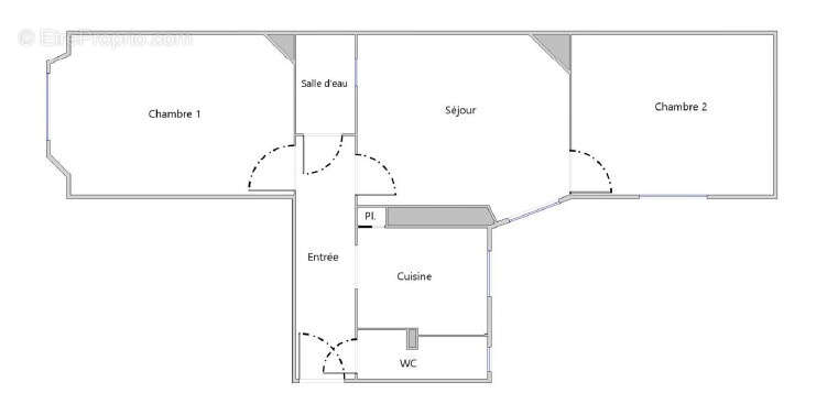
Situé au cœur d'une rue calme, devenue piétonne et arborée, cet appartement de 3 pièces, en EXCLUSIVITÉ avec l’agence AXIMMO, vous séduira par son charme. Au 4ème étage d’un immeuble ancien, sans ascenseur, cet appartement se compose de : Une entrée, un séjour ou chambre lumineux, avec une cheminée décorative, parfait pour des moments conviviaux, 2 chambres à coucher, dont une avec cheminée, une cuisine séparée qui peut être aménagée selon vos envies, une salle de bains fonctionnelle et un WC séparé. Parquet, moulures, cheminées. Surface au sol 51.05 m2 - Surface loi Carrez : 50.94 m2 Une cave complète ce bien. Cet appartement présente un fort potentiel et, après quelques travaux, pourra devenir un véritable bijou dans ce quartier recherché. Son emplacement idéal, à deux pas des commerces, transports et espaces verts, en fait un bien rare à ne pas manquer ! DPE possible en E (nous consulter) À visiter sans tarder ! Contactez AXIMMO PARIS 9
Voir plus

Bien en copropriété. Nombre de lots : 20. Charges de copropriété : 1620 €.
Honoraires à la charge du vendeur.
Barème des honoraires
DPE
A
B
C
D
E
F
G
GES
A
B
C
D
E
F
G

Prêt immobilier

Vous souhaitez connaître votre capacité d’emprunt et trouver le meilleur crédit immobilier ?
Réaliser une simulation gratuite

Appartement à PARIS-20E
Appartement à PARIS-20E
Appartement à PARIS-20E
Appartement à PARIS-20E
Appartement à PARIS-20E
Appartement à PARIS-20E
Appartement à PARIS-20E
Appartement à PARIS-20E
Appartement à PARIS-20E
Appartement à PARIS-20E
Appartement à PARIS-20E
Appartement à PARIS-20E
Ce site est protégé par reCAPTCHA la Politique de confidentialité et les Conditions d’utilisation de Google s’appliquent.
Obtenir un prêt immobilier au meilleur taux ?

En poursuivant votre navigation sans modifier vos paramètres, vous acceptez l'utilisation de cookies susceptibles de réaliser des statistiques de visite. Cliquez ici pour plus d'informations