Bénéficiez des services de nos partenaires locaux soigneusement sélectionnés
pour vous accompagner dans votre parcours d'achat immobilier

T3 lumineux en viager occupé vue paris opportunité rare à argenteuil

— Argenteuil 95100 —
43 500 €
64 m²
3 pièces

Nos partenaires locaux
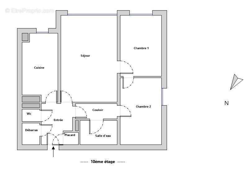
Rare à saisir : au 10? étage d’une résidence sécurisée avec 2 ascenseurs, découvrez cet agréable 3 pièces de 64 m2 en viager occupé, sans vis-à-vis et avec une vue dégagée sur Paris. Il se compose d’une entrée avec dressing, séjour lumineux, cuisine séparée, deux chambres, salle d’eau et WC indépendant. Cave incluse.
Situé à 7 minutes de la gare du Val d’Argenteuil (Paris Saint-Lazare en 15 min) et proche de toutes commodités. Résidence isolée par l’extérieur, chauffage urbain, DPE C, aucune anomalie électrique.
Un cabinet de kinésithérapie est également installé au rez-de-chaussée.
Conditions du viager occupé : Dame de 80 ans conservant le droit d’usage et d’habitation Bouquet : 43 500 € (honoraires inclus) Rente viagère : 404 €/mois Valeur libre : 150 000 € Valeur occupée : 86 850 €
Vous bénéficiez d’une décote immédiate de 42,10 %, correspondant à des loyers perçus d’avance, sans gestion ni fiscalité.
Une exclusivité Marie Ange Belghith EXPERTIMO, spécialiste du viager. Contactez-moi pour plus d’informations.
Cette annonce vous est proposée par LUC - SAS - NoRSAC: 512800053, Enregistré à Greffe du tribunal de commerce de Pontoise - Annonce rédigée et publiée par un Agent Mandataire -
Voir plus

Référence: 98385
Bien en copropriété. Nombre de lots : 61. Charges de copropriété : 2990 €.
Honoraires à la charge du vendeur.
Barème des honoraires
DPE
A
B
C
D
E
F
G
GES
A
B
C
D
E
F
G

Prêt immobilier

Vous souhaitez connaître votre capacité d’emprunt et trouver le meilleur crédit immobilier ?
Réaliser une simulation gratuite

Autre à ARGENTEUIL
Autre à ARGENTEUIL
Autre à ARGENTEUIL
Autre à ARGENTEUIL
Autre à ARGENTEUIL
Autre à ARGENTEUIL
Autre à ARGENTEUIL
Autre à ARGENTEUIL
Autre à ARGENTEUIL
Autre à ARGENTEUIL
Autre à ARGENTEUIL
Autre à ARGENTEUIL
Ce site est protégé par reCAPTCHA la Politique de confidentialité et les Conditions d’utilisation de Google s’appliquent.
Obtenir un prêt immobilier au meilleur taux ?

En poursuivant votre navigation sans modifier vos paramètres, vous acceptez l'utilisation de cookies susceptibles de réaliser des statistiques de visite. Cliquez ici pour plus d'informations