Bénéficiez des services de nos partenaires locaux soigneusement sélectionnés
pour vous accompagner dans votre parcours d'achat immobilier

Maison avec sous-sol, piscine et terrain arboré.

— Saint-Pierre-De-Chandieu 69780 —
520 000 €
120 m² / 1 463 m²
4 pièces
parkingbalcon/terrassejardinpiscine

Nos partenaires locaux
Votre Agence BONNE VISITE vous présente cette nouvelle EXCLUSITÉ située sur la commune de SAINT-PIERRE-DE-CHANDIEU.
Dès votre entrée par le portail de cette propriété, vous serez charmé par cette très agréable maison individuelle d’environ 130 m2 habitables édifiée sur une très jolie parcelle bien arborée de 1463 m2 avec piscine enterrée, pergola et 2 terrasses.
Situation : à proximité du Château de Rajat et à environ 1 km du centre du village.
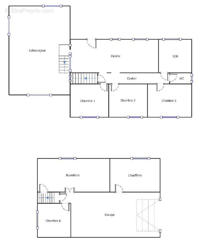
L’habitation comprend :
- Entrée donnant sur une cuisine équipée et belle pièce vivre de 45 m2 en contrebas
- Dégagement
- 4 chambres (dont une aménagée dans le sous-sol)
- Salle de bains-WC
- 2 belles terrasses (30 m2 et 25 m2)
La maison dispose d’un sous-sol qui est un vrai atout avec garage de 30 m2, buanderie, chaufferie et WC.
Caractéristiques :
- Construction de 1972 avec extension en 1979
- Fenêtres en PVC et volets battants en aluminium
- Chauffage au gaz de ville, poêle à granulés et cheminée foyer fermé
- Adoucisseur d’eau-Piscine au chlore-Puits avec arrosage automatique
- Système d’alarme-Portail et porte de garage motorisés
Avis du professionnel :
- Parcelle très agréable et joliment arborée qui vous propose 2 terrasses, une pergola, une belle zone de stationnement pur accueillir plusieurs voitures, une piscine et une belle fontaine.
- L’habitation en demi-niveau vous propose une pièce à vivre est très agréable, 3 chambres avec accès sur l’extérieur.
Vous disposerez d’une pièce supplémentaire d’environ 9 m2 aménagée dans le sous-sol qui peut servir de bureau ou de 4ème chambre.
À visiter sans tarder !
Contactez-nous pour plus de renseignements.
Voir plus

Référence: 519
Honoraires à la charge du vendeur.
DPE
A
B
C
D
E
F
G
GES
A
B
C
D
E
F
G

Prêt immobilier

Vous souhaitez connaître votre capacité d’emprunt et trouver le meilleur crédit immobilier ?
Réaliser une simulation gratuite

Maison à SAINT-PIERRE-DE-CHANDIEU
Maison à SAINT-PIERRE-DE-CHANDIEU
Maison à SAINT-PIERRE-DE-CHANDIEU
Maison à SAINT-PIERRE-DE-CHANDIEU
Maison à SAINT-PIERRE-DE-CHANDIEU
Maison à SAINT-PIERRE-DE-CHANDIEU
Maison à SAINT-PIERRE-DE-CHANDIEU
Maison à SAINT-PIERRE-DE-CHANDIEU
Maison à SAINT-PIERRE-DE-CHANDIEU
Maison à SAINT-PIERRE-DE-CHANDIEU
Ce site est protégé par reCAPTCHA la Politique de confidentialité et les Conditions d’utilisation de Google s’appliquent.
Obtenir un prêt immobilier au meilleur taux ?

En poursuivant votre navigation sans modifier vos paramètres, vous acceptez l'utilisation de cookies susceptibles de réaliser des statistiques de visite. Cliquez ici pour plus d'informations