Bénéficiez des services de nos partenaires locaux soigneusement sélectionnés
pour vous accompagner dans votre parcours d'achat immobilier

Appartement 75m² à marseille-9e

— Marseille-9e 13009 —
250 000 €
76 m²
4 pièces
parkingbalcon/terrasseascenseurpiscine

Nos partenaires locaux
« Au top de la colline »

9ÈME – LE REDON

Type 4 de 75m² avec terrasse de 9m² avec vue verdoyante
+ Cave de 9m² et Place de parking privative extérieure
Copropriété au coeur de la colline, au calme absolu et sécurisée avec piscine

Idéalement situé à deux pas des calanques et du complexe sportif de Luminy
et à proximité de nombreux commerces et commodités du quotidien,
établissements scolaires, facultés et école de commerce ainsi que la ligne de bus
la plus régulière (B1) et la ligne 24.

Venez découvrir cette copropriété au coeur de la colline et au calme absolu,
fermée et sécurisée par un portail automatique,
jouissant d'une grande piscine refaite en 2023,
des écoles maternelle et primaire et d'un centre social proposant
de nombreuses activités et entièrement refait cette année.

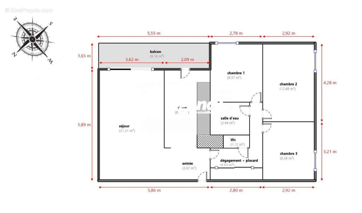
Au sein de celle-ci, The Agency vous propose en exclusivité un type 3
de 75,52m² Loi Carrez au 3ème étage sur 5 avec ascenseur
mais entrée par le rez-de-chaussée.

Il se compose de la manière suivante :

Côté jour :
Un hall d'entrée, un salon / séjour et une cuisine indépendante, meublée et équipée,
le tout exposé Sud-Est et s'ouvrant sur une terrasse de 9.16m²
avec vue dégagée et arborée.

Côté nuit :
Un dégagement avec grand placard de rangement, 3 chambres,
une salle d'eau et un WC indépendant.

Enfin, pour les adeptes du stockage et du rangement, une grande cave de 9.09m²
et une place de parking privative extérieure viennent compléter ce bien.

Ce bien séduira les amateurs de calme et de nature,
tout en restant proche de tous les avantages de la cité urbaine.

Idéal pour une famille.

Charges : 206.00€ /mois
(comprend l'entretien de la copropriété et espaces verts, ascenseur, piscine, électricité
des communs, eau froide, concierge, assurance copropriété et honoraires syndic)
Taxe foncière : 950.00€ /an

'The Agency, la révolution immobilière'


Honoraires inclus de 5.49% TTC à la charge de l'acquéreur. Prix hors honoraires 237 000 €. Dans une copropriété de 1000 lots. Quote-part moyenne du budget prévisionnel 2 477 €/an. Aucune procédure n'est en cours. Classe énergie C, Classe climat C Montant estimé des dépenses annuelles d'énergie pour un usage standard : entre 760.00 € et 1060.00 € sur les années 2021, 2022 et 2023 (abonnements compris). Les informations sur les risques auxquels ce bien est exposé sont disponibles sur le site Géorisques : georisques.gouv.fr.

Votre conseiller The Agency : Marion CRISTIANO
Agent commercial (Entreprise individuelle)
Voir plus

Référence: VA3417-THEAGENCY
Bien en copropriété. Nombre de lots : 1000. Charges de copropriété : 2477 €.
Honoraires d'agence de 5.49% à la charge de l'acquéreur
Barème des honoraires
DPE
A
B
C
D
E
F
G
GES
A
B
C
D
E
F
G

Prêt immobilier

Vous souhaitez connaître votre capacité d’emprunt et trouver le meilleur crédit immobilier ?
Réaliser une simulation gratuite

Appartement à MARSEILLE-9E
Appartement à MARSEILLE-9E
Appartement à MARSEILLE-9E
Appartement à MARSEILLE-9E
Appartement à MARSEILLE-9E
Appartement à MARSEILLE-9E
Appartement à MARSEILLE-9E
Appartement à MARSEILLE-9E
Appartement à MARSEILLE-9E
Ce site est protégé par reCAPTCHA la Politique de confidentialité et les Conditions d’utilisation de Google s’appliquent.
Obtenir un prêt immobilier au meilleur taux ?

En poursuivant votre navigation sans modifier vos paramètres, vous acceptez l'utilisation de cookies susceptibles de réaliser des statistiques de visite. Cliquez ici pour plus d'informations