Bénéficiez des services de nos partenaires locaux soigneusement sélectionnés
pour vous accompagner dans votre parcours d'achat immobilier

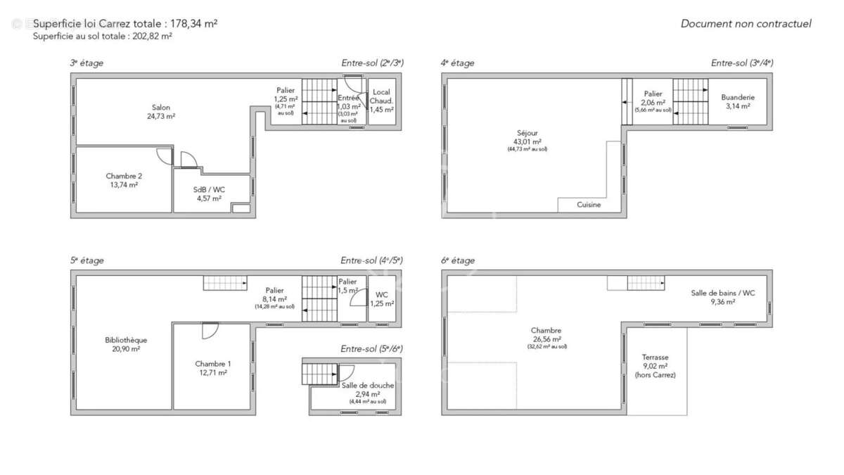
Paris 6e - marché saint-germain - appartement à vendre - 7 pièces - 178,34m² carrez - 202,82m² au sol - 3 chambres - derniers ét

— Paris-6e 75006 —
2 900 000 €
178 m²
7 pièces
parkingbalcon/terrasseascenseur

Nos partenaires locaux
À proximité du marché Saint-Germain, aux derniers étages d'un bel immeuble ancien, ce bien d'exception bénéficie d'une agréable terrasse de 9,02m² et de vues imprenables sur l'église Saint-Sulpice et les toits de Paris.
Cet appartement de 178,34m² Carrez et 202,82m² au sol se déploie sur plusieurs niveaux, dont deux accessibles par un ascenseur privatif.
L'étage de réception comprend un vaste séjour lumineux, une cuisine ouverte moderne et conviviale ainsi que des toilettes invités.
À l'étage supérieur, une chambre, une spacieuse bibliothèque pouvant être transformée en chambre et une salle de douche.
Au dernier étage, une suite parentale de 26,56m², dotée d'un grand dressing, d’une salle de bains avec toilettes et ouverte sur la terrasse ensoleillée avec de magnifiques vues dégagées.
L'étage inférieur comporte un charmant séjour, une chambre confortable avec des rangements et une salle de bains avec des toilettes.
Une cave de 30m² complète cette offre.
Possibilité d'acquérir un box de parking sous le marché Saint-Germain à 75 000 € en supplément.
Voir plus

Référence: 1692CHMDEP
Barème des honoraires
DPE
A
B
C
D
E
F
G
GES
A
B
C
D
E
F
G

Prêt immobilier

Vous souhaitez connaître votre capacité d’emprunt et trouver le meilleur crédit immobilier ?
Réaliser une simulation gratuite

Appartement à PARIS-6E
Appartement à PARIS-6E
Appartement à PARIS-6E
Appartement à PARIS-6E
Appartement à PARIS-6E
Appartement à PARIS-6E
Appartement à PARIS-6E
Appartement à PARIS-6E
Appartement à PARIS-6E
Appartement à PARIS-6E
Appartement à PARIS-6E
Appartement à PARIS-6E
Appartement à PARIS-6E
Appartement à PARIS-6E
Appartement à PARIS-6E
Appartement à PARIS-6E
Appartement à PARIS-6E
Appartement à PARIS-6E
Ce site est protégé par reCAPTCHA la Politique de confidentialité et les Conditions d’utilisation de Google s’appliquent.
Obtenir un prêt immobilier au meilleur taux ?

En poursuivant votre navigation sans modifier vos paramètres, vous acceptez l'utilisation de cookies susceptibles de réaliser des statistiques de visite. Cliquez ici pour plus d'informations