Pas de commerce à Montiers-Sur-Saulx pour le moment. Découvrez dès maintenant les commerces dans le département Meuse.

Appartement 49m² à paris-20e

— Paris-20e 75020 —
320 000 €
49 m²
2 pièces
balcon/terrasseascenseur

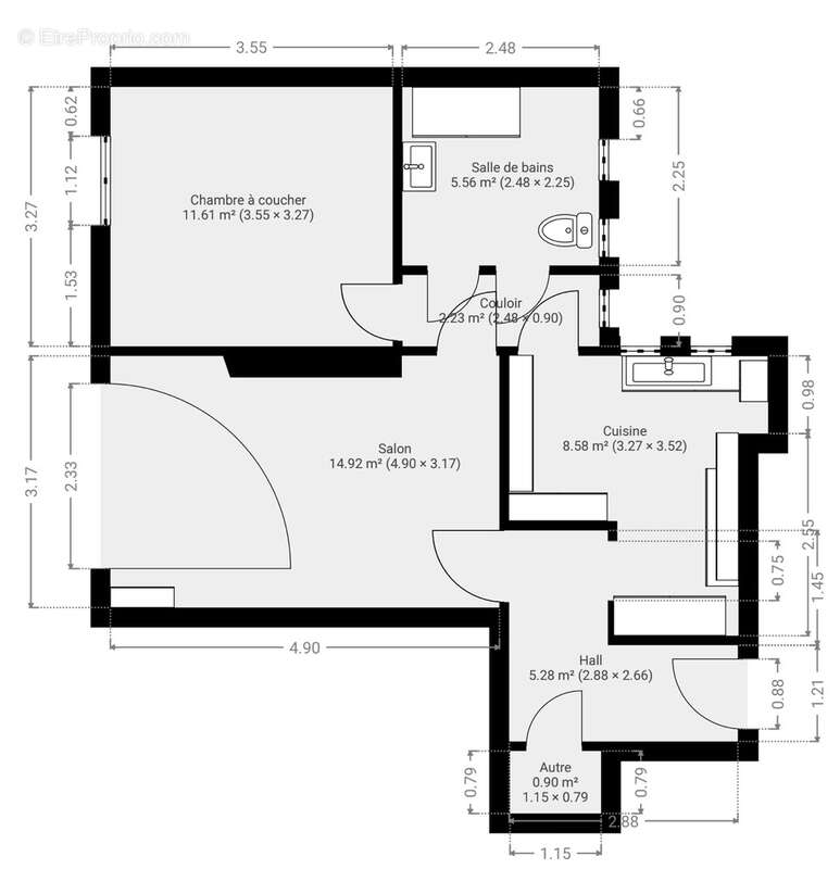
Appartement de 2 pièces de 49 m² situé rue Pierre Foncin 75020 PARIS, à proximité du métro SAINT FARGEAU, dans une résidence sécurisée avec gardien, bénéficiant de son parc arboré.
Situé au 8è étage d'un immeuble récent en cours de rénovation (dont rénovation énergétique).
Cet appartement possède un très bon plan composé d'une entrée, d'un séjour très lumineux exposé Ouest donnant sur un balcon, d'une cuisine, d'une chambre et d'une salle d'eau avec WC.
Une cave complète ce bien.

Les informations sur les risques auxquels ce bien est exposé sont disponibles sur le site Géorisques : www.georisques.gouv.fr
Voir plus

Référence: QSI387L
Honoraires à la charge du vendeur.
Barème des honoraires
DPE
A
B
C
D
E
F
G
GES
A
B
C
D
E
F
G

Prêt immobilier

Vous souhaitez connaître votre capacité d’emprunt et trouver le meilleur crédit immobilier ?
Réaliser une simulation gratuite

Appartement à PARIS-20E
Appartement à PARIS-20E
Appartement à PARIS-20E
Appartement à PARIS-20E
Appartement à PARIS-20E
Appartement à PARIS-20E
Ce site est protégé par reCAPTCHA la Politique de confidentialité et les Conditions d’utilisation de Google s’appliquent.
Obtenir un prêt immobilier au meilleur taux ?

En poursuivant votre navigation sans modifier vos paramètres, vous acceptez l'utilisation de cookies susceptibles de réaliser des statistiques de visite. Cliquez ici pour plus d'informations