Bénéficiez des services de nos partenaires locaux soigneusement sélectionnés
pour vous accompagner dans votre parcours d'achat immobilier

Voir tous les partenaires locaux

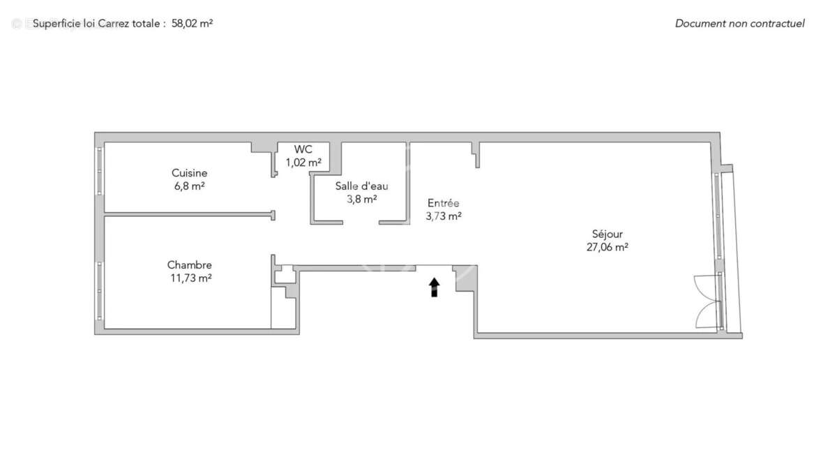
Paris 16e - boileau - appartement à vendre - 2 pièces - 58,02m² carrez - 1 chambre.

— Paris-16e 75016 —
600 000 €
58 m²
2 pièces
ascenseur

Nos partenaires locaux
Au quatrième étage par ascenseur d’un immeuble sécurisé et parfaitement entretenu, appartement de 58,02m² loi Carrez.

Son plan comporte une entrée avec dressing, un spacieux séjour lumineux exposé ouest, cuisine indépendante, une chambre au calme, une salle de douche et des toilettes invités.
De nombreux rangements sur mesure optimisent l’ensemble.

Une cave complète ce bien.

À proximité immédiate des commerces et des transports.
Voir plus

Référence: 5765JASJOU
Barème des honoraires
DPE
A
B
C
D
E
F
G
GES
A
B
C
D
E
F
G

Prêt immobilier

Vous souhaitez connaître votre capacité d’emprunt et trouver le meilleur crédit immobilier ?
Réaliser une simulation gratuite

Appartement à PARIS-16E
Appartement à PARIS-16E
Appartement à PARIS-16E
Appartement à PARIS-16E
Appartement à PARIS-16E
Appartement à PARIS-16E
Appartement à PARIS-16E
Appartement à PARIS-16E
Appartement à PARIS-16E
Appartement à PARIS-16E
Appartement à PARIS-16E
Appartement à PARIS-16E
Appartement à PARIS-16E
Appartement à PARIS-16E
Appartement à PARIS-16E
Appartement à PARIS-16E
Appartement à PARIS-16E
Appartement à PARIS-16E
Appartement à PARIS-16E
Appartement à PARIS-16E
Appartement à PARIS-16E
Appartement à PARIS-16E
Appartement à PARIS-16E
Appartement à PARIS-16E
Ce site est protégé par reCAPTCHA la Politique de confidentialité et les Conditions d’utilisation de Google s’appliquent.
Obtenir un prêt immobilier au meilleur taux ?

En poursuivant votre navigation sans modifier vos paramètres, vous acceptez l'utilisation de cookies susceptibles de réaliser des statistiques de visite. Cliquez ici pour plus d'informations