Bénéficiez des services de nos partenaires locaux soigneusement sélectionnés
pour vous accompagner dans votre parcours d'achat immobilier

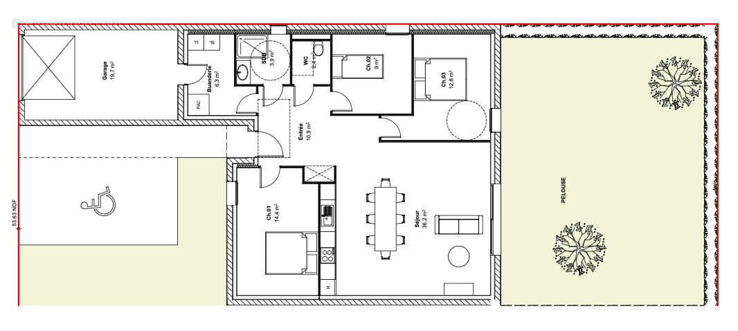
LAIZE-CLINCHAMPS Maison 4 pièces 95.60m2 de plain-pied

— Laize-La-Ville 14320 —
279 000 €
95 m²
4 pièces

Nos partenaires locaux
Laforêt Villers-sur-Mer vous propose au sein d'un programme neuf sur la commune de LAIZE-CLINCHAMPS à 8mn du périphérique de Caen. Une maison T4 de plain-pied, basse consommation avec jardin comprenant une entrée, avec placard, un séjour cuisine ouvrant sur le jardin, 3 chambres, une salle d'eau, WC séparé et une buanderie. Un garage de 19.70m² complète ce bien. Très bon niveau d'équipement, finitions peintures et sols en option. Lot présenté n° 4.7 Lot 4.1 : T3 - 66.30m² - Garage 19.70m² - jardin privatif : 232000 euros TTC Lot 4.3 : T3 - 66.00m² - Garage 19.50m² - jardin privatif : 229000 euros TTC D'autres lots sont disponibles à la vente, n'hésitez pas à nous contacter pour plus d'informations. Délégation de mandat: Informations sur les honoraires disponibles en agence.
Voir plus

Référence: 909
Honoraires à la charge du vendeur.
Barème des honoraires
Maison à LAIZE-LA-VILLE
Maison à LAIZE-LA-VILLE
Maison à LAIZE-LA-VILLE
Géorisques

Les informations sur les risques auxquels ce bien est exposé sont disponibles sur le site Géorisques : www.georisques.gouv.fr

Ce site est protégé par hCaptcha Politique de confidentialité et Conditions d’utilisation s’appliquent.

En poursuivant votre navigation sans modifier vos paramètres, vous acceptez l'utilisation de cookies susceptibles de réaliser des statistiques de visite. Cliquez ici pour plus d'informations