Bénéficiez des services de nos partenaires locaux soigneusement sélectionnés
pour vous accompagner dans votre parcours d'achat immobilier

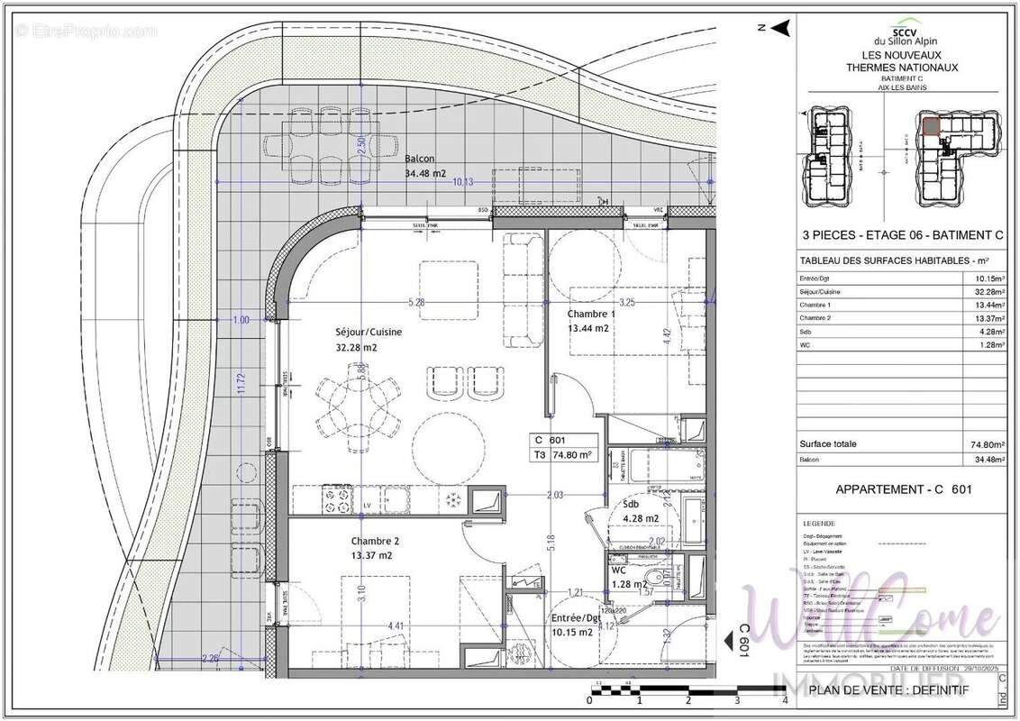
Appartement t3 de 75m² + box 'les nouveaux thermes'

— Aix-Les-Bains 73100 —
528 000 €
75 m²
3 pièces
parkingbalcon/terrasseascenseur

Nos partenaires locaux
À Aix-les-Bains, dans la prestigieuse résidence « Les Nouveaux Thermes » - Découvrez cet appartement 3 pièces de 74,80m² située au 6ème étage côté Nord-Est du bâtiment SUD. Cet appartement haut de gamme comprend : entrée/dégagement, séjour cuisine de 32,28m² et prolongée par un balcon végétalisé de 34,38m² côté Nord-Est. Lespace nuit comprend 2 chambres (13,37m² et 13,44m²), une salle de bains, un wc. Box en sous-sol sécurisé inclus. La résidence se distingue par ses prestations premium et son engagement environnemental : façades végétalisées sur 3,5 km, plus de 15 000 plantes, toitures vertes, récupération des eaux pluviales et planchers chauffants/rafraîchissants par géothermie. Contactez votre agence WellCome Immobilier pour réserver cet appartement dexception parmi les lots disponibles ! Dautres appartements neufs du T1 au T6 sont également proposés. Frais de notaire réduits Programme certifié RE2020 seuil 2022 & NF Habitat HQE Livraison prévue 1er trimestre 2029 Surface CARREZ : 74.8 m²
Voir plus

Référence: 73028799
Barème des honoraires
DPE
A
B
C
D
E
F
G
GES
A
B
C
D
E
F
G

Prêt immobilier

Vous souhaitez connaître votre capacité d’emprunt et trouver le meilleur crédit immobilier ?
Réaliser une simulation gratuite

Appartement à AIX-LES-BAINS
Appartement à AIX-LES-BAINS
Appartement à AIX-LES-BAINS
Appartement à AIX-LES-BAINS
Appartement à AIX-LES-BAINS
Appartement à AIX-LES-BAINS
Appartement à AIX-LES-BAINS
Appartement à AIX-LES-BAINS
Appartement à AIX-LES-BAINS
Ce site est protégé par reCAPTCHA la Politique de confidentialité et les Conditions d’utilisation de Google s’appliquent.
Obtenir un prêt immobilier au meilleur taux ?

En poursuivant votre navigation sans modifier vos paramètres, vous acceptez l'utilisation de cookies susceptibles de réaliser des statistiques de visite. Cliquez ici pour plus d'informations