Bénéficiez des services de nos partenaires locaux soigneusement sélectionnés
pour vous accompagner dans votre parcours d'achat immobilier

Appartement

— Courbevoie 92400 —
350 000 €
53 m²
2 pièces

Nos partenaires locaux
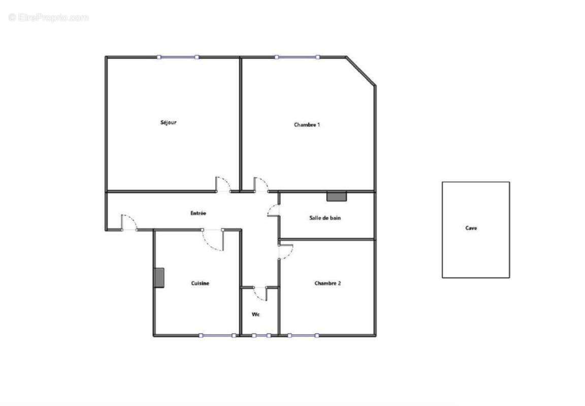
COURBEVOIE CENTRE GARE - 3 PIECES - CHARME - DPE D - CAVE

Margaux Gangloff, consultante indépendante EffiCity vous propose en exclusivité, cet appartement de 52,35 m2 dans une petite copropriété de 1900 bien entretenue et à seulement 3 minutes de la gare de Courbevoie. Rue calme résidentielle mais à proximité immédiate de tous les commerces.

Situé au 1er étage, seulement 2 lots sur le palier, l'appartement se compose ainsi :

- entrée et dégagement
- cuisine à rénover
- joli salon avec parquet et moulures
- 2 chambres
- salle de bains
- WC séparés
Une cave complète ce bien. Réaménagement des espaces possible, travaux à prévoir.

Les + : DPE en D, local vélo, cave, au calme, gare de Courbevoie à 3 mn à pied
Charges : 250€ / mois dont chauffage et eau froide.
Les informations sur les risques auxquels ce bien est exposé sont disponibles sur le site Georisque : georisques. gouv. fr
Margaux Gangloff - EI - est Agent Commercial mandataire en immobilier, immatriculé au Registre Spécial des Agents Commerciaux du Tribunal de Commerce de Nanterre sous le n°919426619.
Siège social du mandant : effiCity, 48 avenue de Villiers - 75017 PARIS - Société par Actions Simplifiée, société au capital de 132 373,05 euros, immatriculée au RCS Paris 497 617 746 et titulaire de la Carte professionnelle CPI 75[Coordonnées masquées]02 025 - CCI Paris IDF - Caisse de Garantie : GALIAN Assurances 89 rue de la Boétie 75008 Paris
Voir plus

Référence: 200400
Bien en copropriété. Nombre de lots : 13. Charges de copropriété : 250 €.
Honoraires à la charge du vendeur.
Barème des honoraires
DPE
A
B
C
D
E
F
G
GES
A
B
C
D
E
F
G

Prêt immobilier

Vous souhaitez connaître votre capacité d’emprunt et trouver le meilleur crédit immobilier ?
Réaliser une simulation gratuite

Appartement à COURBEVOIE
Appartement à COURBEVOIE
Appartement à COURBEVOIE
Appartement à COURBEVOIE
Appartement à COURBEVOIE
Appartement à COURBEVOIE
Appartement à COURBEVOIE
Appartement à COURBEVOIE
Appartement à COURBEVOIE
Ce site est protégé par reCAPTCHA la Politique de confidentialité et les Conditions d’utilisation de Google s’appliquent.
Obtenir un prêt immobilier au meilleur taux ?

En poursuivant votre navigation sans modifier vos paramètres, vous acceptez l'utilisation de cookies susceptibles de réaliser des statistiques de visite. Cliquez ici pour plus d'informations