Lyon 5 point du jour appartement type 2/3 ascenseur vue degagee parking privatif

— Lyon-5e 69005 —
175 000 €
56 m²
3 pièces
parking

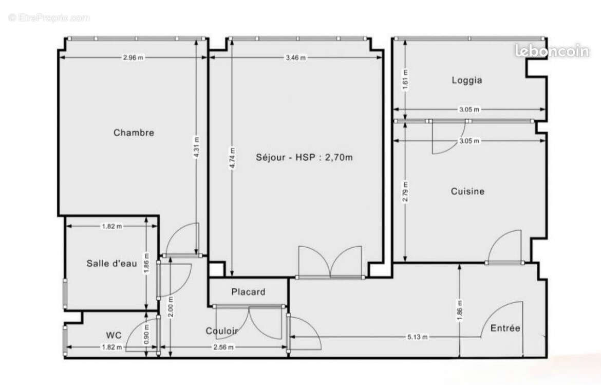
Situé dans le quartier recherché du Point du Jour, à proximité immédiate de Trion, cet appartement de type 2/3 de 56 m2 habitables (52 m2 Carrez) se trouve au 2ème étage sur 6 d’une résidence bien entretenue avec ascenseur.
Il se compose actuellement d’une entrée accueillante, d’une cuisine indépendante ouvrant sur une loggia de 4 m2 orientée Nord-Est et offrant une vue dégagée sans vis-à-vis. Le séjour, actuellement recouvert de moquette, dissimule un beau parquet d’origine. Un espace nuit comprend la chambre de 10,5m2 en parquet, un dégagement avec placard intégré, une salle d’eau avec douche à l’italienne et fenêtre ainsi qu’un WC séparé avec fenêtre.
Un réagencement est possible : vous pouvez créer un appartement de type 3 avec un séjour/cuisine ouverte et deux chambres (voir le plan modifié sur la dernière photo).
En sous-sol, une cave saine offre un espace de rangement supplémentaire. Une place de parking privative extérieure est incluse dans le prix.
Les charges de copropriété incluent : chauffage, eau chaude et froide, entretien des espaces verts, gardien, ascenseur et syndic.
Le DPE est en classe E mais la rénovation énergétique de l'immeuble sera réalisée en 2026, intégralement à la charge du vendeur : isolation de la façade par l'extérieur, réfection étanchéité de la façade, installation d'une VMC, panneaux photovoltaïques, réfection chauffage.
Idéal primo-accédants, investisseurs, étudiants
Vous apprécierez sa double exposition, la luminosité, l’absence de vis-à-vis et la vue sur le Mont Verdun. Les bus C20, C20E, 46 et 49 sont au pied de l’immeuble et la gare Perrache est accessible en 10 minutes.
* VISITE VIRTUELLE DISPONIBLE *
Son prix est de 175.000€
Pour visiter et vous accompagner dans votre projet, contactez Christophe AVON, directeur d'agence au [Coordonnées masquées]. Agence Homicca www.homicca.fr
Voir plus

Bien en copropriété. Nombre de lots : 45. Charges de copropriété : 2280 €.
Honoraires à la charge du vendeur.
Barème des honoraires
DPE
A
B
C
D
E
F
G
GES
A
B
C
D
E
F
G

Prêt immobilier

Vous souhaitez connaître votre capacité d’emprunt et trouver le meilleur crédit immobilier ?
Réaliser une simulation gratuite

Appartement à LYON-5E
Appartement à LYON-5E
Appartement à LYON-5E
Appartement à LYON-5E
Appartement à LYON-5E
Appartement à LYON-5E
Appartement à LYON-5E
Appartement à LYON-5E
Ce site est protégé par reCAPTCHA la Politique de confidentialité et les Conditions d’utilisation de Google s’appliquent.
Obtenir un prêt immobilier au meilleur taux ?

En poursuivant votre navigation sans modifier vos paramètres, vous acceptez l'utilisation de cookies susceptibles de réaliser des statistiques de visite. Cliquez ici pour plus d'informations