Bureaux sur cour professions liberales rue marbeau

— Paris-16e 75116 —
1 400 000 €
118 m²
5 pièces

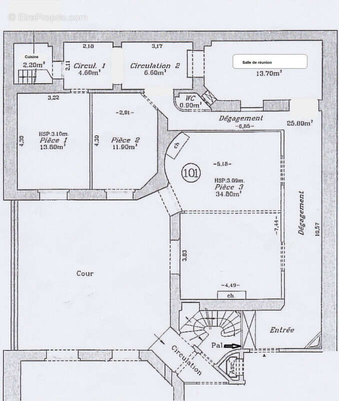
PORTE DAUPHINE/PORTE MAILLOT. RUE MARBEAU. Dans un immeuble haussmannien bien entretenu avec gardien, un espace de bureaux pour professions libérales de 117,70 m2 carrez en rez-de-cour offrant un accueil/salle d'attente, 4 bureaux, une salle de réunion, une cuisine avec une trémie accédant directement à la cave, sanitaires. Parquet en point de Hongrie, cheminée, hauteur sous plafond de 3,10 m. Métro Porte Dauphine (L2), Porte Maillot (L1), RER C avenue Foch. Copropriété de 24 lots principaux. Charges annuelles de 4.488 euros. Prix du bien 1.400.000 euros + 3,6 % d'honoraires agence à la charge de l'acquéreur, soit 1.450.000 euros. Contact direct [Coordonnées masquées] Muriel Garnreiter (E.I) [Coordonnées masquées] RSAC 2018AC00169 Copropriété de 123 lots - dont 24 lots habitation.(). (RDC) Muriel GARNREITER (EI) Agent Commercial - Numéro RSAC : - .
Voir plus

Référence: 3795
Bien en copropriété. Nombre de lots : 123.
Barème des honoraires

Prêt immobilier

Vous souhaitez connaître votre capacité d’emprunt et trouver le meilleur crédit immobilier ?
Réaliser une simulation gratuite

Commerce à PARIS-16E
Commerce à PARIS-16E
Commerce à PARIS-16E
Commerce à PARIS-16E
Commerce à PARIS-16E
Commerce à PARIS-16E
Commerce à PARIS-16E
Ce site est protégé par reCAPTCHA la Politique de confidentialité et les Conditions d’utilisation de Google s’appliquent.
Obtenir un prêt immobilier au meilleur taux ?

En poursuivant votre navigation sans modifier vos paramètres, vous acceptez l'utilisation de cookies susceptibles de réaliser des statistiques de visite. Cliquez ici pour plus d'informations