Exceptionnel ! terrain constructible de 950m² arboré et clos à seignosse.

— Seignosse 40510 —
490 000 €
950 m²
jardin

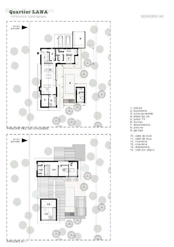
L'agence Laforêt est heureuse de vous présenter une occasion exceptionnelle : un superbe terrain de 950m², niché dans un cadre paisible et boisé à Seignosse. Ce terrain est prêt à accueillir votre projet de construction pouvant aller jusqu'à 570M², que ce soit pour votre résidence principale, une maison de vacances ou un investissement locatif à quelques pas des parcours de golf prestigieux et des plages renommées de la région. Profitez de la quiétude d'un environnement calme, idéal pour créer votre oasis personnelle. Chaque Lot est clôturé et végétalisé afin de préserver une harmonie ambiante. L'emplacement permet également l'ajout d'une piscine, idéale pour profiter des journées ensoleillées. Un soin tout particulier à été apporté à la voirie, aux espaces verts qui bénéficient d'un arrosage automatique intégré, aux clôtures ajourées en pin sylvestre, aux boitiers Edf soigneusement dissimulés ainsi qu'a la qualité et l'esthétique des éclairages extérieurs. Pour plus d'informations ou pour planifier une visite, contactez-nous dès maintenant à l'agence Laforêt. Explorez les possibilités infinies pour créer votre havre de paix sur ce terrain enchanteur à Seignosse. Délégation de mandat: Informations sur les honoraires disponibles en agence.
Voir plus

Référence: 76
Honoraires à la charge du vendeur.
Barème des honoraires

Prêt immobilier

Vous souhaitez connaître votre capacité d’emprunt et trouver le meilleur crédit immobilier ?
Réaliser une simulation gratuite

Terrain à SEIGNOSSE
Terrain à SEIGNOSSE
Terrain à SEIGNOSSE
Terrain à SEIGNOSSE
Terrain à SEIGNOSSE
Terrain à SEIGNOSSE
Terrain à SEIGNOSSE
Terrain à SEIGNOSSE
Terrain à SEIGNOSSE
Terrain à SEIGNOSSE
Terrain à SEIGNOSSE
Terrain à SEIGNOSSE
Terrain à SEIGNOSSE
Terrain à SEIGNOSSE
Terrain à SEIGNOSSE
Ce site est protégé par reCAPTCHA la Politique de confidentialité et les Conditions d’utilisation de Google s’appliquent.
Obtenir un prêt immobilier au meilleur taux ?

En poursuivant votre navigation sans modifier vos paramètres, vous acceptez l'utilisation de cookies susceptibles de réaliser des statistiques de visite. Cliquez ici pour plus d'informations