Maison de ville rénovée, surface de 152 m² sur un terrain de 193 m²-avec 5 chambres, cuisine a/e , grand salon expo sud avec che

— Fougeres 35300 —
348 400 €
152 m² / 193 m²
7 pièces
parking

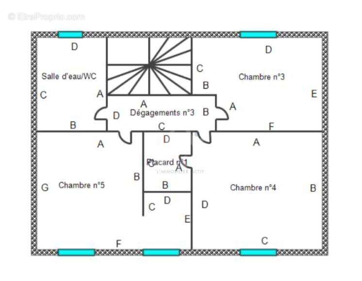
À vendre – Maison de ville spacieuse, renovée avec jardin/cour – Quartier Bonabry, Fougères – 5 chambres, salon exposé Sud . Située en plein centre-ville de Fougères, dans le quartier recherché de Bonabry, cette maison de caractère aux volumes généreux offre le charme de l'ancien allié au confort moderne. Édifiée sur 5 niveaux dont un sous-sol et le grenier à aménager, cette maison d'une surface habitable de 152 m², implantée sur un terrain de 193 m², se distingue par : Rénovation récente et totale - éléctricité, plomberie,isolation , aucun travaux à prévoir Une entrée bourgeoise avec escalier art déco et belles hauteurs sous plafond Un salon-séjour lumineux exposition Sud, avec parquet massif et cheminée Une cuisine américaine aménagée et équipée Une buanderie avec accès direct à la cour, toilettes séparés Cinq chambres spacieuses sur sol en bois massif, disposant des grands espaces pour créer des dressings. Un bureau indépendant, idéal pour télétravail Une salle de bains, une salle d'eau, toilettes à chaque étage. Vous profiterez également d'un jardin /cour, un véritable atout rare en centre-ville. Grenier isolé de 54 m², un sous-sol avec grand espace et cave à vins. Secteur calme, à proximité immédiate des commerces, écoles et services. Contactez-moi pour plus d'informations et organiser une visite. Contactez votre Agent AXO - L'immobilier Actif au [Coordonnées masquées], Valentina ANGHEL (EI) Agent Commercial RSAC 524.181.831 Rennes. Plus d'informations sur www.axo.immo (réf. 85002119255). Honoraires : 13 400 € TTC (4 %) inclus charge acquéreur (335 000 € hors honoraires). Les informations sur les risques auxquels ce bien est exposé sont disponibles sur le site Géorisques : https://www.georisques.gouv.fr/
Voir plus

Référence: 32813
Honoraires d'agence de 4% à la charge de l'acquéreur
Barème des honoraires
DPE
A
B
C
D
E
F
G
GES
A
B
C
D
E
F
G

Prêt immobilier

Vous souhaitez connaître votre capacité d’emprunt et trouver le meilleur crédit immobilier ?
Réaliser une simulation gratuite

Maison à FOUGERES
Maison à FOUGERES
Maison à FOUGERES
Maison à FOUGERES
Maison à FOUGERES
Maison à FOUGERES
Maison à FOUGERES
Maison à FOUGERES
Maison à FOUGERES
Maison à FOUGERES
Maison à FOUGERES
Maison à FOUGERES
Maison à FOUGERES
Maison à FOUGERES
Maison à FOUGERES
Maison à FOUGERES
Maison à FOUGERES
Maison à FOUGERES
Maison à FOUGERES
Maison à FOUGERES
Maison à FOUGERES
Maison à FOUGERES
Ce site est protégé par reCAPTCHA la Politique de confidentialité et les Conditions d’utilisation de Google s’appliquent.
Obtenir un prêt immobilier au meilleur taux ?

En poursuivant votre navigation sans modifier vos paramètres, vous acceptez l'utilisation de cookies susceptibles de réaliser des statistiques de visite. Cliquez ici pour plus d'informations