Bénéficiez des services de nos partenaires locaux soigneusement sélectionnés
pour vous accompagner dans votre parcours d'achat immobilier

Terrain à myans

— Myans 73800 —
139 000 €

Nos partenaires locaux
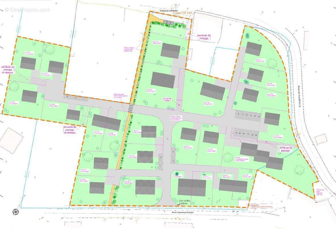
Les Jardins d'Elena – Myans, Savoie7
Votre terrain à bâtir au coeur d'un cadre de vie privilégié

Imaginez votre maison dans un environnement calme, verdoyant et parfaitement situé…
Le lotissement Les Jardins d'Elena vous propose 25 lots à bâtir idéalement implantés à quelques pas seulement du centre du village de Myans, en Savoie.

Un emplacement stratégique
Proximité immédiate des commerces, écoles et services
Accès rapide à Chambéry et aux axes routiers principaux
Un cadre naturel préservé, entre vignobles et montagnes
Des lots accessibles dès 139 000 €

Choisissez le terrain qui correspond à votre projet de vie : surface, orientation, emplacement… Chaque lot a été pensé pour offrir confort, tranquillité et valorisation patrimoniale.

Des projets de maisons clés en main sont disponibles avec notre partenaire Dauphiné Construction, constructeur local reconnu.Selon vos envies, vous pouvez opter pour une solution complète, ou bien choisir une formule « à la carte » si vous souhaitez réaliser vous-même une partie des travaux.
Vous bénéficiez ainsi d'un accompagnement personnalisé pour concevoir et bâtir la maison qui vous ressemble, adaptée à vos besoins et à votre budget.

Ne manquez pas cette opportunité unique de devenir propriétaire à Myans.Contactez-nous dès aujourd'hui pour recevoir le plan des lots disponibles et découvrir les projets de maisons proposés avec Dauphiné Construction.

Honoraires à la charge du vendeur. Les informations sur les risques auxquels ce bien est exposé sont disponibles sur le site Géorisques : georisques.gouv.fr.
Voir plus

Référence: 1528-VALORIS38000GRE
Honoraires à la charge du vendeur.
Barème des honoraires

Prêt immobilier

Vous souhaitez connaître votre capacité d’emprunt et trouver le meilleur crédit immobilier ?
Réaliser une simulation gratuite

Terrain à MYANS
Terrain à MYANS
Terrain à MYANS
Terrain à MYANS
Terrain à MYANS
Terrain à MYANS
Terrain à MYANS
Ce site est protégé par reCAPTCHA la Politique de confidentialité et les Conditions d’utilisation de Google s’appliquent.
Obtenir un prêt immobilier au meilleur taux ?

En poursuivant votre navigation sans modifier vos paramètres, vous acceptez l'utilisation de cookies susceptibles de réaliser des statistiques de visite. Cliquez ici pour plus d'informations