Bénéficiez des services de nos partenaires locaux soigneusement sélectionnés
pour vous accompagner dans votre parcours d'achat immobilier

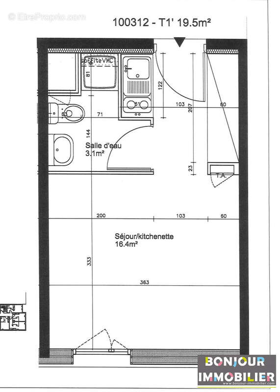
Appartement 19m² à grenoble

— Grenoble 38000 —
55 000 €
19 m²
1 pièce
ascenseur

Nos partenaires locaux
GRENOBLE - 12 Ter Avenue Marie Reynoard - Proche de toutes commodités (tramway A). Dans une copropriété sécurisée et récente avec gardien, ce studio de 19.49m² est situé au troisième étage avec ascenseur. Il se compose ainsi : Une entrée avec placard, une pièce de vie, une kitchenette équipée (plaques de cuisson et réfrigérateur) et une salle d'eau avec WC. Le chauffage, l'eau froide et l'eau chaude sont collectifs et donc inclus dans les charges. Vendu avec locataire en place - Bail non meublé / Loyer en cours 360 Euros charges comprises. L'immeuble est récent et très bien entretenu.

Honoraires à la charge du vendeur. Dans une copropriété de 90 lots. Quote-part moyenne du budget prévisionnel 1 233 €/an. Aucune procédure n'est en cours. Classe énergie C, Classe climat B Montant estimé des dépenses annuelles d'énergie pour un usage standard : entre 246.00 € et 332.00 € sur les années 2021, 2022 et 2023 (abonnements compris). Les informations sur les risques auxquels ce bien est exposé sont disponibles sur le site Géorisques : georisques.gouv.fr.
Voir plus

Référence: VA5902-BONJOUR2
Bien en copropriété. Nombre de lots : 90. Charges de copropriété : 1233 €.
Honoraires à la charge du vendeur.
Barème des honoraires
DPE
A
B
C
D
E
F
G
GES
A
B
C
D
E
F
G

Prêt immobilier

Vous souhaitez connaître votre capacité d’emprunt et trouver le meilleur crédit immobilier ?
Réaliser une simulation gratuite

Appartement à GRENOBLE
Appartement à GRENOBLE
Appartement à GRENOBLE
Appartement à GRENOBLE
Appartement à GRENOBLE
Appartement à GRENOBLE
Appartement à GRENOBLE
Appartement à GRENOBLE
Appartement à GRENOBLE
Ce site est protégé par reCAPTCHA la Politique de confidentialité et les Conditions d’utilisation de Google s’appliquent.
Obtenir un prêt immobilier au meilleur taux ?

En poursuivant votre navigation sans modifier vos paramètres, vous acceptez l'utilisation de cookies susceptibles de réaliser des statistiques de visite. Cliquez ici pour plus d'informations