Bénéficiez des services de nos partenaires locaux soigneusement sélectionnés
pour vous accompagner dans votre parcours d'achat immobilier

Voir tous les partenaires locaux

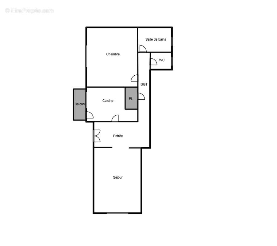
Exelmans ? 2 pièces avec balcon au 7? étage- 52.38m²

— Paris-16e 75016 —
548 000 €
52 m²
2 pièces
balcon/terrasseascenseur

Nos partenaires locaux
Situé au 7? étage avec ascenseur d'un immeuble ancien de bon standing avec gardien, cet appartement de 52,38 m² offre un cadre de vie lumineux et calme, à proximité immédiate des transports (métro ligne 9) et de toutes commodités. Il se compose d'une entrée, d'un séjour agréable, d'une cuisine indépendante (possibilité d'ouverture sur le séjour), le tout donnant accès à un balcon, d'une chambre, d'une salle de bains, ainsi que de W.C. séparés. Baigné de lumière grâce à son étage élevé, cet appartement présente un beau potentiel d'aménagement et un plan fonctionnel. Idéal pour un premier achat, un pied-à-terre ou un investissement locatif dans un quartier recherché du 16? arrondissement. Depuis 1993, BUILDING PARTNERS accompagne les propriétaires dans la vente de biens immobiliers de standing sur l'ouest parisien. Notre force ? Une organisation unique avec deux rôles experts : >Les Brokers, spécialisés dans la prospection et la valorisation de votre bien. >Les Sellers, experts en négociation et en mise en relation avec notre portefeuille d'acheteurs qualifiés. Avec 5 agences implantées au coeur des quartiers les plus recherchés (Paris 16e, Paris 17e, Neuilly, Levallois, Courbevoie), nous vous offrons une visibilité maximale, un accompagnement personnalisé et un engagement total jusqu'à la signature. Confiez-nous votre bien pour une vente rapide, au meilleur prix. Estimation offerte, confidentielle et sans engagement. Copropriété de 164 lots - dont 66 lots habitation. (Pas de procédure en cours). Charges annuelles : 4233.14 euros.
Voir plus

Référence: 12176
Bien en copropriété. Nombre de lots : 164. Charges de copropriété : 4233 €.
Honoraires à la charge du vendeur.
Barème des honoraires
DPE
A
B
C
D
E
F
G
GES
A
B
C
D
E
F
G

Prêt immobilier

Vous souhaitez connaître votre capacité d’emprunt et trouver le meilleur crédit immobilier ?
Réaliser une simulation gratuite

Appartement à PARIS-16E
Appartement à PARIS-16E
Appartement à PARIS-16E
Appartement à PARIS-16E
Appartement à PARIS-16E
Appartement à PARIS-16E
Appartement à PARIS-16E
Appartement à PARIS-16E
Appartement à PARIS-16E
Appartement à PARIS-16E
Appartement à PARIS-16E
Appartement à PARIS-16E
Appartement à PARIS-16E
Appartement à PARIS-16E
Appartement à PARIS-16E
Appartement à PARIS-16E
Appartement à PARIS-16E
Appartement à PARIS-16E
Ce site est protégé par reCAPTCHA la Politique de confidentialité et les Conditions d’utilisation de Google s’appliquent.
Obtenir un prêt immobilier au meilleur taux ?

En poursuivant votre navigation sans modifier vos paramètres, vous acceptez l'utilisation de cookies susceptibles de réaliser des statistiques de visite. Cliquez ici pour plus d'informations