A vendre - paris 16e victor hugo - 5 pièces - 191m²

— Paris-16e 75116 —
3 100 000 €
191 m²
5 pièces
balcon/terrasseascenseur

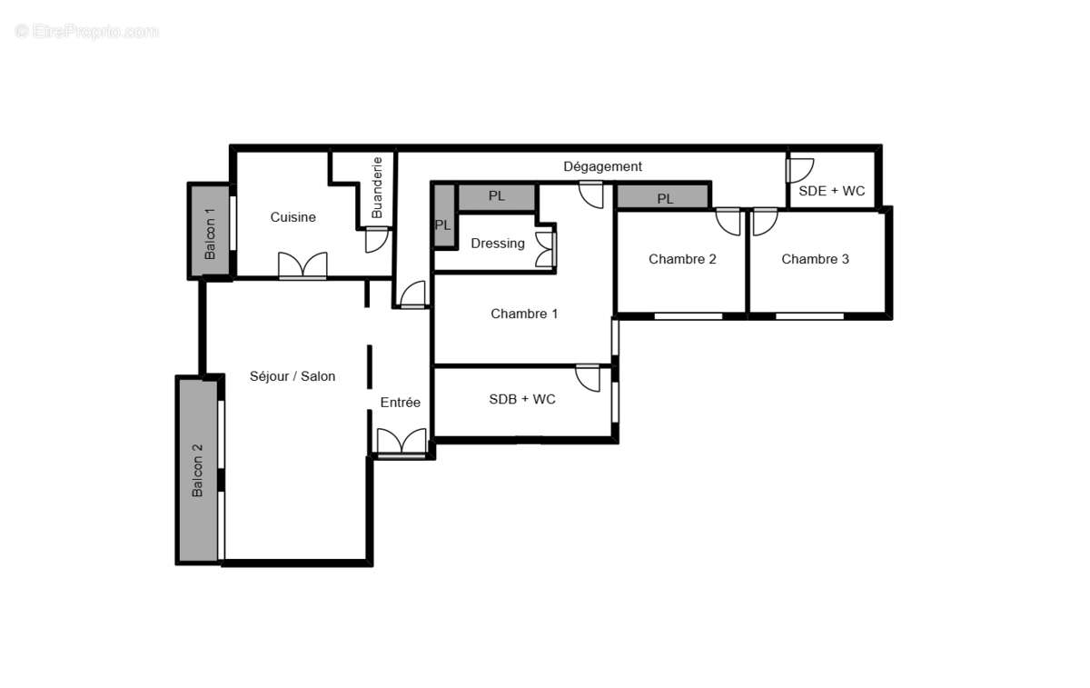
A vendre - Paris 16e Victor Hugo - 5 Pièces Appartement de 191m² situé au 5ème étage par ascenseur au sein d'un immeuble semi-récent de très bon standing avec gardien. Entrée, double séjour donnant accès à un balcon d'environ 10m² exposé sud-est, une cuisine américaine aménagée et équipée, 3 chambres dont une Master avec dressing et salle d'eau (douche et baignoire) attenante, 1 salle d'eau avec WC, un espace buanderie, 1 WC séparé. Appartement de réception en excellent état, entièrement rénové par architecte et disposant d'une belle vue dégagée sans vis-à-vis. Une cave complète ce bien. Un emplacement de parking est disponible en SUS du prix. Idéalement situé à proximité directe du Square Lamartine, des transports (lignes 2et9) et de toutes commodités. Sectorisation Janson De Sailly. Depuis 1993, BUILDING PARTNERS accompagne les propriétaires dans la vente de biens immobiliers de standing sur l'ouest parisien. Notre force ? Une organisation unique avec deux rôles experts : >Les Brokers, spécialisés dans la prospection et la valorisation de votre bien. >Les Sellers, experts en négociation et en mise en relation avec notre portefeuille d'acheteurs qualifiés. Avec 5 agences implantées au coeur des quartiers les plus recherchés (Paris 16e, Paris 17e, Neuilly, Levallois, Courbevoie), nous vous offrons une visibilité maximale, un accompagnement personnalisé et un engagement total jusqu'à la signature. Confiez-nous votre bien pour une vente rapide, au meilleur prix. Estimation offerte, confidentielle et sans engagement. Copropriété de 79 lots - dont 21 lots habitation. (Pas de procédure en cours). Charges annuelles : 14064 euros.
Voir plus

Référence: 12223
Bien en copropriété. Nombre de lots : 79. Charges de copropriété : 14064 €.
Honoraires à la charge du vendeur.
Barème des honoraires
DPE
A
B
C
D
E
F
G
GES
A
B
C
D
E
F
G

Prêt immobilier

Vous souhaitez connaître votre capacité d’emprunt et trouver le meilleur crédit immobilier ?
Réaliser une simulation gratuite

Appartement à PARIS-16E
Appartement à PARIS-16E
Appartement à PARIS-16E
Appartement à PARIS-16E
Appartement à PARIS-16E
Appartement à PARIS-16E
Appartement à PARIS-16E
Appartement à PARIS-16E
Appartement à PARIS-16E
Appartement à PARIS-16E
Appartement à PARIS-16E
Appartement à PARIS-16E
Appartement à PARIS-16E
Appartement à PARIS-16E
Appartement à PARIS-16E
Appartement à PARIS-16E
Ce site est protégé par reCAPTCHA la Politique de confidentialité et les Conditions d’utilisation de Google s’appliquent.
Obtenir un prêt immobilier au meilleur taux ?

En poursuivant votre navigation sans modifier vos paramètres, vous acceptez l'utilisation de cookies susceptibles de réaliser des statistiques de visite. Cliquez ici pour plus d'informations