Bénéficiez des services de nos partenaires locaux soigneusement sélectionnés
pour vous accompagner dans votre parcours d'achat immobilier

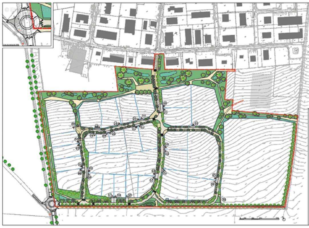
Terrain 2502m² à douvres-la-delivrande

— Douvres-La-Delivrande 14440 —
96 575 €
2 502 m²

Nos partenaires locaux
Parcelle de 2502 m² viabilisée à vendre à Douvres-la-Délivrande sur le Parc d'Activité Coeur de Nacre.

Un positionnement stratégique,
Proche des grands axes,
Aménagement paysager qualitatif,
Parc labélisé RSE Normandie ReSponsablE

Parcelles viabilisées de 1 773 m² à 5 100 m²

Prix de 76 800 à 229 500 euros HT

LOT 19 : 2 502 m²
Prix de vente : 96 575 euros HT

A l'initiative de la Communauté de communes Cœur de Nacre, Normandie Aménagement développe le Parc d'activités Cœur de Nacre, Zone d'Aménagement Concerté, extension de la Zone d'Activités Économiques de la Fossette, située à Douvres-la-Délivrande.

Positionnée au sud de la zone d'activités de la Fossette existante, l'extension « Parc d'activités Cœur de Nacre » s'étend sur 21 hectares.

Elle vise à développer l'activité économique et à encourager la création d'emplois sur le territoire de la Communauté de communes.

UNE OFFRE FONCIERE DIVERSIFIEE avec au total, 32 parcelles proposées à la vente :

“Les informations sur les risques auxquels ce bien est exposé sont disponibles sur le site Géorisques : www.georisques.gouv.fr”.
Voir plus

Référence: 3520-19
Honoraires à la charge du vendeur.

Prêt immobilier

Vous souhaitez connaître votre capacité d’emprunt et trouver le meilleur crédit immobilier ?
Réaliser une simulation gratuite

Terrain à DOUVRES-LA-DELIVRANDE
Terrain à DOUVRES-LA-DELIVRANDE
Terrain à DOUVRES-LA-DELIVRANDE
Terrain à DOUVRES-LA-DELIVRANDE
Terrain à DOUVRES-LA-DELIVRANDE
Terrain à DOUVRES-LA-DELIVRANDE
Terrain à DOUVRES-LA-DELIVRANDE
Terrain à DOUVRES-LA-DELIVRANDE
Terrain à DOUVRES-LA-DELIVRANDE
Terrain à DOUVRES-LA-DELIVRANDE
Terrain à DOUVRES-LA-DELIVRANDE
Terrain à DOUVRES-LA-DELIVRANDE
Terrain à DOUVRES-LA-DELIVRANDE
Terrain à DOUVRES-LA-DELIVRANDE
Terrain à DOUVRES-LA-DELIVRANDE
Terrain à DOUVRES-LA-DELIVRANDE
Terrain à DOUVRES-LA-DELIVRANDE
Terrain à DOUVRES-LA-DELIVRANDE
Terrain à DOUVRES-LA-DELIVRANDE
Terrain à DOUVRES-LA-DELIVRANDE
Ce site est protégé par reCAPTCHA la Politique de confidentialité et les Conditions d’utilisation de Google s’appliquent.
Obtenir un prêt immobilier au meilleur taux ?

En poursuivant votre navigation sans modifier vos paramètres, vous acceptez l'utilisation de cookies susceptibles de réaliser des statistiques de visite. Cliquez ici pour plus d'informations