Bénéficiez des services de nos partenaires locaux soigneusement sélectionnés
pour vous accompagner dans votre parcours d'achat immobilier

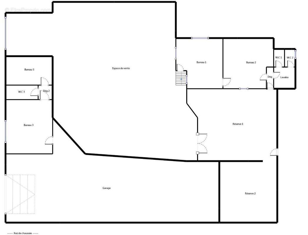
Commerce 620m² à montelimar

— Montelimar 26200 —
1 144 000 €
620 m² / 795 m²

Nos partenaires locaux
Situé sur un emplacement stratégique en zone commerciale, ce bâtiment indépendant bénéficie d’une visibilité maximale et d’un accès facile. L’ensemble est édifié sur une parcelle de 795 m² et se compose de deux lots distincts.

Lot n°1 : environ 470 m² construit – Actuellement occupé, il sera libre au 1er avril 2026. Idéal pour une activité nécessitant un grand volume, un showroom ou des bureaux.

Lot n°2 : environ 150 m² construit – Actuellement loué, offrant un revenu locatif sécurisé.

Excellente opportunité pour un investisseur ou un professionnel souhaitant s’implanter dans un secteur très dynamique, avec un fort passage et une concentration d’enseignes attractives.

Un emplacement premium rare sur le marché !

Pour toute information complémentaire ou organiser une visite, n’hésitez pas à me contacter. - Consultez notre barème d’honoraires sur http://www.v2b.com/bareme-honoraires.php
Voir plus

Référence: VVB1801
Honoraires à la charge du vendeur.
Barème des honoraires

Prêt immobilier

Vous souhaitez connaître votre capacité d’emprunt et trouver le meilleur crédit immobilier ?
Réaliser une simulation gratuite

Commerce à MONTELIMAR
Commerce à MONTELIMAR
Commerce à MONTELIMAR
Commerce à MONTELIMAR
Commerce à MONTELIMAR
Commerce à MONTELIMAR
Commerce à MONTELIMAR
Commerce à MONTELIMAR
Ce site est protégé par reCAPTCHA la Politique de confidentialité et les Conditions d’utilisation de Google s’appliquent.
Obtenir un prêt immobilier au meilleur taux ?

En poursuivant votre navigation sans modifier vos paramètres, vous acceptez l'utilisation de cookies susceptibles de réaliser des statistiques de visite. Cliquez ici pour plus d'informations