Bénéficiez des services de nos partenaires locaux soigneusement sélectionnés
pour vous accompagner dans votre parcours d'achat immobilier

Jardin urbain et dépendance

— Marseille-6e 13006 —
735 000 €
114 m²
5 pièces
balcon/terrasse

Nos partenaires locaux
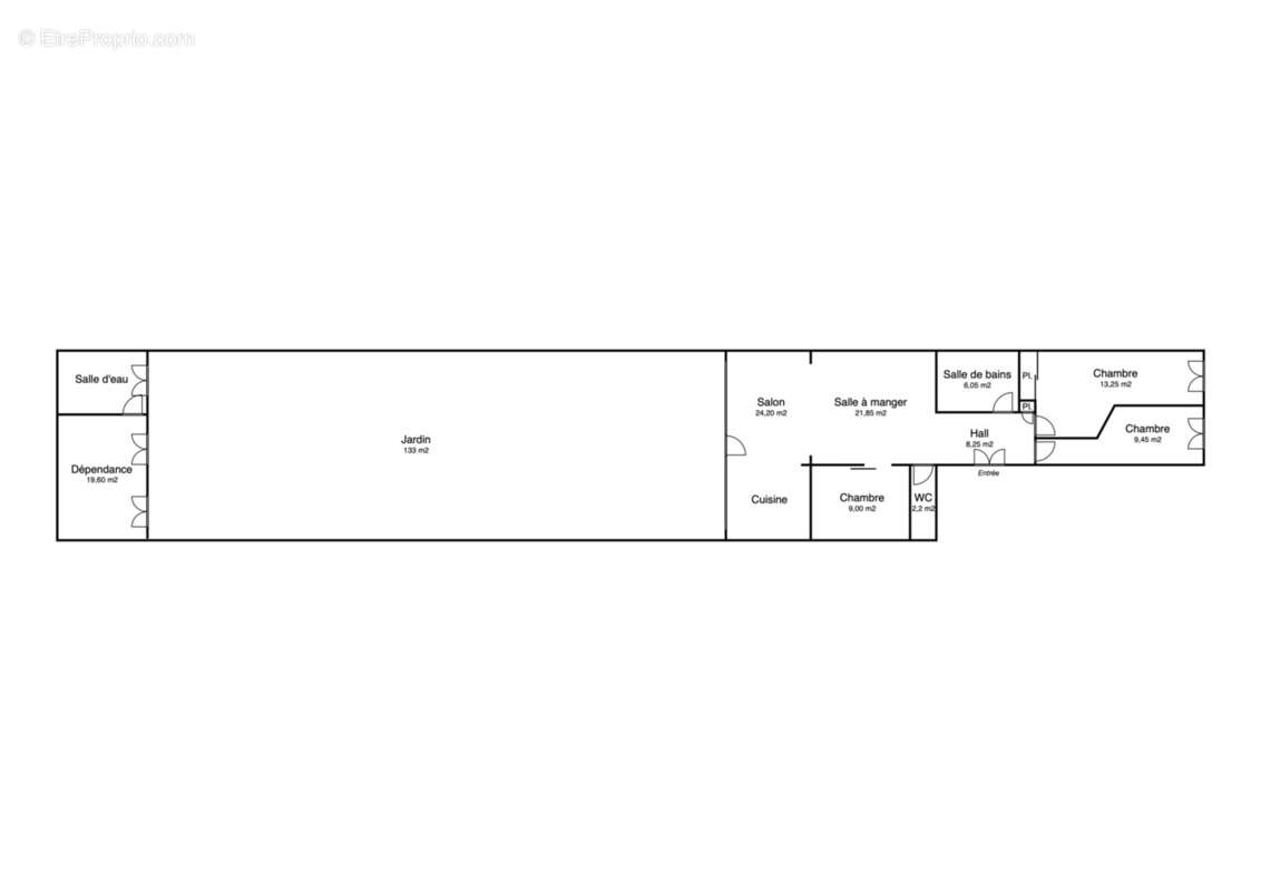
C'est un bien d'exception, doté d'un grand jardin avec dépendance au calme absolu, que vous invite à découvrir le Café de l'immo sur le secteur prisé de Notre-Dame du Mont...
 
Accessible depuis le rez-de-chaussée d'un bel immeuble ancien marseillais, ce bien véritablement à part prend des allures de maison de campagne en plein centre-ville. Offrant au total une surface de près de 114 m2 (94 m2 loi Carrez dans l'appartement principal + 20 m2 de dépendance), il se compose de la manière suivante :
 
- Une fois passé le hall d'entrée, vous accéderez à un grand salon/séjour de 46 m2, avec sa cuisine équipée attenante. Beau parquet, carreaux de ciment, hauteur sous plafond et cheminée se mêlent pour créer une atmosphère unique, magnifiée par un puits de lumière et la grande baie vitrée. Cette dernière vous permettra d'accéder à un incroyable jardin de plus de 130 m2, arboré et au calme absolu. Doté de plusieurs espaces de convialité, il fera le bonheur des grands comme des petits, et ce tout au long de l'année. Une jolie dépendance située au fond (comprenant une chambre + salle d'eau/wc), vous permettra d'accueillir vos invités dans les meilleures conditions.
 
- De retour à l'intérieur, vous découvrirez côté nuit 2 chambres, ainsi qu'une chambre de second jour attenante au salon, accessible par une porte verrière du plus bel effet. Une salle de bains ainsi qu'un second wc séparé complètent les prestations de ce bien.
 
- A noter qu'une grande cave vient offrir un espace de stockage complémentaire, et qu'il est possible de récupérer à la location un box pour le stationnement, situé à seulement quelques minutes à pied.
  
Vous êtes à la recherche d'un appartement au caractère certain, unique en son genre, offrant beaucoup de place pour votre vie de famille, et bénéficiant d'un vaste jardin avec dépendance au calme absolu, le tout dans l'un des secteurs les plus en vogue du centre-ville marseillais ? Ne cherchez plus, le Café de l'immo l'a trouvé pour vous !
 
Charges : environ 125€/mois
Taxe foncière : 1557€
Cette annonce vous est proposée par Peltier Nicolas - - NoRSAC: 892 943 903, Enregistré au Greffe du tribunal de commerce de MARSEILLE
Voir plus

Référence: 1474
Bien en copropriété. Nombre de lots : 6. Charges de copropriété : 1500 €.
Honoraires à la charge du vendeur.
Barème des honoraires
DPE
A
B
C
D
E
F
G
GES
A
B
C
D
E
F
G

Prêt immobilier

Vous souhaitez connaître votre capacité d’emprunt et trouver le meilleur crédit immobilier ?
Réaliser une simulation gratuite

Appartement à MARSEILLE-6E
Appartement à MARSEILLE-6E
Appartement à MARSEILLE-6E
Appartement à MARSEILLE-6E
Appartement à MARSEILLE-6E
Appartement à MARSEILLE-6E
Appartement à MARSEILLE-6E
Appartement à MARSEILLE-6E
Appartement à MARSEILLE-6E
Appartement à MARSEILLE-6E
Appartement à MARSEILLE-6E
Appartement à MARSEILLE-6E
Appartement à MARSEILLE-6E
Appartement à MARSEILLE-6E
Appartement à MARSEILLE-6E
Appartement à MARSEILLE-6E
Appartement à MARSEILLE-6E
Appartement à MARSEILLE-6E
Appartement à MARSEILLE-6E
Appartement à MARSEILLE-6E
Ce site est protégé par reCAPTCHA la Politique de confidentialité et les Conditions d’utilisation de Google s’appliquent.
Obtenir un prêt immobilier au meilleur taux ?

En poursuivant votre navigation sans modifier vos paramètres, vous acceptez l'utilisation de cookies susceptibles de réaliser des statistiques de visite. Cliquez ici pour plus d'informations