Bénéficiez des services de nos partenaires locaux soigneusement sélectionnés
pour vous accompagner dans votre parcours d'achat immobilier

Pavillon plain-pied 97m2

— Maison-Rouge 77370 —
255 000 €
98 m² / 700 m²
6 pièces
parkingbalcon/terrassejardin

Nos partenaires locaux
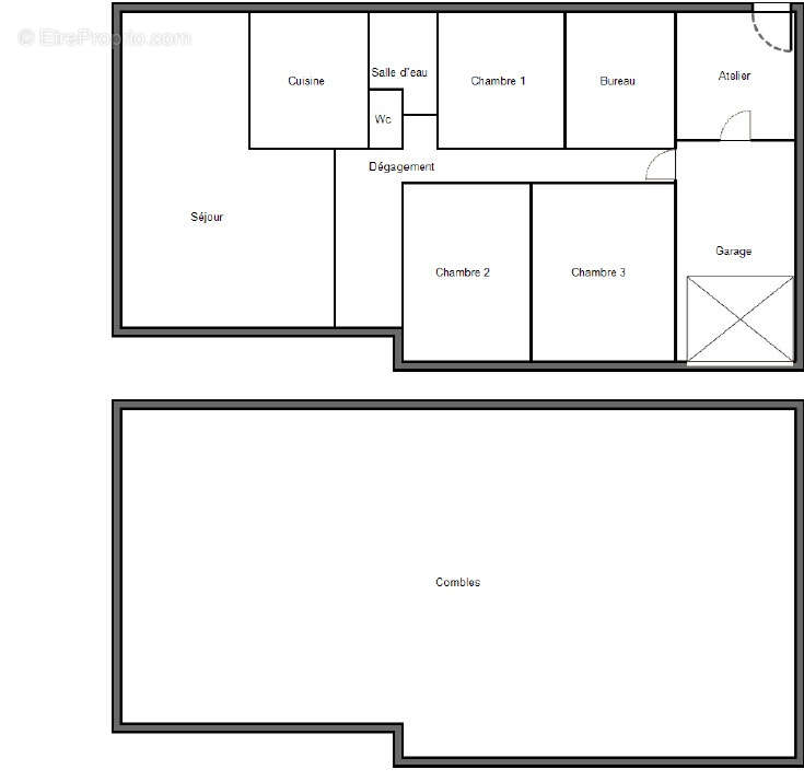
Votre Agence BOURILLON à Nangis a sélectionné pour vous ce charmant Pavillon de plain-pied avec garage de 97,96 m2 habitables, situé en Seine-et-Marne proche de Nangis (77370).
Pavillon traditionnel construit en 1980, il se compose comme suit :

Une vaste entrée avec placards, un séjour double de plus de 30m2 avec une cheminée insert, une cuisine indépendante (possibilité d'ouvrir la cuisine sur le séjour), une salle d'eau récente, un WC indépendant et quatre chambres indépendantes.
De plus, vous bénéficiez d'un garage avec espace buanderie et d'un atelier de bricolage.
Un grenier au-dessus du garage et les combles. (aménageables avec modification de charpente), accessible par un escalier escamotable.

À l'extérieur
Édifié sur un agréable terrain clos et arboré de 700 m2 dans un bel environnement, au calme.

Chauffage électrique récent et ballon électrique pour l'eau chaude.

Les +++ :
- DPE en classe D dès le 1er janvier 2026 (réforme DPE chauffage électrique)
4 chambres de plain-pied
Raccordée au tout-à-l'égout, éligible à la fibre optique
Huisseries en double vitrage PVC, changées en 2025
Taxe Taxe foncière 2025 de 1027 € /an
Porte de garage motorisée
- VMC Simple Flux
Constat amiante négatif, tableau électrique récent

Très bon état général du bâtiment !

Idéalement située à 11km de NANGIS & de PROVINS et sa cité médiévale.
À 10 minutes de la Gare de NANGIS Ligne P - pour PARIS-EST (45minutes).
Ligne de bus régulière sur place (Bus 47, Melun - Nangis - Provins)
École primaire, épicerie & boulangerie sur place également.
N'hésitez pas à prendre contact avec votre Agence BOURILLON pour une première visite de cette Maison à vendre.
Plus de photos et d'informations sur notre site internet.
Estimation offerte de votre bien actuel sur RDV !

Agence BOURILLON
A NANGIS Depuis 1984 ! AGENCE BOURILLON : [Coordonnées masquées]
Voir plus

Référence: 141
Honoraires d'agence de 6.03% à la charge de l'acquéreur
Barème des honoraires
DPE
A
B
C
D
E
F
G
GES
A
B
C
D
E
F
G

Prêt immobilier

Vous souhaitez connaître votre capacité d’emprunt et trouver le meilleur crédit immobilier ?
Réaliser une simulation gratuite

Maison à MAISON-ROUGE
Maison à MAISON-ROUGE
Maison à MAISON-ROUGE
Maison à MAISON-ROUGE
Maison à MAISON-ROUGE
Maison à MAISON-ROUGE
Maison à MAISON-ROUGE
Maison à MAISON-ROUGE
Maison à MAISON-ROUGE
Maison à MAISON-ROUGE
Maison à MAISON-ROUGE
Maison à MAISON-ROUGE
Maison à MAISON-ROUGE
Maison à MAISON-ROUGE
Maison à MAISON-ROUGE
Maison à MAISON-ROUGE
Maison à MAISON-ROUGE
Maison à MAISON-ROUGE
Maison à MAISON-ROUGE
Maison à MAISON-ROUGE
Maison à MAISON-ROUGE
Maison à MAISON-ROUGE
Maison à MAISON-ROUGE
Ce site est protégé par reCAPTCHA la Politique de confidentialité et les Conditions d’utilisation de Google s’appliquent.
Obtenir un prêt immobilier au meilleur taux ?

En poursuivant votre navigation sans modifier vos paramètres, vous acceptez l'utilisation de cookies susceptibles de réaliser des statistiques de visite. Cliquez ici pour plus d'informations