Coupe de coeur - appartement loft de 83m2 - calme - lumineux - 75020 paris

— Paris-20e 75020 —
915 000 €
83 m²
2 pièces

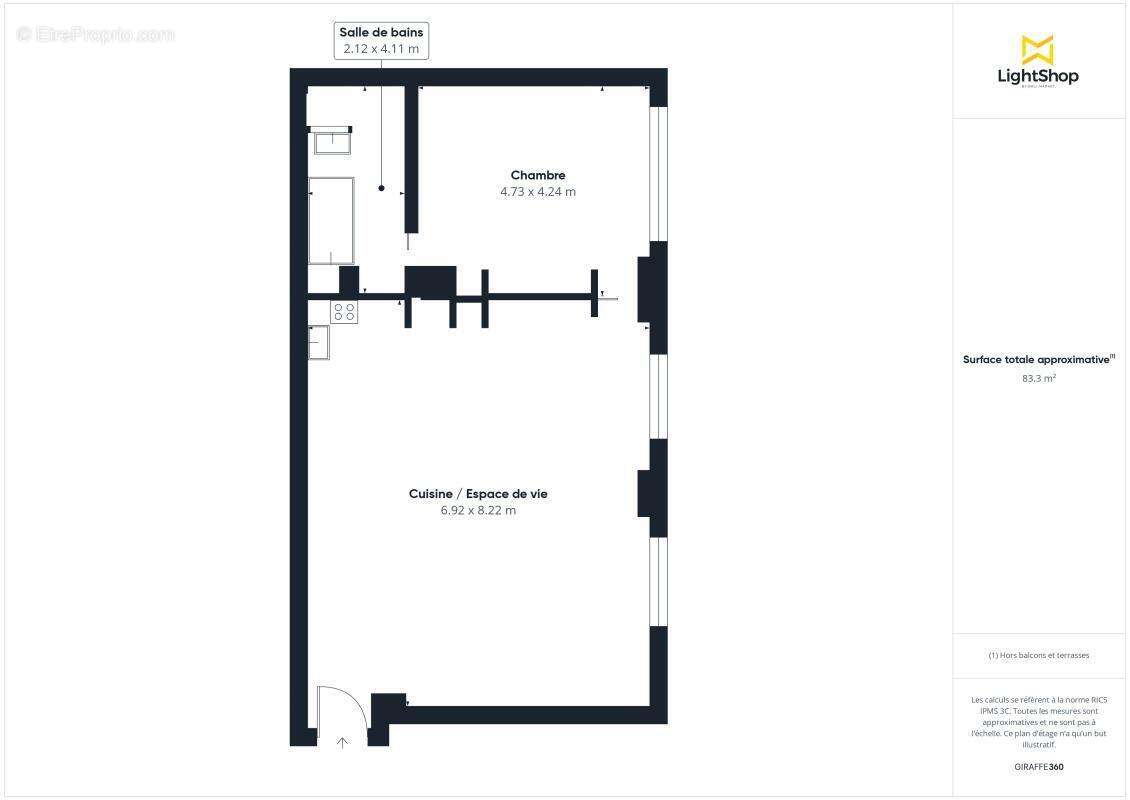
Hosman vous propose à la vente ce superbe appartement de 83,23 m² Carrez, situé Rue des Vignoles dans le 20ᵉ arrondissement de Paris. Installé au 1er étage d'une résidence sécurisée à l'esprit village, l'appartement offre un cadre calme et recherché. L'ensemble des travaux de copropriété ont déjà été réalisés. Ce bien se distingue par ses volumes généreux, sa luminosité et son agencement modulable.
Le bien est soumis au statut de copropriété.

Planifiez facilement votre visite en choisissant le créneau qui vous convient depuis notre site hosman . co

Il s'ouvre sur un large espace de vie de 55 m² comprenant une cuisine ouverte équipée. La deuxième arrivée d'eau située à l'entrée permet la création d'un second WC ou d'une seconde salle d'eau, et l'espace peut être reconfiguré pour aménager une deuxième chambre. La chambre principale de 20 m² dispose de rangements intégrés et donne accès à une salle de bain avec WC. L'appartement ne présente aucune perte d'espace et bénéficie de nombreux rangements.
Une cave complète le bien.

Les charges s'élèvent à 688 € par trimestre et la taxe foncière à 1 460 €.

La Rue des Vignoles bénéficie d'une atmosphère conviviale et d'un véritable esprit village, tout en offrant un accès rapide aux transports et aux commodités. Les métros Avron (ligne 2) et Buzenval (ligne 9) permettent de rejoindre facilement les principaux quartiers parisiens. Le secteur est également apprécié pour ses écoles, collèges et crèches accessibles à pied. On y trouve de nombreux commerces, boulangeries, marchés, cafés et plusieurs restaurants réputés. À proximité, le square Sarah Bernhardt, le Père-Lachaise et d'autres espaces verts offrent des lieux agréables pour se détendre.

Le bien se situe dans une copropriété entretenue et sécurisée. Tous les travaux nécessaires ont été réalisés. Le bien est soumis au statut de copropriété.

Hosman s'efforce de réinventer l'agence immobilière en offrant un service innovant et transparent aux acheteurs et aux vendeurs. Nos frais d'agence sont de 19 900 euros fixes à la charge du vendeur.
Si vous êtes un professionnel de l'immobilier (agent, mandataire ou chasseur immobilier), sachez que toutes les annonces Hosman sont ouvertes à la collaboration. N'hésitez pas à nous contacter pour en discuter.
Voir plus

Référence: 0fab08
Bien en copropriété. Charges de copropriété : 229 €.
Honoraires à la charge du vendeur.
DPE
A
B
C
D
E
F
G
GES
A
B
C
D
E
F
G

Prêt immobilier

Vous souhaitez connaître votre capacité d’emprunt et trouver le meilleur crédit immobilier ?
Réaliser une simulation gratuite

Appartement à PARIS-20E
Appartement à PARIS-20E
Appartement à PARIS-20E
Appartement à PARIS-20E
Appartement à PARIS-20E
Appartement à PARIS-20E
Appartement à PARIS-20E
Appartement à PARIS-20E
Appartement à PARIS-20E
Appartement à PARIS-20E
Appartement à PARIS-20E
Appartement à PARIS-20E
Appartement à PARIS-20E
Ce site est protégé par reCAPTCHA la Politique de confidentialité et les Conditions d’utilisation de Google s’appliquent.
Obtenir un prêt immobilier au meilleur taux ?

En poursuivant votre navigation sans modifier vos paramètres, vous acceptez l'utilisation de cookies susceptibles de réaliser des statistiques de visite. Cliquez ici pour plus d'informations