Maison de plain-pied d'environ 75m² habitable

— Tierce 49125 —
110 000 €
75 m² / 125 m²
3 pièces

Je vous invite à découvrir cette charmante maison de village située au coeur de Baracé, offrant 75 m² habitables sur un terrain de 125 m².

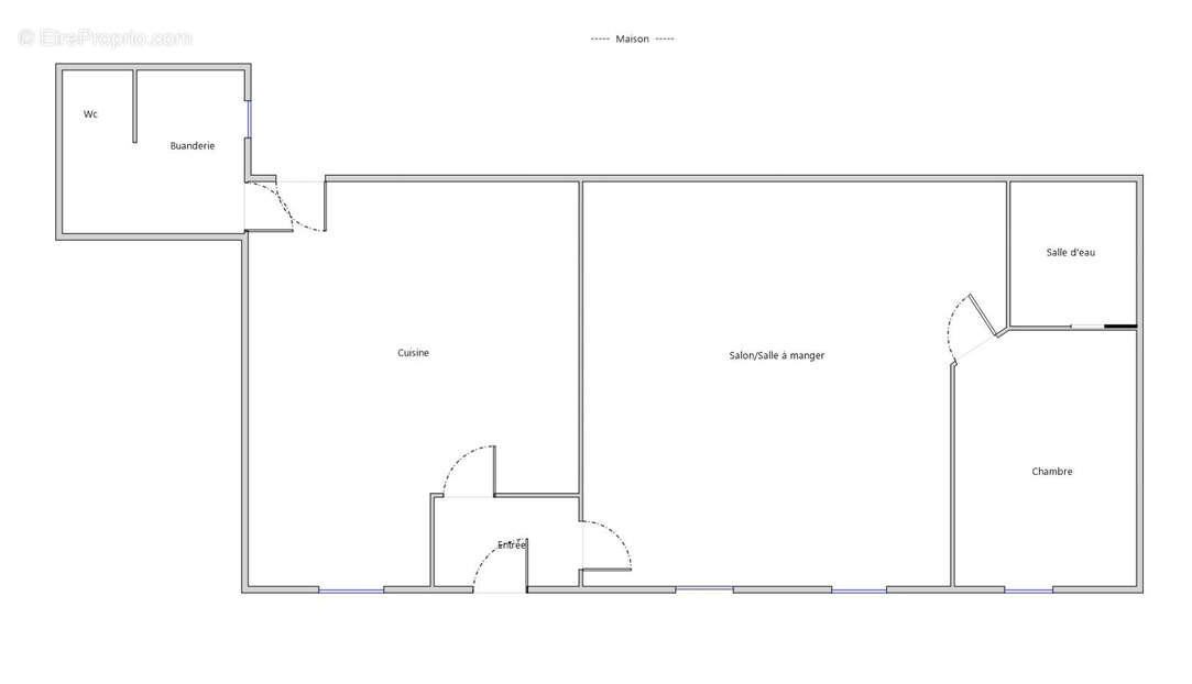
Elle se compose d'une spacieuse cuisine de 24,39 m², d'un agréable salon-séjour de 29,49 m² avec sa cheminée et ses poutres, d'une chambre, d'une salle d'eau, ainsi que d'une buanderie.
Deux greniers entièrement aménageables de 46 m² et 23 m² au sol offrent la possibilité de créer de nouvelles chambres ou tout autre espace de votre choix, selon vos besoins et vos envies.
Une cour sans vis-à-vis vient parfaire ce bien, idéale pour profiter des beaux jours en toute tranquillité.

Cette maison offre le cadre recherché d'un environnement campagnard, au coeur d'un village, et sans l'entretien contraignant de grands espaces verts.

Baracé se situe à seulement 10 minutes de l'autoroute A11 et de Tiercé, où vous trouverez l'ensemble des commodités et commerces nécessaires à votre quotidien.
L'autoroute A11 est a environ

Contactez-moi dès maintenant pour organiser une visite et venir découvrir tout le potentiel de ce bien plein de charme, qui vous séduira par son authenticité et ses beaux volumes à exploiter.

Le prix 110 000 euros TTC honoraires charges vendeur

DPE F 366- GES C 11
Montant moyen estimé des dépenses annuelles d'énergie pour un usage standard établi à partir des prix de l'énergie de l'année 2023 : entre 2 030 euros et 2 800 euros
Les informations sur les risques auxquels ce bien est exposé sont disponibles sur le site Géorisques http://www.georisques.gouv.fr'.

Pour découvrir ce bien, contactez
David LIEGARD au tél [Coordonnées masquées] et par courriel à:
d.liegarddeslongschamps@propriétes-privees.com
Estimation gratuite de votre bien en 48 heures.

Cette présente annonce a été rédigée sous la responsabilité éditorial de David Liegard Deslongschamps agissant sous le statut d'agent commercial immatriculé au RSAC ANGERS 521207480 auprès de la SAS PROPRIETES PRIVEES, au capital de 44 920 euros , ZAC LE CHËNE FERRE- 44 Allée des cinq continents 44120 VERTOU; SIRET 487 624 777 00040, RCS Nantes . Carte professionnelle Transaction sur immeubles et fonds de commerce (T) et gestion immobilière (G) n° CPI 44[Coordonnées masquées]8 délivrée par la CCI Nantes- Saint-Nazaire. Compte séquestre n° 3[Coordonnées masquées] BPA SAINT-SEBASTIEN- SUR-LOIRE (44230). Garantie GALIAN-SMABTP- 89 rue de la Boétie, 75008 Paris-n°28137 J pour 2 000 000 euros pour T et 120 000 euros pour G. Assurance responsabilité civile professionnelle par GALIAN-SMABTP n° de police 28137 J Mandat réf: n°429760. Le professionnel garantit et sécurise votre projet immobilier.

Honoraires d'agence à la charge du vendeur.

David LIEGARD DESLONGSCHAMPS (EI) Agent Commercial - Numéro RSAC : ANGERS 521207480 - .
Voir plus

Référence: 431299LGD
Honoraires à la charge du vendeur.
DPE
A
B
C
D
E
F
G
GES
A
B
C
D
E
F
G

Prêt immobilier

Vous souhaitez connaître votre capacité d’emprunt et trouver le meilleur crédit immobilier ?
Réaliser une simulation gratuite

Maison à TIERCE
Maison à TIERCE
Ce site est protégé par reCAPTCHA la Politique de confidentialité et les Conditions d’utilisation de Google s’appliquent.
Obtenir un prêt immobilier au meilleur taux ?

En poursuivant votre navigation sans modifier vos paramètres, vous acceptez l'utilisation de cookies susceptibles de réaliser des statistiques de visite. Cliquez ici pour plus d'informations