Bénéficiez des services de nos partenaires locaux soigneusement sélectionnés
pour vous accompagner dans votre parcours d'achat immobilier

T2 lucciana

— Lucciana 20290 —
165 000 €
45 m²
2 pièces

Nos partenaires locaux
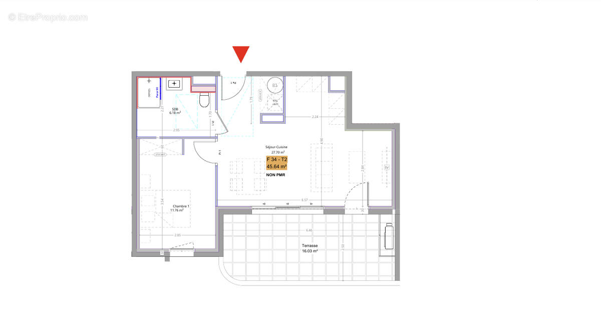
A Lucciana, découvrez un appartement T2 de 45,6 m², offrant une organisation moderne et un espace extérieur très appréciable grâce à sa terrasse de 16 m².
La pièce de vie profite d'une belle ouverture sur l'extérieur, permettant d'envisager un aménagement confortable et lumineux. La chambre, la salle d'eau et les rangements prévus offrent une configuration fonctionnelle, pensée pour répondre aux besoins du quotidien.
L'ensemble s'inscrit dans un projet résidentiel intégrant des accès sécurisés, des espaces communs agréables et un environnement calme, à proximité immédiate des commodités de Lucciana (services, commerces, axes faciles d'accès).

Ce T2 réunit des prestations actuelles et un niveau de confort recherché, idéal pour un premier achat, un pied-à-terre ou un investissement.
Il peut également convenir aux acquéreurs souhaitant bénéficier de solutions de financement avantageuses selon leur situation.

Points forts :

Surface : 45,6 m²
Terrasse : 16 m²
Organisation moderne et optimisée
Projet résidentiel qualitatif
Secteur demandé

Pour toute information complémentaire, plan détaillé ou document disponible, contactez :
Joseph RISTICONI
Conseil et accompagnement immobilier
[Coordonnées masquées]

Pour visiter et vous accompagner dans votre projet, contactez Joseph RISTICONI, au [Coordonnées masquées] ou, par courriel à [Coordonnées masquées].
Selon l'article L.561.5 du Code Monétaire et Financier, pour l'organisation de la visite, la présentation d'une pièce d'identité vous sera demandée.
Cette présente annonce a été rédigée sous la responsabilité éditoriale de Joseph RISTICONI agissant sous le statut d'agent commercial immatriculé au RSAC BASTIA 814128146 auprès de SAS PROPRIETES PRIVEES, au capital de 44 920 euros, ZAC LE CHÊNE FERRÉ - 44 ALLÉE DES CINQ CONTINENTS 44120 VERTOU; SIRET 487 624 777 00040, RCS Nantes. Carte Professionnelle Transactions sur immeubles et fonds de commerce (T) et Gestion immobilière (G) n°CPI 44[Coordonnées masquées]10 388 délivrée par la CCI Nantes - Saint Nazaire. Compte séquestre n°3[Coordonnées masquées] BPA SAINT-SEBASTIEN-SUR-LOIRE (44230). Garantie GALIAN-SMABTP - 89 rue de la Boétie, 75008 Paris - n°28137 J pour 2 000 000 euros pour T et 120 000 euros pour G. Assurance responsabilité civile professionnelle par GALIAN-SMABTP n° de police 28137.J

Mandat réf : 430424 - Le professionnel garantit et sécurise votre projet immobilier.

Joseph RISTICONI (EI) Agent Commercial - Numéro RSAC : BASTIA 814128146 - .
Les informations sur les risques auxquels ce bien est exposé sont disponibles sur le site Géorisques : www. georisques. gouv. fr
Voir plus

Référence: 430424JOSR
Honoraires à la charge du vendeur.

Prêt immobilier

Vous souhaitez connaître votre capacité d’emprunt et trouver le meilleur crédit immobilier ?
Réaliser une simulation gratuite

Appartement à LUCCIANA
Appartement à LUCCIANA
Ce site est protégé par reCAPTCHA la Politique de confidentialité et les Conditions d’utilisation de Google s’appliquent.
Obtenir un prêt immobilier au meilleur taux ?

En poursuivant votre navigation sans modifier vos paramètres, vous acceptez l'utilisation de cookies susceptibles de réaliser des statistiques de visite. Cliquez ici pour plus d'informations