Bénéficiez des services de nos partenaires locaux soigneusement sélectionnés
pour vous accompagner dans votre parcours d'achat immobilier

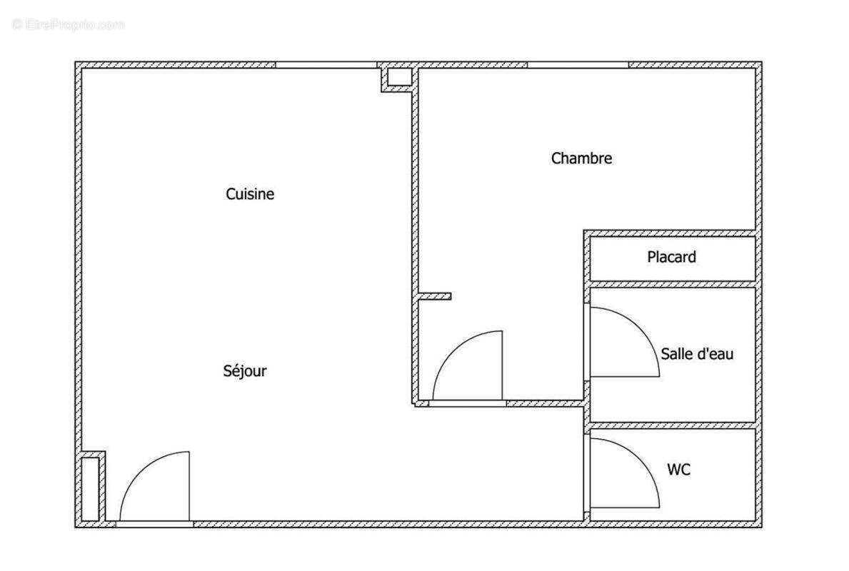
Appartement t2 de 38 m2, vendu entièrement meublé. vannes albert 1er kercado

— Vannes 56000 —
148 000 €
38 m²
2 pièces

Nos partenaires locaux
En EXCLUSIVITE ! Emmanuelle RENAULT Propriétés Privées Immobilier, vous présente « Flo », un charmant appartement de type 2, vendu entièrement meublé. Il bénéficie d'une belle atmosphère grâce à l'harmonie des matières utilisées et à la distribution des pièces. Situé sur la commune de VANNES, au rez de chaussée d'une résidence avec ascenseur et gardien, à proximité du Quartier Albert 1er et à 10 minutes à pied du Port, des commerces et de la Place de Lices.

DESCRIPTION : Il présente une belle pièce de vie lumineuse, avec cuisine ouverte, aménagée et entièrement équipée. Une agréable chambre avec placard et salle de douche. WC séparés.

EXPOSITION OUEST.

COTE TECHNIQUE : Copropriété de 1969 sécurisée avec interphone, menuiseries PVC double vitrage. Chauffage et eau chaude sanitaire électrique. Ballon d'eau chaude changé en 2025. FIBRE optique.
Assainissement : tout à l'égout

Faibles charges de copropriété : 26eur/mois
Commodités et transports en commun à proximité.

Vous serez séduits par cet appartement aux volumes généreux et agréables.
Idéal pour une résidence principale, secondaire ou pour un investissement locatif.

Un conseil : NE TARDEZ PAS, CET APPARTEMENT BIEN EQUIPÉ NE RESTERA PAS LONGTEMPS SUR LE MARCHE.
Pour visiter et vous accompagner dans votre projet, contactez Emmanuelle RENAULT au [Coordonnées masquées] ou par courriel à [Coordonnées masquées].

-------------------------------------

Selon l'article L.561.5 du Code Monétaire et Financier, pour l'organisation de la visite, la présentation d'une pièce d'identité vous sera demandée. Cette annonce a été rédigée sous la responsabilité éditoriale de Emmanuelle RENAULT agissant sous le statut d'agent commercial immatriculé au RSAC Vannes 833 479 280 auprès de SAS PROPRIETES PRIVEES, au capital de 44 920 euros, ZAC LE CHÊNE FERRÉ - 44 ALLÉE DES CINQ CONTINENTS 44120 VERTOU ; SIRET 487 624 777 00040, RCS Nantes. Carte Professionnelle Transactions sur immeubles et fonds de commerce (T) et Gestion immobilière (G) n°CPI 44[Coordonnées masquées]10 388 délivrée par la CCI Nantes - Saint Nazaire. Compte séquestre n°3[Coordonnées masquées] BPA SAINT-SEBASTIEN-SUR-LOIRE (44230). Garantie GALIAN-SMABTP - 89 rue de la Boétie, 75008 Paris - n°28137 J pour 2 000 000 euros pour T et 120 000 euros pour G. Assurance responsabilité civile professionnelle par GALIAN-SMABTP n° de police 28137.J Mandat réf : 428469 - DPE 441 G GES 14 C. Montant estimé des dépenses annuelles d'énergie pour un usage standard entre 1030 et 1420 euros indexées aux années 2021, 2022 et 2023 (ou 2021 uniquement) (si logement F ou G 'Logement à consommation énergétique excessive : classe F ou G') . Le professionnel garantit et sécurise votre projet .
Copropriété de 424 lots - dont 167 lots habitation. ().

Charges annuelles : 320 euros.
Emmanuelle RENAULT (EI) Agent Commercial - Numéro RSAC : Vannes 833 479 280 - .
Les informations sur les risques auxquels ce bien est exposé sont disponibles sur le site Géorisques : www. georisques. gouv. fr
Voir plus

Référence: 428469REE
Bien en copropriété. Nombre de lots : 424. Charges de copropriété : 26 €.
Honoraires à la charge du vendeur.
DPE
A
B
C
D
E
F
G
GES
A
B
C
D
E
F
G

Prêt immobilier

Vous souhaitez connaître votre capacité d’emprunt et trouver le meilleur crédit immobilier ?
Réaliser une simulation gratuite

Appartement à VANNES
Appartement à VANNES
Appartement à VANNES
Appartement à VANNES
Appartement à VANNES
Appartement à VANNES
Appartement à VANNES
Appartement à VANNES
Appartement à VANNES
Appartement à VANNES
Appartement à VANNES
Appartement à VANNES
Ce site est protégé par reCAPTCHA la Politique de confidentialité et les Conditions d’utilisation de Google s’appliquent.
Obtenir un prêt immobilier au meilleur taux ?

En poursuivant votre navigation sans modifier vos paramètres, vous acceptez l'utilisation de cookies susceptibles de réaliser des statistiques de visite. Cliquez ici pour plus d'informations