Bénéficiez des services de nos partenaires locaux soigneusement sélectionnés
pour vous accompagner dans votre parcours d'achat immobilier

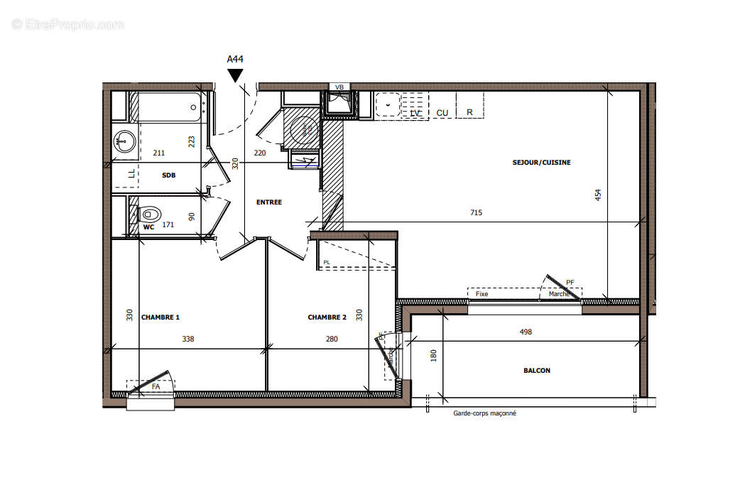
T3 lumineux de 62 m², terrasse sud béziers, quartier central

— Beziers 34500 —
225 000 €
61 m²
3 pièces
parkingbalcon/terrasseascenseur

Nos partenaires locaux
Dans un quartier central prisé, où tout se fait à pied, ce T3 de 62 m², situé au 4ème étage d'une résidence qui allie confort, praticité et luminosité.
Points forts :
Séjour traversant avec cuisine ouverte, prolongé par une terrasse ensoleillée
Deux chambres fonctionnelles
Salle de bain contemporaine et WC séparé
Prestations de standing, isolation renforcée, accès sécurisé
Place de parking privative
Emplacement privilégié : commerces, écoles, crèche, collège et Pôle universitaire accessibles à pied, transports beeMob à 200 m et centre commercial Polygone à moins de 2 km.
Un bien rare, idéal pour une résidence principale, un premier achat ou un investissement locatif.
Prix : 225 000 euros (honoraires charge vendeur)
Contactez-nous dès aujourd'hui pour plus d'informations.
Photos non contractuelles, DPE non requis
Selon l'article L.561.5 du Code Monétaire et Financier, pour l'organisation de la visite, la présentation d'une pièce d'identité vous sera demandée.
Pour visiter et vous accompagner dans votre projet, contactez Michel HORNECKER, au [Coordonnées masquées] ou par courriel à [Coordonnées masquées]
Cette présente annonce a été rédigée sous la responsabilité éditoriale de Michel HORNECKER agissant sous le statut d'agent commercial immatriculé au RSAC BEZIERS 824 253 710 spécialisé en cession de fonds de commerces , auprès de la SAS PROPRIETES PRIVEES, Réseau national immobilier, au capital de 40000 euros, 44 ALLÉE DES CINQ CONTINENTS - ZAC LE CHÊNE FERRÉ, 44120 VERTOU, RCS Nantes n° 487 624 777 00040, Carte professionnelle T et G n° CPI 44[Coordonnées masquées]10 388 CCI Nantes-Saint Nazaire. Garantie GALIAN - 89 rue de la Boétie, 75008 Paris
Mandat réf : 428498- Le professionnel garantit et sécurise votre projet immobilier.
Michel HORNECKER (EI) Agent Commercial - Numéro RSAC : BEZIERS 824 253 710
Les informations sur les risques auxquels ce bien est exposé sont disponibles sur le site Géorisques : www.georisques.gouv.fr
Copropriété de 32 lots - dont 32 lots habitation. ().

Charges annuelles : 1 euros.
Michel HORNECKER (EI) Agent Commercial - Numéro RSAC : BEZIERS 493044283 - .
Voir plus

Référence: 428498HKM
Bien en copropriété. Nombre de lots : 32.
Honoraires à la charge du vendeur.

Prêt immobilier

Vous souhaitez connaître votre capacité d’emprunt et trouver le meilleur crédit immobilier ?
Réaliser une simulation gratuite

Appartement à BEZIERS
Appartement à BEZIERS
Appartement à BEZIERS
Appartement à BEZIERS
Appartement à BEZIERS
Appartement à BEZIERS
Appartement à BEZIERS
Appartement à BEZIERS
Appartement à BEZIERS
Appartement à BEZIERS
Appartement à BEZIERS
Ce site est protégé par reCAPTCHA la Politique de confidentialité et les Conditions d’utilisation de Google s’appliquent.
Obtenir un prêt immobilier au meilleur taux ?

En poursuivant votre navigation sans modifier vos paramètres, vous acceptez l'utilisation de cookies susceptibles de réaliser des statistiques de visite. Cliquez ici pour plus d'informations