Bénéficiez des services de nos partenaires locaux soigneusement sélectionnés
pour vous accompagner dans votre parcours d'achat immobilier

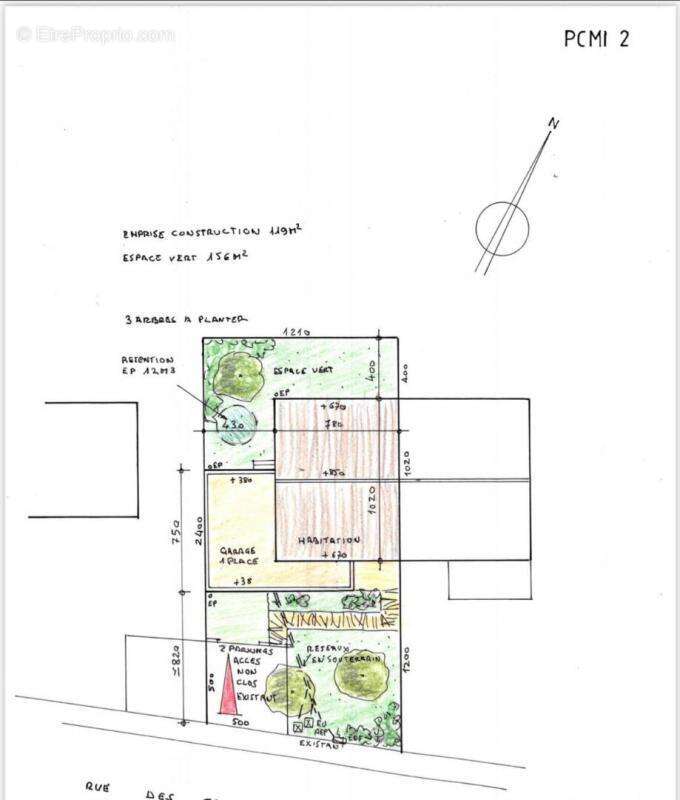
Maison 5 pièce(s) 160 m2

— Arles 13200 —
338 000 €
160 m² / 301 m²
5 pièces

Nos partenaires locaux
Villa neuve 160 m² Arles 13104
Quartier Mas THIBERT
Proche Mer et commodités
Construction neuve ( RE 2020) ,avec prestation haute gamme , design moderne , quartier résidentiel familiale , à 15mn de la Mer Salin des Giraud et port saint louis , saint martin du Crau
Villa à étage , séduit par ses volumes généreux et sa luminosité. Il offre
En réez de chaussée :
Un vaste séjour ouvert sur une cuisine à équipée a votre gout avec vue sur nature
Une chambre spacieuse
Un grand Garage
Un cellier pour buanderie, autres
Une grande terrasse
Un jardin avant et arrière maison , terrain , piscinable
EN ETAGE :
. L'espace nuit comprend 3 chambres, dans une suite parentale avec sa propre salle de bain et grand dressing suite parentale ouverte sur une magnifique terrasse ensoleillé exposé en plein sud
Une 2 ém salle de bain , WC
Climatisation gainable Air zone , Faible consommation énergétiques , Finitions Soignées...
Espaces verdures extérieur , Grande terrasse ensoleillée offrent un cadre idyllique.
DPE note A soit 31 KWH/m²/ans et GES note A soit 0 co2/m²/ans
Prix de vente 338000 euros honoraires agence charge vendeur
Pour visiter et vous accompagner dans votre projet, contactez Hicham DGHOUGHI, au [Coordonnées masquées] ou, par courriel à [Coordonnées masquées].
Selon l'article L.561.5 du Code Monétaire et Financier, pour l'organisation de la visite, la présentation d'une pièce d'identité vous sera demandée.
Cette présente annonce a été rédigée sous la responsabilité éditoriale de Hicham DGHOUGHI agissant sous le statut d'agent commercial immatriculé au RSAC AVIGNON 849115738 auprès de SAS PROPRIETES PRIVEES, au capital de 44 920 euros, ZAC LE CHÊNE FERRÉ - 44 ALLÉE DES CINQ CONTINENTS 44120 VERTOU; SIRET 487 624 777 00040, RCS Nantes. Carte Professionnelle Transactions sur immeubles et fonds de commerce (T) et Gestion immobilière (G) n°CPI 44[Coordonnées masquées]10 388 délivrée par la CCI Nantes - Saint Nazaire. Compte séquestre n°3[Coordonnées masquées] BPA SAINT-SEBASTIEN-SUR-LOIRE (44230). Garantie GALIAN-SMABTP - 89 rue de la Boétie, 75008 Paris - n°28137 J pour 2 000 000 euros pour T et 120 000 euros pour G. Assurance responsabilité civile professionnelle par GALIAN-SMABTP n° de police 28137.J

Mandat réf : 426900 Le professionnel garantit et sécurise votre projet immobilier.

Hicham DGHOUGHI (EI) Agent Commercial - Numéro RSAC : AVIGNON 849115738 - .

Hicham DGHOUGHI (EI) Agent Commercial - Numéro RSAC : AVIGNON 849115738 - .
Les informations sur les risques auxquels ce bien est exposé sont disponibles sur le site Géorisques : www. georisques. gouv. fr
Voir plus

Référence: 426900DHH
Honoraires à la charge du vendeur.
DPE
A
B
C
D
E
F
G
GES
A
B
C
D
E
F
G

Prêt immobilier

Vous souhaitez connaître votre capacité d’emprunt et trouver le meilleur crédit immobilier ?
Réaliser une simulation gratuite

Maison à ARLES
Maison à ARLES
Maison à ARLES
Maison à ARLES
Maison à ARLES
Maison à ARLES
Maison à ARLES
Maison à ARLES
Maison à ARLES
Maison à ARLES
Maison à ARLES
Maison à ARLES
Maison à ARLES
Maison à ARLES
Ce site est protégé par reCAPTCHA la Politique de confidentialité et les Conditions d’utilisation de Google s’appliquent.
Obtenir un prêt immobilier au meilleur taux ?

En poursuivant votre navigation sans modifier vos paramètres, vous acceptez l'utilisation de cookies susceptibles de réaliser des statistiques de visite. Cliquez ici pour plus d'informations