Bénéficiez des services de nos partenaires locaux soigneusement sélectionnés
pour vous accompagner dans votre parcours d'achat immobilier

Maison 213m² à chatou

— Chatou 78400 —
1 323 000 €
213 m² / 550 m²
5 pièces
parkingbalcon/terrassejardin

Nos partenaires locaux
Iad France - Sarah Rozière ([Coordonnées masquées]) vous propose : Maison 5 pièces à Chatou.

Idéalement située rue des Landes à Chatou, au cOEur d'un quartier résidentiel, la résidence La Villa des Landes conjugue élégance classique et confort contemporain. Inspirée des demeures bourgeoises du XIX ème siècle, cette adresse offre un cadre verdoyant et apaisé, à seulement quelques minutes du centre-ville et des bords de Seine. Disponible 2027.

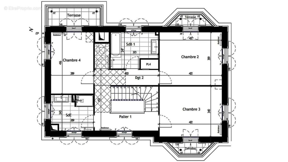
Cette maison, d'une surface habitable de 213 m² environ, se distingue par ses volumes généreux et ses belles prestations. Elle s'ouvre sur une terrasse de 29 m² environ et un jardin de 550 m² environ.

- Grand séjour / salle à manger lumineux ouvert sur le jardin.
- Cuisine spacieuse et indépendante.
- Trois belles chambres, dont une grande pièce pouvant être aménagée à votre goût en master suite.
- Annexes incluses : un garage privatif et une place de stationnement extérieure.

De belles prestations :
- Chauffage assuré par pompe à chaleur, performant et économe en énergie.
- Menuiseries extérieures haut de gamme avec double vitrage.
- Espaces extérieurs arborés et clôturés pour un confort optimal.
- Résidence sécurisée avec portail motorisé et accès privatif.

L'art de vivre à Chatou :
- À proximité immédiate des écoles, commerces et services.
- RER A - Gare de Chatou-Croissy à 7 minutes en voiture.
- Parc des Ibis accessible à pied.

N'hésitez pas à me contacter pour plus d'informations ou pour un accompagnement sur mesure.

Honoraires d'agence à la charge du vendeur. Bien non soumis au DPE. Les informations sur les risques auxquels ce bien est exposé sont disponibles sur le site Géorisques : www.georisques.gouv.fr. La présente annonce immobilière a été rédigée sous la responsabilité éditoriale de Mlle Sarah Rozière EI (ID 83696), mandataire indépendant en immobilier (sans détention de fonds), agent commercial de la SAS I@D France immatriculé au RSAC de Clermont-Ferrand sous le numéro 978616993, titulaire de la carte de démarchage immobilier pour le compte de la société I@D France SAS.
Retrouvez tous nos biens sur notre site internet. www.iadfrance.fr.
Informations LOI ALUR :
Honoraires charge vendeur. (gedeon_6727_32038421)
Voir plus

Référence: 1867045-6
Honoraires à la charge du vendeur.

Prêt immobilier

Vous souhaitez connaître votre capacité d’emprunt et trouver le meilleur crédit immobilier ?
Réaliser une simulation gratuite

Photo 1 - Maison à CHATOU
Photo 1
Photo 2 - Maison à CHATOU
Photo 2
Photo 3 - Maison à CHATOU
Photo 3
Photo 4 - Maison à CHATOU
Photo 4
Photo 5 - Maison à CHATOU
Photo 5
Photo 6 - Maison à CHATOU
Photo 6
Photo 7 - Maison à CHATOU
Photo 7
Photo 8 - Maison à CHATOU
Photo 8
Ce site est protégé par reCAPTCHA la Politique de confidentialité et les Conditions d’utilisation de Google s’appliquent.
Obtenir un prêt immobilier au meilleur taux ?

En poursuivant votre navigation sans modifier vos paramètres, vous acceptez l'utilisation de cookies susceptibles de réaliser des statistiques de visite. Cliquez ici pour plus d'informations