Terrain 253m² à villecresnes

— Villecresnes 94440 —
170 000 €
253 m²

Iad France - Christophe Hadoux vous propose : Rare opportunité en zone résidentielle. Terrain à construire viabilisé, nu ou avec projet de construction accordé, mené par les Maisons Sésame. Plus de détails sur demande. Voir les photos.

Rare sur le marché, ce terrain constructible de 253 m² situé à Villecresnes offre une opportunité exceptionnelle de réaliser votre projet de construction sur mesure dans un cadre privilégié.
Idéalement situé dans le quartier résidentiel du Cerçay calme et recherché, ce terrain bénéficie d'une exposition est-ouest, permettant de profiter pleinement de la lumière naturelle tout au long de la journée.
Caractéristiques du Terrain :

- Superficie totale : 253 m²
- Façade sur rue : 11,50 m
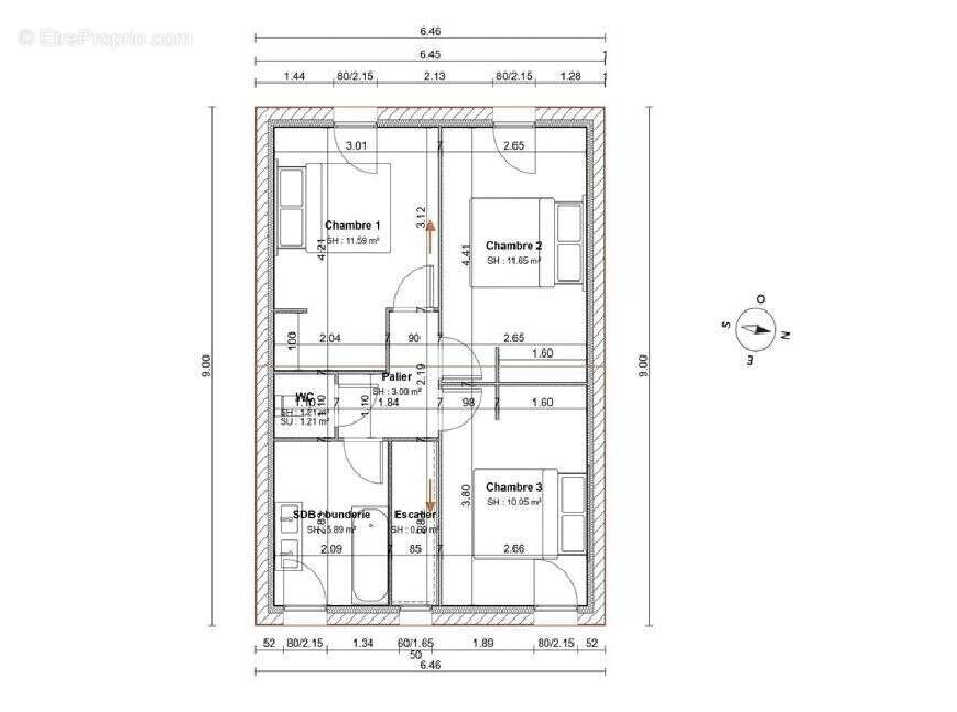
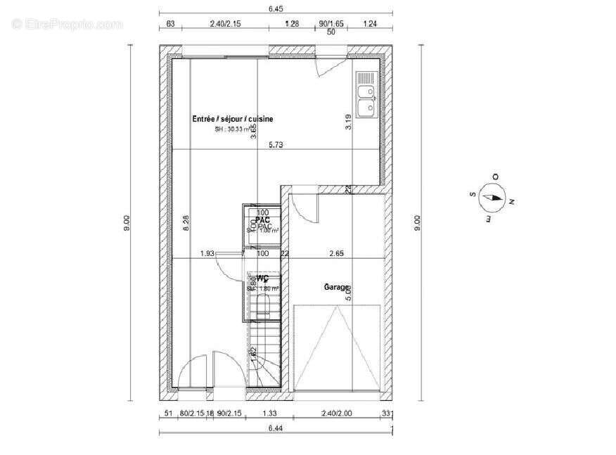
- Surface constructible : 100 m² environ pour une maison individuelle R + 1 + comble (9 m au faîtage) + garage
Viabilité : raccordement au réseau d'électricité, d'eau potable et d'assainissement collectif.
Idéalement situé, ce terrain bénéficie d'un environnement paisible tout en étant proche des commodités


Honoraires d'agence à la charge du vendeur.
Bien non soumis au DPE. Les informations sur les risques auxquels ce bien est exposé, y compris l'obligation légale de débroussaillement, sont disponibles sur le site Géorisques : http://www.georisques.gouv.fr.
La présente annonce immobilière a été rédigée sous la responsabilité éditoriale de M Christophe Hadoux mandataire indépendant en immobilier (sans détention de fonds), agent commercial de la SAS I@D France immatriculé au RSAC de Créteil sous le numéro 884497249, titulaire de la carte de démarchage immobilier pour le compte de la société I@D France SAS.
Informations LOI ALUR :
Honoraires charge vendeur. (gedeon_6727_32270635)
Voir plus

Référence: 1901797
Honoraires à la charge du vendeur.

Prêt immobilier

Vous souhaitez connaître votre capacité d’emprunt et trouver le meilleur crédit immobilier ?
Réaliser une simulation gratuite

Photo 1 - Terrain à VILLECRESNES
Photo 1
Photo 2 - Terrain à VILLECRESNES
Photo 2
Photo 3 - Terrain à VILLECRESNES
Photo 3
Photo 4 - Terrain à VILLECRESNES
Photo 4
Photo 5 - Terrain à VILLECRESNES
Photo 5
Photo 6 - Terrain à VILLECRESNES
Photo 6
Photo 7 - Terrain à VILLECRESNES
Photo 7
Photo 8 - Terrain à VILLECRESNES
Photo 8
Ce site est protégé par reCAPTCHA la Politique de confidentialité et les Conditions d’utilisation de Google s’appliquent.
Obtenir un prêt immobilier au meilleur taux ?

En poursuivant votre navigation sans modifier vos paramètres, vous acceptez l'utilisation de cookies susceptibles de réaliser des statistiques de visite. Cliquez ici pour plus d'informations